



Book your tour. Save an average of $18,473. We'll handle the rest.
- Confirmed tours
- Get matched & compare top deals
- Expert help, no pressure
- No added fees
Estimated value based on Jome data, T&C apply
- 4 bd
- 2.5 ba
- 2,594 sqft
227 Artist Ave, Johnson City, TN 37615
Why tour with Jome?
- No pressure toursTour at your own pace with no sales pressure
- Expert guidanceGet insights from our home buying experts
- Exclusive accessSee homes and deals not available elsewhere
Jome is featured in
- Single-Family
- Quick move-in
- $159.5/sqft
- 1 days on Jome
Home description
About this home
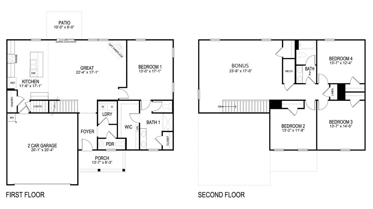
Take a look at our very spacious Fairview floorplan at Keebler Meadows in Johnson City, TN. This two-story home includes 2,594 sq ft of comfortable living space with 4 bedrooms, 2.5 bathrooms, and a living room on both floors.
Designed for all stages of life, this home has a primary bedroom on the main level with a sizeable walk-in closet and en suite bathroom. Adjacent to the main floor great room is an open kitchen that features brand new stainless steel appliances and a granite topped kitchen island. The laundry room and half bathroom are also conveniently located on the main level right off the foyer.
On the second level of this home, you will find 3 additional bedroom and a second full bathroom with a double vanity. As if one living room wasn't enough, this home has an additional living room on the second floor for ample entertaining space. Don't miss out on this great home, schedule an appointment and make it yours today!
May also be listed on the D.R. Horton website
Information last verified by Jome: Today at 1:56 AM (December 23, 2025)
Home highlights
Book your tour. Save an average of $18,473. We'll handle the rest.
We collect exclusive builder offers, book your tours, and support you from start to housewarming.
- Confirmed tours
- Get matched & compare top deals
- Expert help, no pressure
- No added fees
Estimated value based on Jome data, T&C apply
Home details
- Property status:
- Move-in ready
- Size:
- 2,594 sqft
- Stories:
- 2
- Beds:
- 4
- Baths:
- 2.5
- Garage spaces:
- 2
Construction details
- Builder Name:
- D.R. Horton
Home features & finishes
- Garage/Parking:
- GarageAttached Garage
- Interior Features:
- Walk-In ClosetFoyerPantry
- Kitchen:
- Stainless Steel AppliancesQuartz countertop
- Laundry facilities:
- Utility/Laundry Room
- Property amenities:
- PatioPorch
- Rooms:
- Bonus RoomGreat RoomKitchenPowder RoomPrimary Bedroom Downstairs

Get a consultation with our New Homes Expert
- See how your home builds wealth
- Plan your home-buying roadmap
- Discover hidden gems

Community details
Keebler Meadows
by D.R. Horton, Johnson City, TN
- 18 homes
- 11 plans
- 1,634 - 3,411 sqft
View Keebler Meadows details
More homes in Keebler Meadows
Floor plans in Keebler Meadows
About the builder - D.R. Horton
Neighborhood
Home address
- City:
- Johnson City
- County:
- Washington
- Zip Code:
- 37615
Schools in Washington County School District
GreatSchools’ Summary Rating calculation is based on 4 of the school’s themed ratings, including test scores, student/academic progress, college readiness, and equity. This information should only be used as a reference. Jome is not affiliated with GreatSchools and does not endorse or guarantee this information. Please reach out to schools directly to verify all information and enrollment eligibility. Data provided by GreatSchools.org © 2025
Places of interest
Getting around
Air quality
Noise level
A Soundscore™ rating is a number between 50 (very loud) and 100 (very quiet) that tells you how loud a location is due to environmental noise.
Natural hazards risk
Climate hazards can impact homes and communities, with risks varying by location. These scores reflect the potential impact of natural disasters and climate-related risks on Washington County
Provided by FEMA

Considering this home?
Our expert will guide your tour, in-person or virtual
Need more information?
Text or call (888) 486-2818
Financials
Estimated monthly payment
Let us help you find your dream home
How many bedrooms are you looking for?
Similar homes nearby
Recently added communities in this area
Nearby communities in Johnson City
New homes in nearby cities
More New Homes in Johnson City, TN
- Jome
- New homes search
- Tennessee
- Chattanooga-Knoxville Area
- Washington County
- Johnson City
- Keebler Meadows
- 227 Artist Ave, Johnson City, TN 37615
































