



Book your tour. Save an average of $18,473. We'll handle the rest.
- Confirmed tours
- Get matched & compare top deals
- Expert help, no pressure
- No added fees
Estimated value based on Jome data, T&C apply
- 3 bd
- 2.5 ba
- 2,164 sqft
111 Mint Ct, Bluff City, TN 37618
Why tour with Jome?
- No pressure toursTour at your own pace with no sales pressure
- Expert guidanceGet insights from our home buying experts
- Exclusive accessSee homes and deals not available elsewhere
Jome is featured in
- Single-Family
- Quick move-in
- $164.32/sqft
- 1 days on Jome
Home description
About this home
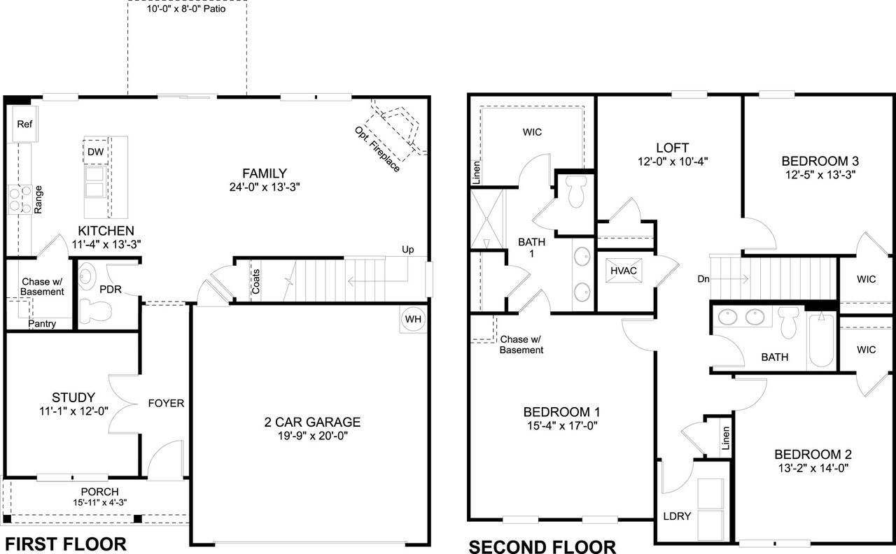
Welcome to the Penwell floor plan located in The Hideaway at Fox Meadows community located just outside Bristol, TN. This beautiful two-story home boasts an open-concept design that is perfect for all stages of life. As soon as you enter the foyer, you'll be greeted by the eat-in kitchen and living area. The kitchen is equipped with a large pantry, ample cabinet space, and an island with countertop seating. On the first floor, you'll also find a powder room for convenience and a flex room that can function as an office or formal dining room. Upstairs, the loft is a great space for work or play. The primary bedroom features a spacious walk-in closet and a private bathroom. Two additional secondary bedrooms share a full bathroom. The laundry room is conveniently located on the second floor as well.
May also be listed on the D.R. Horton website
Information last verified by Jome: Today at 3:00 AM (December 16, 2025)
Home highlights
Book your tour. Save an average of $18,473. We'll handle the rest.
We collect exclusive builder offers, book your tours, and support you from start to housewarming.
- Confirmed tours
- Get matched & compare top deals
- Expert help, no pressure
- No added fees
Estimated value based on Jome data, T&C apply
Home details
- Property status:
- Move-in ready
- Size:
- 2,164 sqft
- Stories:
- 2
- Beds:
- 3
- Baths:
- 2.5
- Garage spaces:
- 2
Construction details
- Builder Name:
- D.R. Horton
Home features & finishes
- Garage/Parking:
- Garage

Get a consultation with our New Homes Expert
- See how your home builds wealth
- Plan your home-buying roadmap
- Discover hidden gems

Community details
The Hideaway at Fox Meadows
by D.R. Horton, Bluff City, TN
- 4 homes
- 11 plans
- 1,414 - 3,411 sqft
View The Hideaway at Fox Meadows details
More homes in The Hideaway at Fox Meadows
Floor plans in The Hideaway at Fox Meadows
About the builder - D.R. Horton
Neighborhood
Home address
- City:
- Bluff City
- County:
- Sullivan
- Zip Code:
- 37618
Schools in Sullivan County School District
GreatSchools’ Summary Rating calculation is based on 4 of the school’s themed ratings, including test scores, student/academic progress, college readiness, and equity. This information should only be used as a reference. Jome is not affiliated with GreatSchools and does not endorse or guarantee this information. Please reach out to schools directly to verify all information and enrollment eligibility. Data provided by GreatSchools.org © 2025
Places of interest
Getting around
Air quality
Noise level
A Soundscore™ rating is a number between 50 (very loud) and 100 (very quiet) that tells you how loud a location is due to environmental noise.
Natural hazards risk
Climate hazards can impact homes and communities, with risks varying by location. These scores reflect the potential impact of natural disasters and climate-related risks on Sullivan County
Provided by FEMA

Considering this home?
Our expert will guide your tour, in-person or virtual
Need more information?
Text or call (888) 486-2818
Estimated monthly payment
Let us help you find your dream home
How many bedrooms are you looking for?
Similar homes nearby
Recently added communities in this area
Nearby communities in Bluff City
New homes in nearby cities
More New Homes in Bluff City, TN
- Jome
- New homes search
- Tennessee
- Chattanooga-Knoxville Area
- Sullivan County
- Bluff City
- The Hideaway at Fox Meadows
- 111 Mint Ct, Bluff City, TN 37618


























