



- 4 bd
- 2.5 ba
- 2,267 sqft
7006 Randleman Dr, Knoxville, TN 37918
- Single-Family
- $163.98/sqft
- West facing
- 116 days on Jome
New Homes for Sale Near 7006 Randleman Dr, Knoxville, TN 37918
About this Home
About this home
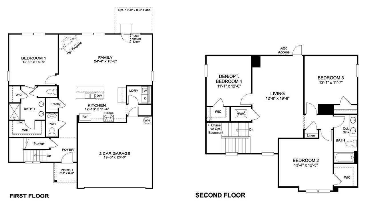
Discover the Belfort at Belhaven in Knoxville, TN. This spacious two-story home offers 2,267 square feet of modern living space with 4 bedrooms and 2.5 bathrooms, thoughtfully designed to fit your lifestyle. The home's features include a light gray exterior palette, white cabinetry, gray speckle granite, and included stainless steel appliances for a polished, modern finish.
The open-concept main level features a generous kitchen that flows effortlessly into the great roomperfect for entertaining or spending time with family. A first-floor primary suite provides comfort and convenience, complete with a private bath, while a nearby laundry room adds everyday ease.
Upstairs, a versatile loft offers flexible space for a playroom, home office, or cozy retreat. Three additional bedrooms and a full bathroom surround the loft, providing plenty of room to relax and unwind.
With its smart layout and modern design, the Belfort is the perfect blend of function, comfort, and style.
May also be listed on the D.R. Horton website
Information last verified by Jome: Sunday at 12:46 AM (February 1, 2026)
Home details
- Property status:
- Sold
- Size:
- 2,267 sqft
- Stories:
- 2
- Beds:
- 4
- Baths:
- 2.5
- Garage spaces:
- 2
- Facing direction:
- West
Construction details
- Builder Name:
- D.R. Horton
Home features & finishes
- Garage/Parking:
- GarageAttached Garage
- Interior Features:
- Walk-In ClosetFoyerPantry
- Laundry facilities:
- Utility/Laundry Room
- Property amenities:
- Porch
- Rooms:
- KitchenPowder RoomFamily RoomLiving RoomPrimary Bedroom Downstairs

Community details
Belhaven
by D.R. Horton, Knoxville, TN
- 3 homes
- 6 plans
- 1,343 - 2,267 sqft
View Belhaven details
More homes in Belhaven
- Home at address 7046 Randleman Dr, Knoxville, TN 37918
Savings$365,570
Move-in ready- 4 bd
- 2.5 ba
- 2,174 sqft
7046 Randleman Dr, Knoxville, TN 37918
- Home at address 7034 Randleman Dr, Knoxville, TN 37918
Savings$365,570
Move-in ready- 4 bd
- 2.5 ba
- 2,174 sqft
7034 Randleman Dr, Knoxville, TN 37918
- Home at address 6837 Beeler Rd, Knoxville, TN 37918
Savings$374,750
Move-in ready- 4 bd
- 2.5 ba
- 2,267 sqft
6837 Beeler Rd, Knoxville, TN 37918
Floor plans in Belhaven
About the builder - D.R. Horton

- 1,171communities on Jome
- 10,336homes on Jome
Neighborhood
Home address
Schools in Knox County School District
GreatSchools’ Summary Rating calculation is based on 4 of the school’s themed ratings, including test scores, student/academic progress, college readiness, and equity. This information should only be used as a reference. Jome is not affiliated with GreatSchools and does not endorse or guarantee this information. Please reach out to schools directly to verify all information and enrollment eligibility. Data provided by GreatSchools.org © 2025
Places of interest
Getting around
Air quality
Noise level
A Soundscore™ rating is a number between 50 (very loud) and 100 (very quiet) that tells you how loud a location is due to environmental noise.
Financials
Nearby communities in Knoxville
Homes in Knoxville by D.R. Horton
Recently added communities in this area
Other Builders in Knoxville, TN
Nearby sold homes
New homes in nearby cities
More New Homes in Knoxville, TN
- Jome
- New homes search
- Tennessee
- Chattanooga-Knoxville Area
- Knox County
- Knoxville
- Belhaven
- 7006 Randleman Dr, Knoxville, TN 37918


























































