


































- 3 bd
- 2 ba
- 1,550 sqft
9952 Delphinium, Cordova, TN 38018
- Single-Family
- $235.45/sqft
- 121 days on Jome
New Homes for Sale Near 9952 Delphinium, Cordova, TN 38018
About this Home
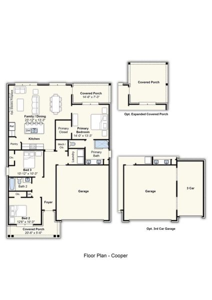
The Cooper Plan, Elevation A is under Construction in the New Amherst Community. Estimated completion is Mid-January. Pictures are from a previous build and will be updated as construction progresses. This is a Brand New Construction, single story home with 3 bedrooms, 2 bathrooms, and just over 1500 square feet. Mohawk Revwood flooring throughout the main living areas plus the Primary bedroom. Many upgrades throughout this home. 5 burner gas range, refrigerator, dishwasher, disposal, microwave, and blinds are all included. 10ft ceilings throughout the house. 14ft x 7ft covered patio overlooking a fully sodded and landscaped lot. Home does qualify for THDA financing.
May also be listed on the Grant & Co website
Information last verified by Jome: Monday at 12:22 PM (January 12, 2026)
Home details
- Property status:
- Sold
- Size:
- 1,550 sqft
- Stories:
- 1
- Beds:
- 3
- Baths:
- 2
- Garage spaces:
- 2
Construction details
- Builder Name:
- Grant & Co
Home features & finishes
- Garage/Parking:
- GarageAttached Garage
- Interior Features:
- FoyerPantry
- Rooms:
- Primary Bedroom On MainKitchenOpen Concept FloorplanPrimary Bedroom Downstairs

Community details
Amherst
by Grant & Co, Cordova, TN
- 3 homes
- 7 plans
- 1,550 - 2,013 sqft
View Amherst details
More homes in Amherst
- Home at address 9951 Kemrock, Cordova, TN 38018
Savings$367,250
Move-in ready- 4 bd
- 2 ba
- 1,800 sqft
9951 Kemrock, Cordova, TN 38018
- Home at address 9943 Kemrock, Cordova, TN 38018

$390,920
Move-in ready- 4 bd
- 2 ba
9943 Kemrock, Cordova, TN 38018
- Home at address 321 Kemrock, Cordova, TN 38018

$397,080
Move-in ready- 4 bd
- 2.5 ba
321 Kemrock, Cordova, TN 38018
Floor plans in Amherst
About the builder - Grant & Co
Neighborhood
Home address
Schools in Shelby County School District
GreatSchools’ Summary Rating calculation is based on 4 of the school’s themed ratings, including test scores, student/academic progress, college readiness, and equity. This information should only be used as a reference. Jome is not affiliated with GreatSchools and does not endorse or guarantee this information. Please reach out to schools directly to verify all information and enrollment eligibility. Data provided by GreatSchools.org © 2025
Places of interest
Getting around
Air quality
Noise level
A Soundscore™ rating is a number between 50 (very loud) and 100 (very quiet) that tells you how loud a location is due to environmental noise.
Financials
Nearby communities in Cordova
Homes in Cordova by Grant & Co
Recently added communities in this area
Other Builders in Cordova, TN
Nearby sold homes
New homes in nearby cities
More New Homes in Cordova, TN
- Jome
- New homes search
- Tennessee
- Nashville-Memphis Area
- Shelby County
- Cordova
- Amherst
- 9952 Delphinium, Cordova, TN 38018



















































