








Book your tour. Save an average of $18,473. We'll handle the rest.
We collect exclusive builder offers, book your tours, and support you from start to housewarming.
- Confirmed tours
- Get matched & compare top deals
- Expert help, no pressure
- No added fees
Estimated value based on Jome data, T&C apply


























- 3 bd
- 2.5 ba
- 1,851 sqft
3046 Portage, Bartlett, TN 38135
Why tour with Jome?
- No pressure toursTour at your own pace with no sales pressure
- Expert guidanceGet insights from our home buying experts
- Exclusive accessSee homes and deals not available elsewhere
Jome is featured in
- Single-Family
- Quick move-in
- $187.83/sqft
- 194 days on Jome
Home description
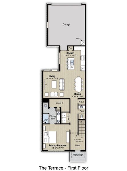
OFFERING 4.99% INTEREST RATE PROMO AND UP TO 3% TOWARDS CLOSING! Our next townhomes are officially under construction! Primary Suite downstairs! ½ Bath for guests downstairs! RevWood Flooring throughout the downstairs, and hardwood on stairs! Electric fireplace in living room! Quartz countertops everywhere! Designer Color Palette for each individual style! Blinds included! 2 Bedrooms, loft, and full bathroom with double sink vanity upstairs! 2 Car Attached Garage! HOA covers lawn maintenance and exterior building maintenance! Future Pool! Walking Trails! Neighborhood Pond!
May also be listed on the Grant & Co website
Information last verified by Jome: Today at 12:07 PM (May 6, 2026)
Book your tour. Save an average of $18,473. We'll handle the rest.
We collect exclusive builder offers, book your tours, and support you from start to housewarming.
- Confirmed tours
- Get matched & compare top deals
- Expert help, no pressure
- No added fees
Estimated value based on Jome data, T&C apply
Home details
- Property status:
- Move-in ready
- Size:
- 1,851 sqft
- Stories:
- 2
- Beds:
- 3
- Baths:
- 2
- Half baths:
- 1
- Garage spaces:
- 2
Construction details
- Builder Name:
- Grant & Co
Home features & finishes
- Garage/Parking:
- Garage

Get a consultation with our New Homes Expert
- See how your home builds wealth
- Plan your home-buying roadmap
- Discover hidden gems

Community details
The Townhomes at Union Depot
by Grant & Co, Bartlett, TN
- 10 homes
- 3 plans
- 1,600 - 1,851 sqft
View The Townhomes at Union Depot details
More homes in The Townhomes at Union Depot
- Home at address 6890 Talcott, Bartlett, TN 38134

Provost
$288,910
- 3 bd
- 2.5 ba
- 1,600 sqft
6890 Talcott, Bartlett, TN 38134
- Home at address 3048 Portage, Bartlett, TN 38133

Terrace
$309,950
- 3 bd
- 2.5 ba
- 1,851 sqft
3048 Portage, Bartlett, TN 38133
- Home at address 6918 Talcott, Bartlett, TN 38135

Provost
$315,730
- 3 bd
- 2.5 ba
- 1,600 sqft
6918 Talcott, Bartlett, TN 38135
- Home at address 3056 Portage, Bartlett, TN 38134

Terrace
$319,690
- 3 bd
- 2.5 ba
- 1,851 sqft
3056 Portage, Bartlett, TN 38134
- Home at address 3054 Portage, Bartlett, TN 38134

Terrace
$320,175
- 3 bd
- 2.5 ba
- 1,851 sqft
3054 Portage, Bartlett, TN 38134
- Home at address 3058 Portage, Bartlett, TN 38133

Terrace
$320,175
- 3 bd
- 2.5 ba
- 1,851 sqft
3058 Portage, Bartlett, TN 38133
Floor plans in The Townhomes at Union Depot
About the builder - Grant & Co
Neighborhood
Home address
Schools in Bartlett City School District
GreatSchools’ Summary Rating calculation is based on 4 of the school’s themed ratings, including test scores, student/academic progress, college readiness, and equity. This information should only be used as a reference. Jome is not affiliated with GreatSchools and does not endorse or guarantee this information. Please reach out to schools directly to verify all information and enrollment eligibility. Data provided by GreatSchools.org © 2025
Places of interest
Getting around
Air quality
Noise level
A Soundscore™ rating is a number between 50 (very loud) and 100 (very quiet) that tells you how loud a location is due to environmental noise.

Considering this home?
Our expert will guide your tour, in-person or virtual
Need more information?
Text or call (888) 545-5198
Financials
Estimated monthly payment
Let us help you find your dream home
How many bedrooms are you looking for?
Similar homes nearby
Recently added communities in this area
Nearby communities in Bartlett
New homes in nearby cities
More New Homes in Bartlett, TN
- Jome
- New homes search
- Tennessee
- Nashville-Memphis Area
- Shelby County
- Bartlett
- The Townhomes at Union Depot
- 3046 Portage, Bartlett, TN 38135



























