




- 4 bd
- 3 ba
- 2,696 sqft
1135 Callaway Dr, Lebanon, TN 37087
- Single-Family
- $257.79/sqft
- 155 days on Jome
New Homes for Sale Near 1135 Callaway Dr, Lebanon, TN 37087
About this Home
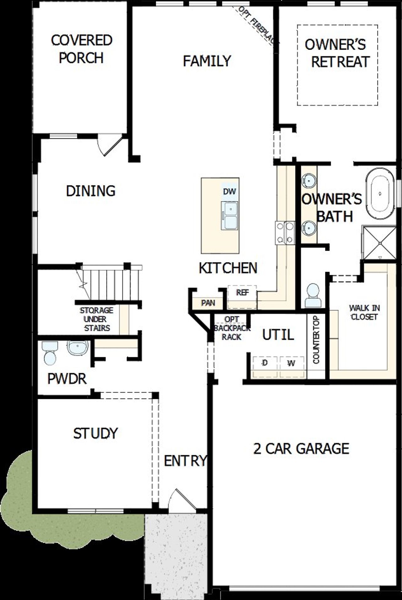
Welcome to your golf course dream home! Design exquisite living spaces and build cherished memories together in this gorgeous new construction home for sale in The Preserve at Five Oaks. Prepare, present and enjoy your culinary masterpieces on the contemporary kitchen’s island overlooking the spacious family and dining areas.
An impressive study offers a great place for a home office or extra space to entertain friends and family. Three junior bedrooms, one with an en suite bath, provide ample privacy and share a retreat and full bathroom on the second level.
It’s easy to wake up on the right side of the bed in the luxurious Owner’s Retreat, which includes a contemporary Owner’s Bath and a large walk-in closet.
May also be listed on the David Weekley Homes website
Information last verified by Jome: Friday at 1:42 AM (January 23, 2026)
Home details
- Property status:
- Sold
- Size:
- 2,696 sqft
- Stories:
- 2
- Beds:
- 4
- Baths:
- 3
- Half baths:
- 1
- Garage spaces:
- 2

Floor plan details
The Satinwood
- 4 bd
- 2.5 ba
- 2,671 sqft
View The Satinwood details
Construction details
- Builder Name:
- David Weekley Homes
- Completion Date:
- March, 2026
Home features & finishes
- Garage/Parking:
- Garage

Community details
The Preserve at Five Oaks
by David Weekley Homes, Lebanon, TN
- 2 homes
- 7 plans
- 2,082 - 3,062 sqft
View The Preserve at Five Oaks details
More homes in The Preserve at Five Oaks
- Home at address 1104 Callaway Dr, Lebanon, TN 37087

$614,990
Under construction- 4 bd
- 3 ba
- 2,875 sqft
1104 Callaway Dr, Lebanon, TN 37087
Floor plans in The Preserve at Five Oaks
About the builder - David Weekley Homes

- 362communities on Jome
- 1,485homes on Jome
Neighborhood
Home address
Schools in Lebanon Special School District
GreatSchools’ Summary Rating calculation is based on 4 of the school’s themed ratings, including test scores, student/academic progress, college readiness, and equity. This information should only be used as a reference. Jome is not affiliated with GreatSchools and does not endorse or guarantee this information. Please reach out to schools directly to verify all information and enrollment eligibility. Data provided by GreatSchools.org © 2025
Places of interest
Getting around
Air quality
Financials
Nearby communities in Lebanon
Homes in Lebanon by David Weekley Homes
Recently added communities in this area
Other Builders in Lebanon, TN
Nearby sold homes
New homes in nearby cities
More New Homes in Lebanon, TN
- Jome
- New homes search
- Tennessee
- Nashville-Memphis Area
- Wilson County
- Lebanon
- The Preserve at Five Oaks
- 1135 Callaway Dr, Lebanon, TN 37087

































































