



- 5 bd
- 4.5 ba
- 3,481 sqft
2905 Hudson Orr Dr, Maryville, TN 37803
- Single-Family
- $144.69/sqft
- 75 days on Jome
New Homes for Sale Near 2905 Hudson Orr Dr, Maryville, TN 37803
About this Home
About this home
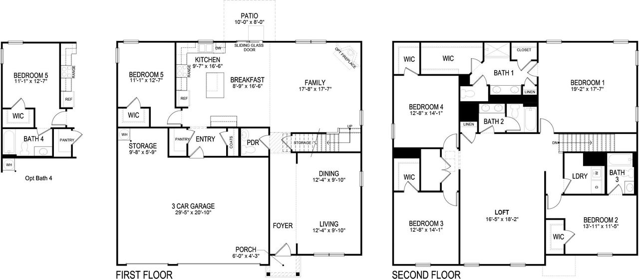
Introducing the Mansfield floorplan at whispering Springs in Maryville, a remarkable new home designed with space, style, and functionality in mind. With three stunning elevations to choose from, this two-story home offers 3,481 square feet of living space and architectural details that make a lasting impression. Paired with a three-car garage and a blend of timeless and modern exterior finishes, the Mansfield is built to stand out in this vibrant community.
Inside, you’ll find a thoughtfully designed layout with 5 bedrooms and 4.5 bathrooms, making it perfect for families of all sizes. The first floor boasts four versatile rooms, ideal for creating a guest suite, home office, or playroom. The open-concept design ensures the living, dining, and kitchen spaces flow together seamlessly, creating a welcoming environment for entertaining or everyday living.
With its generous square footage, high-quality finishes, and thoughtful design, the Mansfield at Whispering Springs is where your next chapter begins.
May also be listed on the D.R. Horton website
Information last verified by Jome: Thursday at 1:21 AM (November 20, 2025)
Home details
- Property status:
- Sold
- Size:
- 3,481 sqft
- Stories:
- 2
- Beds:
- 5
- Baths:
- 4.5
- Garage spaces:
- 3
Construction details
- Builder Name:
- D.R. Horton
Home features & finishes
- Garage/Parking:
- Garage

Community details
Whispering Springs
by D.R. Horton, Maryville, TN
- 4 homes
- 5 plans
- 1,891 - 4,398 sqft
View Whispering Springs details
More homes in Whispering Springs
Floor plans in Whispering Springs
About the builder - D.R. Horton
Neighborhood
Home address
Schools in Blount County School District
GreatSchools’ Summary Rating calculation is based on 4 of the school’s themed ratings, including test scores, student/academic progress, college readiness, and equity. This information should only be used as a reference. Jome is not affiliated with GreatSchools and does not endorse or guarantee this information. Please reach out to schools directly to verify all information and enrollment eligibility. Data provided by GreatSchools.org © 2025
Places of interest
Getting around
Air quality
Noise level
A Soundscore™ rating is a number between 50 (very loud) and 100 (very quiet) that tells you how loud a location is due to environmental noise.
Natural hazards risk
Climate hazards can impact homes and communities, with risks varying by location. These scores reflect the potential impact of natural disasters and climate-related risks on Blount County
Provided by FEMA
Financials
Nearby communities in Maryville
Homes in Maryville by D.R. Horton
Recently added communities in this area
Other Builders in Maryville, TN
Nearby sold homes
New homes in nearby cities
More New Homes in Maryville, TN
- Home
- New homes
- Tennessee
- Chattanooga-Knoxville Area
- Blount County
- Maryville
- Whispering Springs
- 2905 Hudson Orr Dr, Maryville, TN 37803

























































