








































- 4 bd
- 3.5 ba
- 1,797 sqft
254 Savoy Lp, Unit 441, Nolensville, TN 37135
- Single-Family
- $219.76/sqft
- 94 days on Jome
New Homes for Sale Near 254 Savoy Lp, Unit 441, Nolensville, TN 37135
About this Home
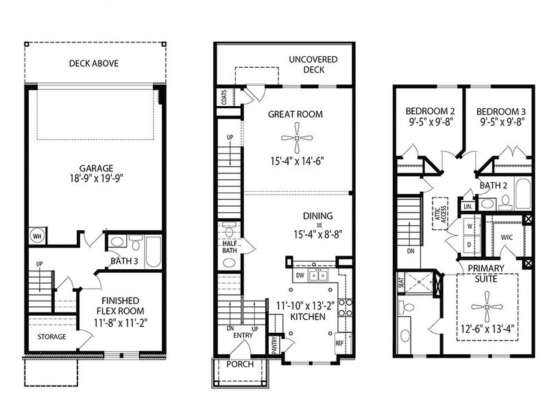
The High Point is a beautiful three-bedroom, 3.5 bath townhome that comes with a flex room and a two-car garage. The flex room, located on the lower level, is perfect for a home office, media room or fourth bedroom. The main living area is designed with an open-concept layout, a powder room, and access to the rear deck. On the third level, you will find the owner's suite and two secondary bedrooms.
May also be listed on the Regent Homes website
Information last verified by Jome: Tuesday at 9:00 PM (November 18, 2025)
Home details
- Property status:
- Sold
- Size:
- 1,797 sqft
- Stories:
- 3+
- Beds:
- 4
- Baths:
- 3
- Half baths:
- 1
- Garage spaces:
- 2
Construction details
- Builder Name:
- Regent Homes
Home features & finishes
- Garage/Parking:
- Garage

Community details
Carothers Farms
by Regent Homes, Nolensville, TN
- 15 homes
- 1,156 - 2,186 sqft
View Carothers Farms details
More homes in Carothers Farms
About the builder - Regent Homes
Neighborhood
Home address
- City:
- Nolensville
- County:
- Davidson
- Zip Code:
- 37135
Schools in Metropolitan Nashville Public School District
GreatSchools’ Summary Rating calculation is based on 4 of the school’s themed ratings, including test scores, student/academic progress, college readiness, and equity. This information should only be used as a reference. Jome is not affiliated with GreatSchools and does not endorse or guarantee this information. Please reach out to schools directly to verify all information and enrollment eligibility. Data provided by GreatSchools.org © 2025
Places of interest
Getting around
Air quality
Natural hazards risk
Climate hazards can impact homes and communities, with risks varying by location. These scores reflect the potential impact of natural disasters and climate-related risks on Davidson County
Provided by FEMA
Financials
Nearby communities in Nolensville
Homes in Nolensville by Regent Homes
Recently added communities in this area
Other Builders in Nolensville, TN
Nearby sold homes
New homes in nearby cities
More New Homes in Nolensville, TN
- Home
- New homes
- Tennessee
- Nashville-Memphis Area
- Davidson County
- Nolensville
- Carothers Farms
- 254 Savoy Lp, Unit 441, Nolensville, TN 37135



















































