



- 3 bd
- 2.5 ba
- 2,164 sqft
5048 Lost Creek Dr, Morristown, TN 37813
- Single-Family
- $165.35/sqft
- 143 days on Jome
New Homes for Sale Near 5048 Lost Creek Dr, Morristown, TN 37813
About this Home
About this home
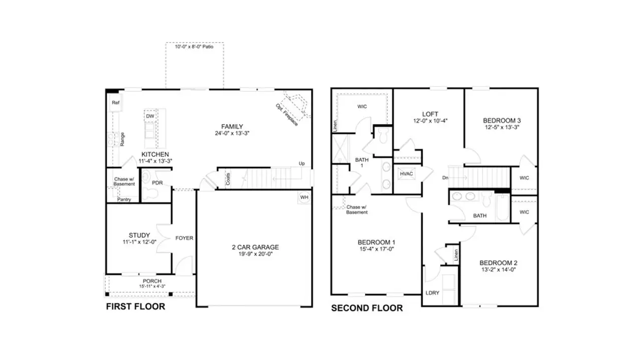
Welcome to the Penwell floorplan located in the Millstone Village community in Morristown. This beautiful two-story home boasts an open-concept design that is perfect for all stages of life. As soon as you enter the foyer, you'll be greeted by the eat-in kitchen and living area. The kitchen is equipped with a large pantry, ample cabinet space, and an island with countertop seating. On the first floor, you'll also find a powder room for convenience and a flex room that can function as an office or formal dining room. Upstairs, the loft is a great space for work or play. The primary bedroom features a spacious walk-in closet and a private bathroom. Two additional secondary bedrooms share a full bathroom. The laundry room is conveniently located on the second floor as well.
May also be listed on the D.R. Horton website
Information last verified by Jome: Tuesday at 10:16 AM (December 9, 2025)
Home details
- Property status:
- Sold
- Size:
- 2,164 sqft
- Stories:
- 2
- Beds:
- 3
- Baths:
- 2.5
- Garage spaces:
- 2
Construction details
- Builder Name:
- D.R. Horton
Home features & finishes
- Garage/Parking:
- Garage

Community details
Millstone Village
by D.R. Horton, Morristown, TN
- 22 homes
- 9 plans
- 1,618 - 2,890 sqft
View Millstone Village details
More homes in Millstone Village
- 5064 Lost Creek Dr, Morristown, TN 37813

$327,940
Move-in ready- 3 bd
- 2.5 ba
- 1,749 sqft
5064 Lost Creek Dr, Morristown, TN 37813
- 5044 Lost Creek Dr, Morristown, TN 37813

$328,105
Move-in ready- 3 bd
- 2 ba
- 1,618 sqft
5044 Lost Creek Dr, Morristown, TN 37813
- 5102 Grist Ln, Morristown, TN 37813

$328,105
Move-in ready- 3 bd
- 2 ba
- 1,618 sqft
5102 Grist Ln, Morristown, TN 37813
- 5061 Lost Creek Dr, Morristown, TN 37813

$328,105
Move-in ready- 3 bd
- 2 ba
- 1,618 sqft
5061 Lost Creek Dr, Morristown, TN 37813
- 5090 Grist Ln, Morristown, TN 37813

$328,105
Move-in ready- 3 bd
- 2 ba
- 1,618 sqft
5090 Grist Ln, Morristown, TN 37813
- 5053 Lost Creek Dr, Morristown, TN 37813

$328,900
Move-in ready- 3 bd
- 2.5 ba
- 1,645 sqft
5053 Lost Creek Dr, Morristown, TN 37813
Floor plans in Millstone Village
About the builder - D.R. Horton

- 1,199communities on Jome
- 8,970homes on Jome
Neighborhood
Home address
- City:
- Morristown
- County:
- Hamblen
- Zip Code:
- 37813
Schools in Hamblen County School District
GreatSchools’ Summary Rating calculation is based on 4 of the school’s themed ratings, including test scores, student/academic progress, college readiness, and equity. This information should only be used as a reference. Jome is not affiliated with GreatSchools and does not endorse or guarantee this information. Please reach out to schools directly to verify all information and enrollment eligibility. Data provided by GreatSchools.org © 2025
Places of interest
Getting around
Air quality
Noise level
A Soundscore™ rating is a number between 50 (very loud) and 100 (very quiet) that tells you how loud a location is due to environmental noise.
Financials
Nearby communities in Morristown
Homes in Morristown by D.R. Horton
Recently added communities in this area
Other Builders in Morristown, TN
Nearby sold homes
New homes in nearby cities
More New Homes in Morristown, TN
- Jome
- New homes search
- Tennessee
- Chattanooga-Knoxville Area
- Hamblen County
- Morristown
- Millstone Village
- 5048 Lost Creek Dr, Morristown, TN 37813





















































