














Book your tour. Save an average of $18,473. We'll handle the rest.
We collect exclusive builder offers, book your tours, and support you from start to housewarming.
- Confirmed tours
- Get matched & compare top deals
- Expert help, no pressure
- No added fees
Estimated value based on Jome data, T&C apply




Why tour with Jome?
- No pressure toursTour at your own pace with no sales pressure
- Expert guidanceGet insights from our home buying experts
- Exclusive accessSee homes and deals not available elsewhere
Jome is featured in
- Single-Family
- Ready by May 2026
- $139.3/sqft
- 15 days on Jome
Builder deals available
FHA 30 Year Fixed
$17,750 est. value- Rate buydown from 2.99% (1 year), 3.99% (2 year), 4.99% (3–30 year) with 5.746% APR, 3.5% down payment, and 720 credit score
Deals may change and are not guaranteed. Some deals apply to specific homes or plans. Not a financing offer. Eligibility varies by lender. Please verify details.
Home description
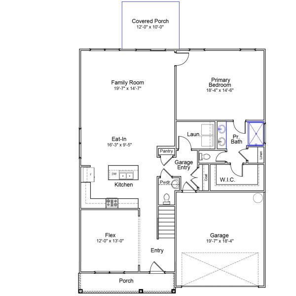
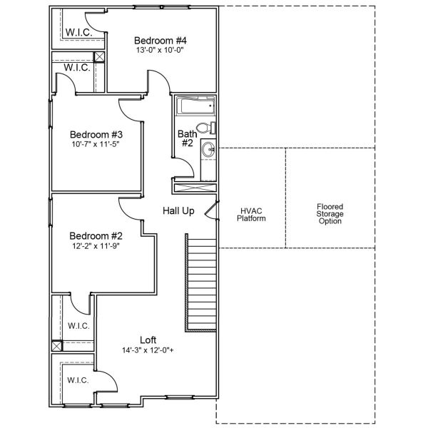
Welcome home to our inviting Pickens design. A two-story home with the primary bedroom on the main level, this home features a versatile flex room, an open living area, and a modern kitchen with an island. The primary bedroom includes a spacious walk-in closet and a luxurious en-suite bathroom. A convenient half-bath completes the downstairs. Upstairs, you'll find a loft area ideal for extra living space, plus three additional bedrooms that share a full bathroom. This home combines comfort and style, perfect for entertaining.
May also be listed on the Mungo Homes website
Information last verified by Jome: Today at 6:00 AM (February 26, 2026)
Book your tour. Save an average of $18,473. We'll handle the rest.
We collect exclusive builder offers, book your tours, and support you from start to housewarming.
- Confirmed tours
- Get matched & compare top deals
- Expert help, no pressure
- No added fees
Estimated value based on Jome data, T&C apply
Home details
- Property status:
- Under construction
- Size:
- 2,440 sqft
- Stories:
- 2
- Beds:
- 4
- Baths:
- 3
- Garage spaces:
- 2
Construction details
- Builder Name:
- Mungo Homes
- Completion Date:
- May, 2026
Home features & finishes
- Garage/Parking:
- Garage
- Rooms:
- Primary Bedroom Downstairs

Get a consultation with our New Homes Expert
- See how your home builds wealth
- Plan your home-buying roadmap
- Discover hidden gems

Community details
Jordan Grove
by Mungo Homes, Conway, SC
- 5 homes
- 9 plans
- 1,383 - 2,440 sqft
View Jordan Grove details
More homes in Jordan Grove
- Home at address 412 Meadow Sweet Pl, Conway, SC 29526

Guilford
$289,900
- 4 bd
- 2.5 ba
- 1,806 sqft
412 Meadow Sweet Pl, Conway, SC 29526
- Home at address 424 Meadow Sweet Pl, Conway, SC 29526

Gwinnett II
$364,900
- 4 bd
- 3 ba
- 2,213 sqft
424 Meadow Sweet Pl, Conway, SC 29526
Floor plans in Jordan Grove
- View details for Lancaster - Genesis Value Collection

Lancaster - Genesis Value Collection
$303,900+- 4 bd
- 2.5 ba
- 2,152 sqft
- View details for Pickens - Genesis Value Collection

Pickens - Genesis Value Collection
$309,900+- 4 bd
- 2.5 ba
- 2,431 sqft
About the builder - Mungo Homes
Neighborhood
Home address
Schools in Horry County School District
GreatSchools’ Summary Rating calculation is based on 4 of the school’s themed ratings, including test scores, student/academic progress, college readiness, and equity. This information should only be used as a reference. Jome is not affiliated with GreatSchools and does not endorse or guarantee this information. Please reach out to schools directly to verify all information and enrollment eligibility. Data provided by GreatSchools.org © 2025
Places of interest
Getting around
Air quality
Noise level
A Soundscore™ rating is a number between 50 (very loud) and 100 (very quiet) that tells you how loud a location is due to environmental noise.

Considering this home?
Our expert will guide your tour, in-person or virtual
Need more information?
Text or call (888) 488-9243
Financials
Estimated monthly payment
Let us help you find your dream home
How many bedrooms are you looking for?
Similar homes nearby
Recently added communities in this area
Nearby communities in Conway
New homes in nearby cities
More New Homes in Conway, SC
- Jome
- New homes search
- South Carolina
- Horry County
- Conway
- Jordan Grove
- 432 Meadow Sweet Pl, Conway, SC 29526




























