



Book your tour. Save an average of $18,473. We'll handle the rest.
We collect exclusive builder offers, book your tours, and support you from start to housewarming.
- Confirmed tours
- Get matched & compare top deals
- Expert help, no pressure
- No added fees
Estimated value based on Jome data, T&C apply
Why tour with Jome?
- No pressure toursTour at your own pace with no sales pressure
- Expert guidanceGet insights from our home buying experts
- Exclusive accessSee homes and deals not available elsewhere
Jome is featured in
- Single-Family
- Ready by May 2026
- $180.41/sqft
- 14 days on Jome
Builder deals available
FHA 30 Year Fixed
$15,920 est. value- Rate buydown from 2.99% (1 year), 3.99% (2 year), 4.99% (3–30 year) with 5.746% APR, 3.5% down payment, and 720 credit score
Deals may change and are not guaranteed. Some deals apply to specific homes or plans. Not a financing offer. Eligibility varies by lender. Please verify details.
Home description
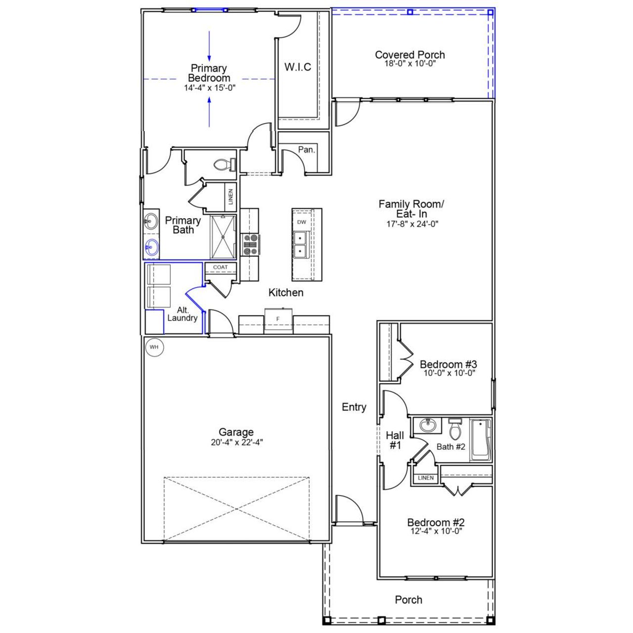
Welcome home to our thoughtfully designed, open, and spacious Decatur floor plan. This three-bedroom, two-bathroom home features a flowing layout that enhances both comfort and style. The living area seamlessly connects to the dining space and modern kitchen, creating an inviting setting for everyday living and entertaining. The primary bedroom offers generous space, including a well-sized closet and a luxurious en-suite bathroom. Two additional bedrooms provide ample room for guests, with easy access to the second well-appointed bathroom. This home blends an inviting open layout with thoughtful details, making it a perfect haven for relaxed living and memorable gatherings. This home is scheduled for completion in late spring.
May also be listed on the Mungo Homes website
Information last verified by Jome: Today at 6:00 AM (February 26, 2026)
Book your tour. Save an average of $18,473. We'll handle the rest.
We collect exclusive builder offers, book your tours, and support you from start to housewarming.
- Confirmed tours
- Get matched & compare top deals
- Expert help, no pressure
- No added fees
Estimated value based on Jome data, T&C apply
Home details
- Property status:
- Under construction
- Size:
- 1,690 sqft
- Stories:
- 1
- Beds:
- 3
- Baths:
- 2
- Garage spaces:
- 2
Construction details
- Builder Name:
- Mungo Homes
- Completion Date:
- May, 2026
Home features & finishes
- Garage/Parking:
- Garage
- Rooms:
- Primary Bedroom On MainPrimary Bedroom Downstairs

Get a consultation with our New Homes Expert
- See how your home builds wealth
- Plan your home-buying roadmap
- Discover hidden gems

Community details
Jordan Grove
by Mungo Homes, Conway, SC
- 5 homes
- 9 plans
- 1,383 - 2,440 sqft
View Jordan Grove details
More homes in Jordan Grove
- Home at address 412 Meadow Sweet Pl, Conway, SC 29526

Guilford
$289,900
- 4 bd
- 2.5 ba
- 1,806 sqft
412 Meadow Sweet Pl, Conway, SC 29526
- Home at address 405 Meadow Sweet Pl, Conway, SC 29526

Decatur
$304,900
- 3 bd
- 2 ba
- 1,690 sqft
405 Meadow Sweet Pl, Conway, SC 29526
- Home at address 432 Meadow Sweet Pl, Conway, SC 29526

Pickens
$339,900
- 4 bd
- 3 ba
- 2,440 sqft
432 Meadow Sweet Pl, Conway, SC 29526
- Home at address 424 Meadow Sweet Pl, Conway, SC 29526

Gwinnett II
$364,900
- 4 bd
- 3 ba
- 2,213 sqft
424 Meadow Sweet Pl, Conway, SC 29526
Floor plans in Jordan Grove
- View details for Ford - Genesis Value Collection

Ford - Genesis Value Collection
$259,900+- 3 bd
- 2 ba
- 1,383 sqft
- View details for Lawrence - Genesis Value Collection

Lawrence - Genesis Value Collection
$267,900+- 3 bd
- 2 ba
- 1,500 sqft
About the builder - Mungo Homes
Neighborhood
Home address
Schools in Horry County School District
GreatSchools’ Summary Rating calculation is based on 4 of the school’s themed ratings, including test scores, student/academic progress, college readiness, and equity. This information should only be used as a reference. Jome is not affiliated with GreatSchools and does not endorse or guarantee this information. Please reach out to schools directly to verify all information and enrollment eligibility. Data provided by GreatSchools.org © 2025
Places of interest
Getting around
Air quality
Noise level
A Soundscore™ rating is a number between 50 (very loud) and 100 (very quiet) that tells you how loud a location is due to environmental noise.

Considering this home?
Our expert will guide your tour, in-person or virtual
Need more information?
Text or call (888) 488-9243
Financials
Estimated monthly payment
Let us help you find your dream home
How many bedrooms are you looking for?
Similar homes nearby
Recently added communities in this area
Nearby communities in Conway
New homes in nearby cities
More New Homes in Conway, SC
- Jome
- New homes search
- South Carolina
- Horry County
- Conway
- Jordan Grove
- 159 Bolsin Ct, Conway, SC 29526
































