
















- 2 bd
- 2 ba
- 1,040 sqft
512 Molly Parker Wy, Spartanburg, SC 29301
- Single-Family
- $187.21/sqft
- 79 days on Jome
New Homes for Sale Near 512 Molly Parker Wy, Spartanburg, SC 29301
About this Home
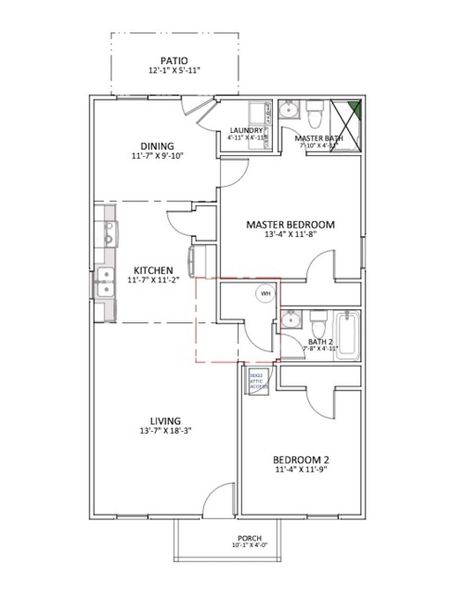
New Construction by local builder located in Spartanburg! The Elliott floor plan is a 2 Bedroom, 2 Bath, single story home. Standard features include Walk in Laundry, Luxury vinyl plank flooring in kitchen, dining and wet areas, Concrete back patio, and fully sodded yard. Great opportunity at a great price! Must See! Lot 62 - Elliott Plan. Ask about $7,500 Builder Incentive!
May also be listed on the Enchanted Homes website
Information last verified by Jome: Monday at 6:05 AM (January 19, 2026)
Home details
- Property status:
- Sold
- Size:
- 1,040 sqft
- Beds:
- 2
- Baths:
- 2
Construction details
- Builder Name:
- Enchanted Homes

Community details
Gentry Place
by Enchanted Homes, Spartanburg, SC
- 8 plans
- 832 - 1,612 sqft
View Gentry Place details
Floor plans in Gentry Place
About the builder - Enchanted Homes
Neighborhood
Home address
- City:
- Spartanburg
- County:
- Spartanburg
- Zip Code:
- 29301
Schools in Spartanburg School District 6
- Grades PK-PKPublicspartanburg six child development center0.7 mi3050 n. blackstock roadna
GreatSchools’ Summary Rating calculation is based on 4 of the school’s themed ratings, including test scores, student/academic progress, college readiness, and equity. This information should only be used as a reference. Jome is not affiliated with GreatSchools and does not endorse or guarantee this information. Please reach out to schools directly to verify all information and enrollment eligibility. Data provided by GreatSchools.org © 2025
Places of interest
Getting around
Air quality
Noise level
A Soundscore™ rating is a number between 50 (very loud) and 100 (very quiet) that tells you how loud a location is due to environmental noise.
Financials
Nearby communities in Spartanburg
Homes in Spartanburg Neighborhoods
Homes in Spartanburg by Enchanted Homes
Recently added communities in this area
Other Builders in Spartanburg, SC
Nearby sold homes
New homes in nearby cities
More New Homes in Spartanburg, SC
- Jome
- New homes search
- South Carolina
- Spartanburg County
- Spartanburg
- Gentry Place
- 512 Molly Parker Wy, Spartanburg, SC 29301





































































