




- 4 bd
- 3 ba
- 3,792 sqft
305 Kinsale Ct, Woodruff, SC 29388
- Single-Family
- $160.6/sqft
- 162 days on Jome
New Homes for Sale Near 305 Kinsale Ct, Woodruff, SC 29388
About this Home
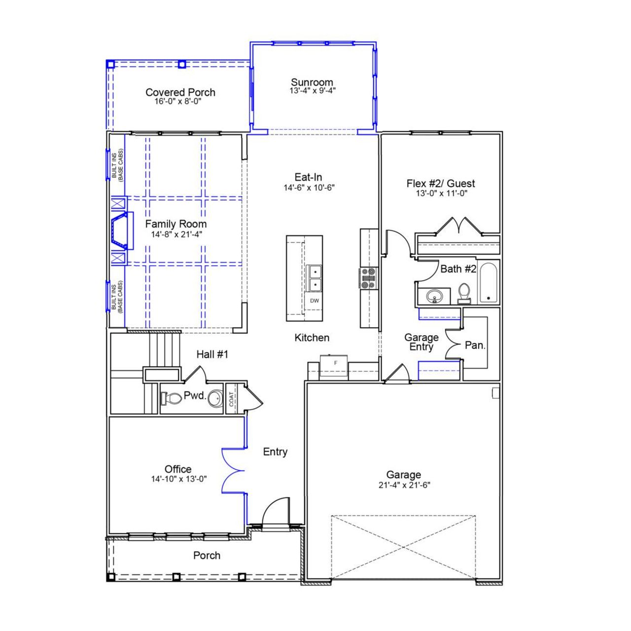
The Webster II is a four bedroom, three and one-half bath two-story home. An office located off the entry. This open plan features a large kitchen with center island, eat-in area and great room. The great room has coffered ceiling, fireplace and built ins. There is a large entry off the garage that features a walk-in pantry and has the optional bench and cubbies. A guest bedroom with a private bath is located on the first floor with a generous closet. A powder bath completes the first floor. Two secondary bedrooms with walk-in closets and a Jack and Jill bathroom are located upstairs along with a huge bonus room and convenient laundry room. The luxurious primary suite features a huge closet, boxed ceiling and the luxury bath option with seperate shower and tub. Fabulous culdesac lot location.
May also be listed on the Mungo Homes website
Information last verified by Jome: Wednesday at 6:04 AM (March 11, 2026)
Home details
- Property status:
- Sold
- Size:
- 3,792 sqft
- Stories:
- 2
- Beds:
- 4
- Baths:
- 3
- Garage spaces:
- 2
Construction details
- Builder Name:
- Mungo Homes
- Completion Date:
- May, 2026
Home features & finishes
- Garage/Parking:
- Garage
- Rooms:
- Primary Bedroom Upstairs

Community details
Bens Crossing
by Mungo Homes, Woodruff, SC
- 2 homes
- 9 plans
- 1,989 - 4,159 sqft
View Bens Crossing details
More homes in Bens Crossing
- Home at address 406 Foxford Dr, Woodruff, SC 29388

$574,000
Under construction- 5 bd
- 3 ba
- 3,053 sqft
406 Foxford Dr, Woodruff, SC 29388
- Home at address 405 Foxford Dr, Woodruff, SC 29388

$660,000
Under construction- 5 bd
- 4 ba
- 4,159 sqft
405 Foxford Dr, Woodruff, SC 29388
Floor plans in Bens Crossing
- View details for Nantahala II - Vanguard Collection

Nantahala II - Vanguard Collection
$420,000+- 4 bd
- 2.5 ba
- 2,450 sqft
- View details for Peachtree - Vanguard Collection

Peachtree - Vanguard Collection
$443,000+- 4 bd
- 2.5 ba
- 2,703 sqft
About the builder - Mungo Homes
Neighborhood
Home address
- City:
- Woodruff
- County:
- Spartanburg
- Zip Code:
- 29388
Schools in Spartanburg School District 5
GreatSchools’ Summary Rating calculation is based on 4 of the school’s themed ratings, including test scores, student/academic progress, college readiness, and equity. This information should only be used as a reference. Jome is not affiliated with GreatSchools and does not endorse or guarantee this information. Please reach out to schools directly to verify all information and enrollment eligibility. Data provided by GreatSchools.org © 2025
Places of interest
Getting around
Air quality
Noise level
A Soundscore™ rating is a number between 50 (very loud) and 100 (very quiet) that tells you how loud a location is due to environmental noise.
Financials
Nearby communities in Woodruff
Homes in Woodruff by Mungo Homes
Recently added communities in this area
Other Builders in Woodruff, SC
Nearby sold homes
New homes in nearby cities
More New Homes in Woodruff, SC
- Jome
- New homes search
- South Carolina
- Spartanburg County
- Woodruff
- Bens Crossing
- 305 Kinsale Ct, Woodruff, SC 29388



































































