




- 3 bd
- 2 ba
- 2,388 sqft
270 Castlebar St, Woodruff, SC 29388
- Single-Family
- $214.11/sqft
- 163 days on Jome
New Homes for Sale Near 270 Castlebar St, Woodruff, SC 29388
About this Home
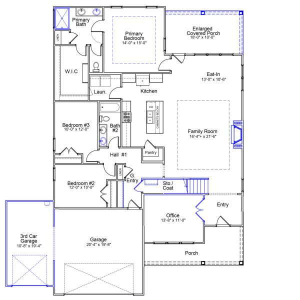
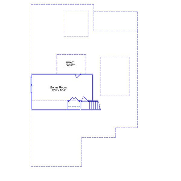
The Cumberland with a three-car garage is a thoughtfully designed 1.5-story home featuring three bedrooms and two full baths. Upon entering, you’re welcomed by an open-concept layout that seamlessly connects the great room and eat-in kitchen. The great room showcases a boxed ceiling and a cozy fireplace, creating an inviting space for everyday living and entertaining. The primary suite offers a private retreat with a spacious tiled shower, a generous walk-in closet, and convenient pass-through access to the laundry room. Tucked behind the kitchen are two secondary bedrooms that share a full bath, providing comfort and privacy for guests or family members. The flex room has been converted into a home office with elegant double glass doors, while the garage entry features a functional bench and cubbies for added organization. An optional second floor has been added, offering a large bonus room that provides endless possibilities for recreation, work, or relaxation.
May also be listed on the Mungo Homes website
Information last verified by Jome: Thursday at 5:33 AM (March 19, 2026)
Home details
- Property status:
- Sold
- Size:
- 2,388 sqft
- Stories:
- 1
- Beds:
- 3
- Baths:
- 2
- Garage spaces:
- 3
Construction details
- Builder Name:
- Mungo Homes
- Completion Date:
- April, 2026
Home features & finishes
- Garage/Parking:
- Garage
- Rooms:
- Primary Bedroom On MainPrimary Bedroom Downstairs

Community details
Bens Crossing
by Mungo Homes, Woodruff, SC
- 2 homes
- 9 plans
- 1,989 - 4,159 sqft
View Bens Crossing details
More homes in Bens Crossing
- Home at address 406 Foxford Dr, Woodruff, SC 29388

$574,000
Under construction- 5 bd
- 3 ba
- 3,053 sqft
406 Foxford Dr, Woodruff, SC 29388
- Home at address 405 Foxford Dr, Woodruff, SC 29388

$660,000
Under construction- 5 bd
- 4 ba
- 4,159 sqft
405 Foxford Dr, Woodruff, SC 29388
Floor plans in Bens Crossing
- View details for Hunter - Vanguard Collection

Hunter - Vanguard Collection
$406,000+- 3 bd
- 2 ba
- 1,989 sqft
- View details for Cumberland - Vanguard Collection

Cumberland - Vanguard Collection
$407,000+- 3 bd
- 2 ba
- 2,020 sqft
About the builder - Mungo Homes
Neighborhood
Home address
- City:
- Woodruff
- County:
- Spartanburg
- Zip Code:
- 29388
Schools in Spartanburg School District 5
GreatSchools’ Summary Rating calculation is based on 4 of the school’s themed ratings, including test scores, student/academic progress, college readiness, and equity. This information should only be used as a reference. Jome is not affiliated with GreatSchools and does not endorse or guarantee this information. Please reach out to schools directly to verify all information and enrollment eligibility. Data provided by GreatSchools.org © 2025
Places of interest
Getting around
Air quality
Noise level
A Soundscore™ rating is a number between 50 (very loud) and 100 (very quiet) that tells you how loud a location is due to environmental noise.
Financials
Nearby communities in Woodruff
Homes in Woodruff by Mungo Homes
Recently added communities in this area
Other Builders in Woodruff, SC
Nearby sold homes
New homes in nearby cities
More New Homes in Woodruff, SC
- Jome
- New homes search
- South Carolina
- Spartanburg County
- Woodruff
- Bens Crossing
- 270 Castlebar St, Woodruff, SC 29388



































































