














Book your tour. Save an average of $18,473. We'll handle the rest.
- Confirmed tours
- Get matched & compare top deals
- Expert help, no pressure
- No added fees
Estimated value based on Jome data, T&C apply













Why tour with Jome?
- No pressure toursTour at your own pace with no sales pressure
- Expert guidanceGet insights from our home buying experts
- Exclusive accessSee homes and deals not available elsewhere
Jome is featured in
- Single-Family
- Ready by April 2026
- $165.37/sqft
- 10 days on Jome
Home description
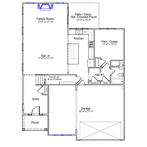
The Saluda is a two-story plan featuring four bedrooms, three bathrooms, and an optional covered back porch. Immediately upon entry, you are greeted by the open concept eat-in with optional pet pad, kitchen, and great room with an optional fireplace and coffered ceiling. There is an alternative kitchen option that moves the sink from overlooking the back porch to the island. There is an optional sunroom with available entries from the great room or kitchen with or without a raised bar. A full bathroom sits just inside the entrance from the three-car garage, with an optional bench and cubbies. A flex space or guest bedroom completes the main level. Upstairs, the primary bedroom features a walk-in closet with laundry room passthrough and an ensuite bathroom with optional dual sinks and tub and shower combination. The primary bedroom has an optional boxed ceiling, window seat, and sitting room. The second level offers two secondary bedrooms with private walk-in closets and a conveniently located full bathroom with optional dual sinks. There is an alternative floor plan available that offers an additional secondary bedroom and full bathroom. A loft space that can be converted into a bonus room or additional secondary bedroom completes the second level.
May also be listed on the Mungo Homes website
Information last verified by Jome: Today at 5:54 AM (December 5, 2025)
Home highlights
Book your tour. Save an average of $18,473. We'll handle the rest.
We collect exclusive builder offers, book your tours, and support you from start to housewarming.
- Confirmed tours
- Get matched & compare top deals
- Expert help, no pressure
- No added fees
Estimated value based on Jome data, T&C apply
Home details
- Property status:
- Under construction
- Size:
- 2,836 sqft
- Stories:
- 2
- Beds:
- 4
- Baths:
- 3
- Garage spaces:
- 3
Construction details
- Builder Name:
- Mungo Homes
- Completion Date:
- April, 2026
Home features & finishes
- Garage/Parking:
- Garage
- Rooms:
- Primary Bedroom Upstairs

Community details
Parris Meadows
by Mungo Homes, Chesnee, SC
- 4 homes
- 6 plans
- 2,466 - 4,037 sqft
View Parris Meadows details
More homes in Parris Meadows
Floor plans in Parris Meadows
About the builder - Mungo Homes
Neighborhood
Home address
- City:
- Chesnee
- County:
- Spartanburg
- Zip Code:
- 29323
Schools in Spartanburg School District 2
- Grades PK-04Privatekids first child development center2.9 mi153 fosters grove rdna
GreatSchools’ Summary Rating calculation is based on 4 of the school’s themed ratings, including test scores, student/academic progress, college readiness, and equity. This information should only be used as a reference. Jome is not affiliated with GreatSchools and does not endorse or guarantee this information. Please reach out to schools directly to verify all information and enrollment eligibility. Data provided by GreatSchools.org © 2025
Places of interest
Getting around
Air quality
Noise level
A Soundscore™ rating is a number between 50 (very loud) and 100 (very quiet) that tells you how loud a location is due to environmental noise.
Natural hazards risk
Climate hazards can impact homes and communities, with risks varying by location. These scores reflect the potential impact of natural disasters and climate-related risks on Spartanburg County
Provided by FEMA

Considering this home?
Our expert will guide your tour, in-person or virtual
Need more information?
Text or call (888) 486-2818
Financials
Estimated monthly payment
Similar homes nearby
Recently added communities in this area
Nearby communities in Chesnee
New homes in nearby cities
More New Homes in Chesnee, SC
- Home
- New homes
- South Carolina
- Spartanburg County
- Chesnee
- Parris Meadows
- 2058 Emily Margaret Rd, Chesnee, SC 29323


































