



Book your tour. Save an average of $18,473. We'll handle the rest.
We collect exclusive builder offers, book your tours, and support you from start to housewarming.
- Confirmed tours
- Get matched & compare top deals
- Expert help, no pressure
- No added fees
Estimated value based on Jome data, T&C apply

Why tour with Jome?
- No pressure toursTour at your own pace with no sales pressure
- Expert guidanceGet insights from our home buying experts
- Exclusive accessSee homes and deals not available elsewhere
Jome is featured in
- Single-Family
- Ready by June 2026
- $143.1/sqft
- 99 days on Jome
Builder deals available
- TOP-TIER DEAL
FHA 30 Year Fixed
$34,000 est. value- Rate buydown from 2.99% (1 year), 3.99% (2 year), 4.99% (3–30 year) with 5.895% APR, 3.5% down payment, and 720 credit score
Any loan type
$15,000 est. value- $15,000 flex cash
Deals may change and are not guaranteed. Some deals apply to specific homes or plans. Not a financing offer. Eligibility varies by lender. Please verify details.
Home description
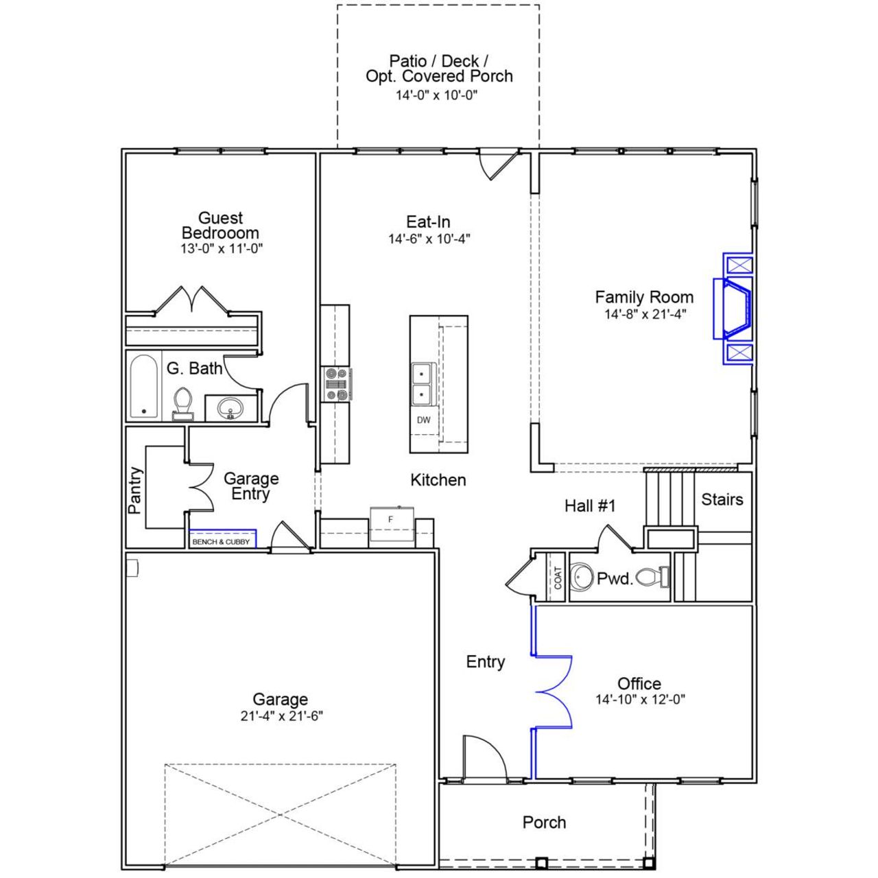
The inviting exterior of this home welcomes you inside! Upon entering, you'll notice the luxury vinyl plank flooring that flows throughout the common areas. Just off the foyer, French doors lead to a private office, perfect for those who work from home. The open-concept living areas make it ideal for entertaining. The chef of the home will appreciate the oversized island with quartz countertops, a spacious walk-in pantry, upgraded cabinetry, and stainless-steel gas range and appliances. Enjoy cozy movie nights by the fireplace, overlooking the tranquil half-acre wooded backyard. A guest suite on the main floor provides a comfortable space for overnight visitors. At the top of the stairs, a large loft offers ample room for family activities and relaxation. The primary suite is a true retreat, complete with French doors that open to a spa-like bathroom featuring a five-foot tile shower, dual sinks with quartz countertops, and two walk-in closets. Additionally, two spacious secondary bedrooms share a well-appointed bathroom.
May also be listed on the Mungo Homes website
Information last verified by Jome: Today at 6:05 AM (May 27, 2026)
Book your tour. Save an average of $18,473. We'll handle the rest.
We collect exclusive builder offers, book your tours, and support you from start to housewarming.
- Confirmed tours
- Get matched & compare top deals
- Expert help, no pressure
- No added fees
Estimated value based on Jome data, T&C apply
Home details
- Property status:
- Under construction
- Size:
- 3,578 sqft
- Stories:
- 2
- Beds:
- 4
- Baths:
- 3
- Half baths:
- 1
- Garage spaces:
- 2
Construction details
- Builder Name:
- Mungo Homes
- Completion Date:
- June, 2026
Home features & finishes
- Garage/Parking:
- Garage
- Rooms:
- Primary Bedroom Upstairs

Get a consultation with our New Homes Expert
- See how your home builds wealth
- Plan your home-buying roadmap
- Discover hidden gems

Community details
Parris Meadows
by Mungo Homes, Chesnee, SC
- 4 homes
- 2,466 - 3,578 sqft
View Parris Meadows details
More homes in Parris Meadows
- Home at address 1061 Paula Parris Rd, Chesnee, SC 29323

Richardson
Savings$431,000
- 4 bd
- 2.5 ba
- 2,466 sqft
1061 Paula Parris Rd, Chesnee, SC 29323
- Home at address 2058 Emily Margaret Rd, Chesnee, SC 29323

Saluda
Savings$457,000
- 4 bd
- 3.5 ba
- 2,850 sqft
2058 Emily Margaret Rd, Chesnee, SC 29323
- Home at address 2057 Emily Margaret Rd, Chesnee, SC 29323

Warwick II
Savings$499,000
- 4 bd
- 3.5 ba
- 3,307 sqft
2057 Emily Margaret Rd, Chesnee, SC 29323
About the builder - Mungo Homes
Neighborhood
Home address
- City:
- Chesnee
- County:
- Spartanburg
- Zip Code:
- 29323
Schools in Spartanburg School District 2
- Grades PK-04Privatekids first child development center2.9 mi153 fosters grove rdna
GreatSchools’ Summary Rating calculation is based on 4 of the school’s themed ratings, including test scores, student/academic progress, college readiness, and equity. This information should only be used as a reference. Jome is not affiliated with GreatSchools and does not endorse or guarantee this information. Please reach out to schools directly to verify all information and enrollment eligibility. Data provided by GreatSchools.org © 2025
Places of interest
Getting around
Air quality
Noise level
A Soundscore™ rating is a number between 50 (very loud) and 100 (very quiet) that tells you how loud a location is due to environmental noise.

Considering this home?
Our expert will guide your tour, in-person or virtual
Need more information?
Text or call (888) 545-5198
Financials
Estimated monthly payment
Let us help you find your dream home
How many bedrooms are you looking for?
Similar homes nearby
Recently added communities in this area
Nearby communities in Chesnee
New homes in nearby cities
More New Homes in Chesnee, SC
- Jome
- New homes search
- South Carolina
- Spartanburg County
- Chesnee
- Parris Meadows
- 2061 Emily Margaret Rd, Chesnee, SC 29323



























