




























- 3 bd
- 2 ba
- 1,548 sqft
12146 Lansbury Dr, Inman, SC 29349
- Single-Family
- $167.31/sqft
- 132 days on Jome
New Homes for Sale Near 12146 Lansbury Dr, Inman, SC 29349
About this Home
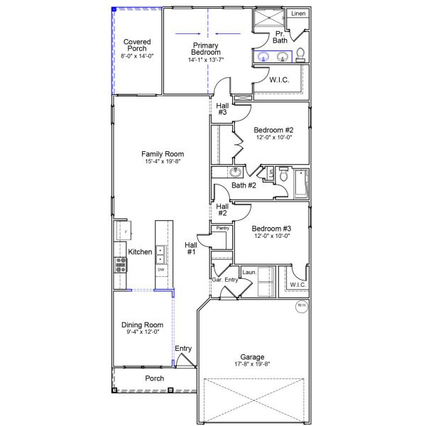
The Brunswick is a thoughtfully designed three-bedroom, two-bathroom home that perfectly blends charm, efficiency, and modern comfort. Its single-story layout features an open-concept kitchen, dining, and living area - ideal for gathering with loved ones. Stylish and durable luxury vinyl plank flooring flows throughout the main living spaces, combining beauty with easy maintenance. The spacious primary suite includes a private bath and walk-in closet, while two additional bedrooms offer comfort and flexibility for guests, a home office, or hobbies. Step outside to a covered patio - perfect for relaxing or entertaining outdoors.
May also be listed on the Mungo Homes website
Information last verified by Jome: Sunday at 6:09 AM (February 15, 2026)
Home details
- Property status:
- Sold
- Size:
- 1,548 sqft
- Stories:
- 1
- Beds:
- 3
- Baths:
- 2
- Garage spaces:
- 2
Construction details
- Builder Name:
- Mungo Homes
- Completion Date:
- April, 2026
Home features & finishes
- Garage/Parking:
- Garage
- Rooms:
- Primary Bedroom On MainPrimary Bedroom Downstairs

Community details
Richmond Hill
by Mungo Homes, Inman, SC
- 8 homes
- 9 plans
- 1,148 - 2,621 sqft
View Richmond Hill details
More homes in Richmond Hill
- Home at address 12158 Lansbury Dr, Inman, SC 29349

$239,000
Under construction- 3 bd
- 2 ba
- 1,148 sqft
12158 Lansbury Dr, Inman, SC 29349
- Home at address 12123 Lansbury Dr, Inman, SC 29349

$249,000
Under construction- 3 bd
- 2 ba
- 1,369 sqft
12123 Lansbury Dr, Inman, SC 29349
- Home at address 12142 Lansbury Dr, Inman, SC 29349

$253,000
Under construction- 3 bd
- 2.5 ba
- 1,369 sqft
12142 Lansbury Dr, Inman, SC 29349
- Home at address 12178 Lansbury Dr, Inman, SC 29349

$276,000
Under construction- 3 bd
- 2 ba
- 1,548 sqft
12178 Lansbury Dr, Inman, SC 29349
- Home at address 12115 Lansbury Dr, Inman, SC 29349

$280,000
Under construction- 4 bd
- 2.5 ba
- 1,786 sqft
12115 Lansbury Dr, Inman, SC 29349
- Home at address 12127 Lansbury Dr, Inman, SC 29349

$287,000
Under construction- 3 bd
- 2.5 ba
- 1,984 sqft
12127 Lansbury Dr, Inman, SC 29349
Floor plans in Richmond Hill
- View details for Baker - Genesis Value Collection

Baker - Genesis Value Collection
$221,000+- 3 bd
- 2 ba
- 1,148 sqft
- View details for Barnwell - Genesis Value Collection

Barnwell - Genesis Value Collection
$234,000+- 3 bd
- 2.5 ba
- 1,369 sqft
About the builder - Mungo Homes
Neighborhood
Home address
- City:
- Inman
- County:
- Spartanburg
- Zip Code:
- 29349
Schools in Spartanburg School District 2
GreatSchools’ Summary Rating calculation is based on 4 of the school’s themed ratings, including test scores, student/academic progress, college readiness, and equity. This information should only be used as a reference. Jome is not affiliated with GreatSchools and does not endorse or guarantee this information. Please reach out to schools directly to verify all information and enrollment eligibility. Data provided by GreatSchools.org © 2025
Places of interest
Getting around
Air quality
Noise level
A Soundscore™ rating is a number between 50 (very loud) and 100 (very quiet) that tells you how loud a location is due to environmental noise.
Financials
Nearby communities in Inman
Homes in Inman by Mungo Homes
Recently added communities in this area
Other Builders in Inman, SC
Nearby sold homes
New homes in nearby cities
More New Homes in Inman, SC
- Jome
- New homes search
- South Carolina
- Spartanburg County
- Inman
- Richmond Hill
- 12146 Lansbury Dr, Inman, SC 29349


























































