









Book your tour. Save an average of $18,473. We'll handle the rest.
We collect exclusive builder offers, book your tours, and support you from start to housewarming.
- Confirmed tours
- Get matched & compare top deals
- Expert help, no pressure
- No added fees
Estimated value based on Jome data, T&C apply















Why tour with Jome?
- No pressure toursTour at your own pace with no sales pressure
- Expert guidanceGet insights from our home buying experts
- Exclusive accessSee homes and deals not available elsewhere
Jome is featured in
- Single-Family
- Ready by July 2026
- $133.42/sqft
- 52 days on Jome
Home description
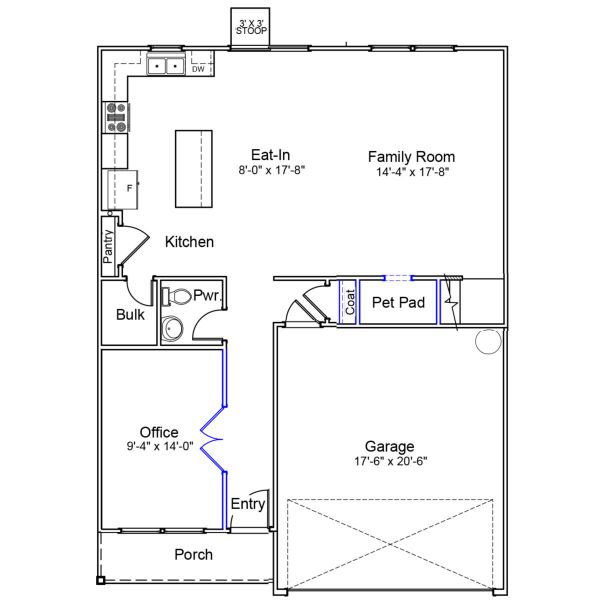
Welcome to the Meriwether floor plan, a spacious and versatile home! The open-concept kitchen boasts stylish finishes and flows seamlessly into the living and dining areas, making it ideal for entertaining, with an additional guest suite on the main floor! The main floor is enhanced with durable luxury vinyl plank flooring, while the upstairs features a spacious loft, creating a perfect second living space. The primary suite offers a luxurious retreat with huge walk-in closets, dual sinks and a five-foot walk-in shower with glass doors. Step outside to the back patio, perfect for relaxing or enjoying outdoor gatherings.
May also be listed on the Mungo Homes website
Information last verified by Jome: Yesterday at 5:47 AM (April 11, 2026)
Book your tour. Save an average of $18,473. We'll handle the rest.
We collect exclusive builder offers, book your tours, and support you from start to housewarming.
- Confirmed tours
- Get matched & compare top deals
- Expert help, no pressure
- No added fees
Estimated value based on Jome data, T&C apply
Home details
- Property status:
- Under construction
- Size:
- 2,241 sqft
- Stories:
- 2
- Beds:
- 3
- Baths:
- 2
- Half baths:
- 1
- Garage spaces:
- 2
Construction details
- Builder Name:
- Mungo Homes
- Completion Date:
- July, 2026
Home features & finishes
- Garage/Parking:
- Garage
- Rooms:
- Primary Bedroom Upstairs

Get a consultation with our New Homes Expert
- See how your home builds wealth
- Plan your home-buying roadmap
- Discover hidden gems

Community details
Richmond Hill
by Mungo Homes, Inman, SC
- 8 homes
- 9 plans
- 1,148 - 2,621 sqft
View Richmond Hill details
More homes in Richmond Hill
- Home at address 12123 Lansbury Dr, Inman, SC 29349

Barnwell
$249,000
- 3 bd
- 2 ba
- 1,369 sqft
12123 Lansbury Dr, Inman, SC 29349
- Home at address 12178 Lansbury Dr, Inman, SC 29349

Brunswick
$273,000
- 3 bd
- 2 ba
- 1,548 sqft
12178 Lansbury Dr, Inman, SC 29349
- Home at address 12115 Lansbury Dr, Inman, SC 29349

Guilford
$276,000
- 4 bd
- 2.5 ba
- 1,786 sqft
12115 Lansbury Dr, Inman, SC 29349
- Home at address 12127 Lansbury Dr, Inman, SC 29349

Kershaw
$284,000
- 3 bd
- 2.5 ba
- 1,984 sqft
12127 Lansbury Dr, Inman, SC 29349
- Home at address 12170 Lansbury Dr, Inman, SC 29349

Meriwether
$304,000
- 3 bd
- 2.5 ba
- 2,237 sqft
12170 Lansbury Dr, Inman, SC 29349
- Home at address 12196 Lansbury Dr, Inman, SC 29349

Monroe
$309,000
- 4 bd
- 2.5 ba
- 2,392 sqft
12196 Lansbury Dr, Inman, SC 29349
Floor plans in Richmond Hill
- View details for Baker - Genesis Value Collection

Baker - Genesis Value Collection
$221,000+- 3 bd
- 2 ba
- 1,148 sqft
- View details for Barnwell - Genesis Value Collection

Barnwell - Genesis Value Collection
$234,000+- 3 bd
- 2.5 ba
- 1,369 sqft
About the builder - Mungo Homes
Neighborhood
Home address
- City:
- Inman
- County:
- Spartanburg
- Zip Code:
- 29349
Schools in Spartanburg School District 2
GreatSchools’ Summary Rating calculation is based on 4 of the school’s themed ratings, including test scores, student/academic progress, college readiness, and equity. This information should only be used as a reference. Jome is not affiliated with GreatSchools and does not endorse or guarantee this information. Please reach out to schools directly to verify all information and enrollment eligibility. Data provided by GreatSchools.org © 2025
Places of interest
Getting around
Air quality
Noise level
A Soundscore™ rating is a number between 50 (very loud) and 100 (very quiet) that tells you how loud a location is due to environmental noise.

Considering this home?
Our expert will guide your tour, in-person or virtual
Need more information?
Text or call (888) 545-5198
Financials
Estimated monthly payment
Let us help you find your dream home
How many bedrooms are you looking for?
Similar homes nearby
Recently added communities in this area
Nearby communities in Inman
New homes in nearby cities
More New Homes in Inman, SC
- Jome
- New homes search
- South Carolina
- Spartanburg County
- Inman
- Richmond Hill
- 12150 Lansbury Dr, Inman, SC 29349































