























- 4 bd
- 2.5 ba
- 2,844 sqft
7068 Fairview Falls Dr, Chesnee, SC 29323
- Single-Family
- $122.71/sqft
- 40 days on Jome
New Homes for Sale Near 7068 Fairview Falls Dr, Chesnee, SC 29323
About this Home
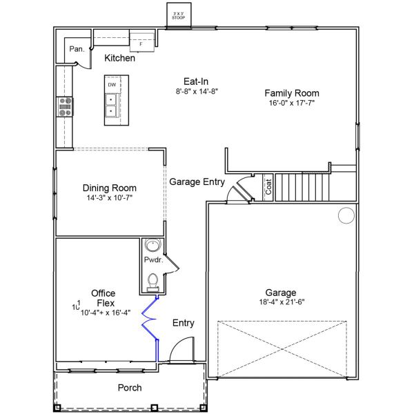
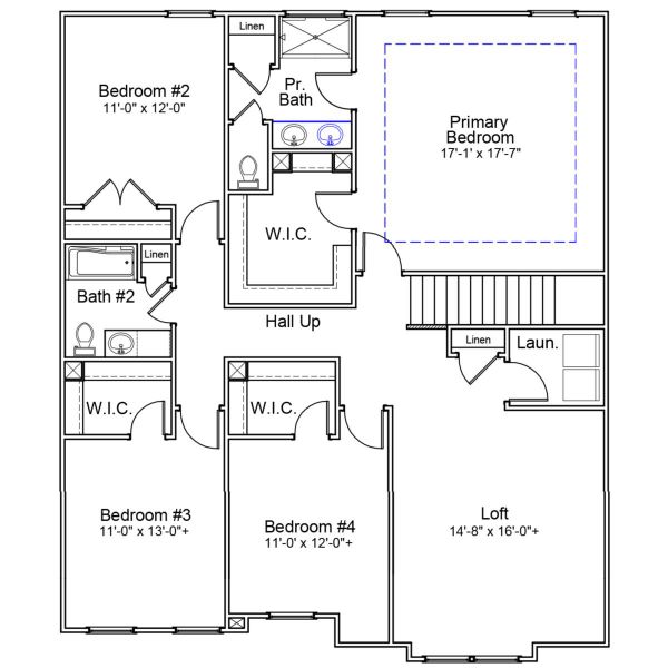
The white vinyl exterior and gray accents of this beautiful home invite you to explore inside. As you enter the foyer, you'll be greeted by stunning luxury vinyl plank flooring that flows throughout the first level. French doors lead into a spacious office, perfect for working from home or serving as a playroom. The well-placed dining room makes it easy to entertain loved ones. You'll love the upgraded kitchen, which features shaker-style cabinetry, stainless steel gas appliances, and quartz countertops. The great room is filled with natural light from numerous windows, offering fantastic views of the wooded backyard, which spans over an acre. At the top of the stairs, a spacious loft provides an ideal area for movie nights or game nights. The primary bedroom features a tray ceiling, dual sinks with quartz countertops, a five-foot shower, and a large walk-in closet. The remaining three bedrooms are also generously sized and share a hall bathroom. Come see this home today in Fairview Falls!
May also be listed on the Mungo Homes website
Information last verified by Jome: Thursday at 5:48 AM (November 13, 2025)
Home details
- Property status:
- Sold
- Size:
- 2,844 sqft
- Stories:
- 2
- Beds:
- 4
- Baths:
- 2
- Half baths:
- 1
- Garage spaces:
- 2
Construction details
- Builder Name:
- Mungo Homes
- Completion Date:
- November, 2025
Home features & finishes
- Garage/Parking:
- Garage
- Rooms:
- Primary Bedroom Upstairs

Community details
Fairview Falls
by Mungo Homes, Chesnee, SC
- 5 homes
- 1,677 - 2,477 sqft
View Fairview Falls details
More homes in Fairview Falls
About the builder - Mungo Homes
Neighborhood
Home address
- City:
- Chesnee
- County:
- Spartanburg
- Zip Code:
- 29323
Schools in Spartanburg School District 2
GreatSchools’ Summary Rating calculation is based on 4 of the school’s themed ratings, including test scores, student/academic progress, college readiness, and equity. This information should only be used as a reference. Jome is not affiliated with GreatSchools and does not endorse or guarantee this information. Please reach out to schools directly to verify all information and enrollment eligibility. Data provided by GreatSchools.org © 2025
Places of interest
Getting around
Air quality
Noise level
A Soundscore™ rating is a number between 50 (very loud) and 100 (very quiet) that tells you how loud a location is due to environmental noise.
Natural hazards risk
Climate hazards can impact homes and communities, with risks varying by location. These scores reflect the potential impact of natural disasters and climate-related risks on Spartanburg County
Provided by FEMA
Financials
Nearby communities in Chesnee
Homes in Chesnee by Mungo Homes
Recently added communities in this area
Other Builders in Chesnee, SC
Nearby sold homes
New homes in nearby cities
More New Homes in Chesnee, SC
- Jome
- New homes search
- South Carolina
- Spartanburg County
- Chesnee
- Fairview Falls
- 7068 Fairview Falls Dr, Chesnee, SC 29323



























































