



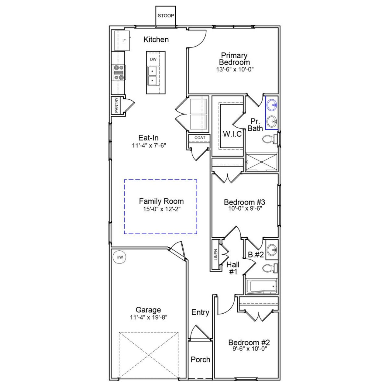
- 3 bd
- 2 ba
- 1,148 sqft
210 Laurinton Farms Dr, Hopkins, SC 29061
- Single-Family
- $174.22/sqft
- 160 days on Jome
New Homes for Sale Near 210 Laurinton Farms Dr, Hopkins, SC 29061
About this Home
The Baker is a charming one-story, open concept floor plan that is ideal for entertaining small groups or cozy nights in. The kitchen boasts modern appliances, white cabinets, ample counter space, and a convenient breakfast bar. The primary suite is a private retreat, complete with a large walk-in closet and an en-suite bathroom with dual vanities. The additional two bedrooms share access to a full bathroom. Schedule your tour today!
May also be listed on the Mungo Homes website
Information last verified by Jome: Thursday at 5:50 AM (January 22, 2026)
Home details
- Property status:
- Sold
- Size:
- 1,148 sqft
- Stories:
- 1
- Beds:
- 3
- Baths:
- 2
- Garage spaces:
- 1
Construction details
- Builder Name:
- Mungo Homes
- Completion Date:
- March, 2026
Home features & finishes
- Garage/Parking:
- Garage
- Rooms:
- Primary Bedroom On MainPrimary Bedroom Downstairs

Community details
Laurinton Farms
by Mungo Homes, Hopkins, SC
- 13 homes
- 8 plans
- 1,148 - 1,962 sqft
View Laurinton Farms details
More homes in Laurinton Farms
- Home at address 322 Tartan Rd, Hopkins, SC 29061

$219,000
Under construction- 3 bd
- 2.5 ba
- 1,661 sqft
322 Tartan Rd, Hopkins, SC 29061
- Home at address 228 Laurinton Farms Dr, Hopkins, SC 29061

$220,018
Under construction- 3 bd
- 2 ba
- 1,148 sqft
228 Laurinton Farms Dr, Hopkins, SC 29061
- Home at address 326 Tartan Rd, Hopkins, SC 29061

$224,000
Under construction- 3 bd
- 2.5 ba
- 1,661 sqft
326 Tartan Rd, Hopkins, SC 29061
- Home at address 320 Tartan Rd, Hopkins, SC 29061

$224,000
Under construction- 3 bd
- 2.5 ba
- 1,661 sqft
320 Tartan Rd, Hopkins, SC 29061
- Home at address 318 Tartan Rd, Hopkins, SC 29061

$224,990
Under construction- 3 bd
- 2.5 ba
- 1,661 sqft
318 Tartan Rd, Hopkins, SC 29061
- Home at address 312 Tartan Rd, Hopkins, SC 29061

$225,000
Under construction- 3 bd
- 2.5 ba
- 1,661 sqft
312 Tartan Rd, Hopkins, SC 29061
Floor plans in Laurinton Farms
- View details for Baker - Genesis Value Collection

Baker - Genesis Value Collection
$202,785+- 3 bd
- 2 ba
- 1,148 sqft
- View details for Bartow - Genesis Value Collection

Bartow - Genesis Value Collection
$220,144+- 3 bd
- 2.5 ba
- 1,476 sqft
About the builder - Mungo Homes
Neighborhood
Home address
Schools in Richland School District 1
GreatSchools’ Summary Rating calculation is based on 4 of the school’s themed ratings, including test scores, student/academic progress, college readiness, and equity. This information should only be used as a reference. Jome is not affiliated with GreatSchools and does not endorse or guarantee this information. Please reach out to schools directly to verify all information and enrollment eligibility. Data provided by GreatSchools.org © 2025
Places of interest
Getting around
Air quality
Noise level
A Soundscore™ rating is a number between 50 (very loud) and 100 (very quiet) that tells you how loud a location is due to environmental noise.
Financials
Nearby communities in Hopkins
Homes in Hopkins by Mungo Homes
Recently added communities in this area
Other Builders in Hopkins, SC
Nearby sold homes
New homes in nearby cities
More New Homes in Hopkins, SC
- Jome
- New homes search
- South Carolina
- Richland County
- Hopkins
- Laurinton Farms
- 210 Laurinton Farms Dr, Hopkins, SC 29061


































































