



Book your tour. Save an average of $18,473. We'll handle the rest.
We collect exclusive builder offers, book your tours, and support you from start to housewarming.
- Confirmed tours
- Get matched & compare top deals
- Expert help, no pressure
- No added fees
Estimated value based on Jome data, T&C apply

Why tour with Jome?
- No pressure toursTour at your own pace with no sales pressure
- Expert guidanceGet insights from our home buying experts
- Exclusive accessSee homes and deals not available elsewhere
Jome is featured in
- Single-Family
- Ready by May 2026
- $131.85/sqft
- 148 days on Jome
Home description
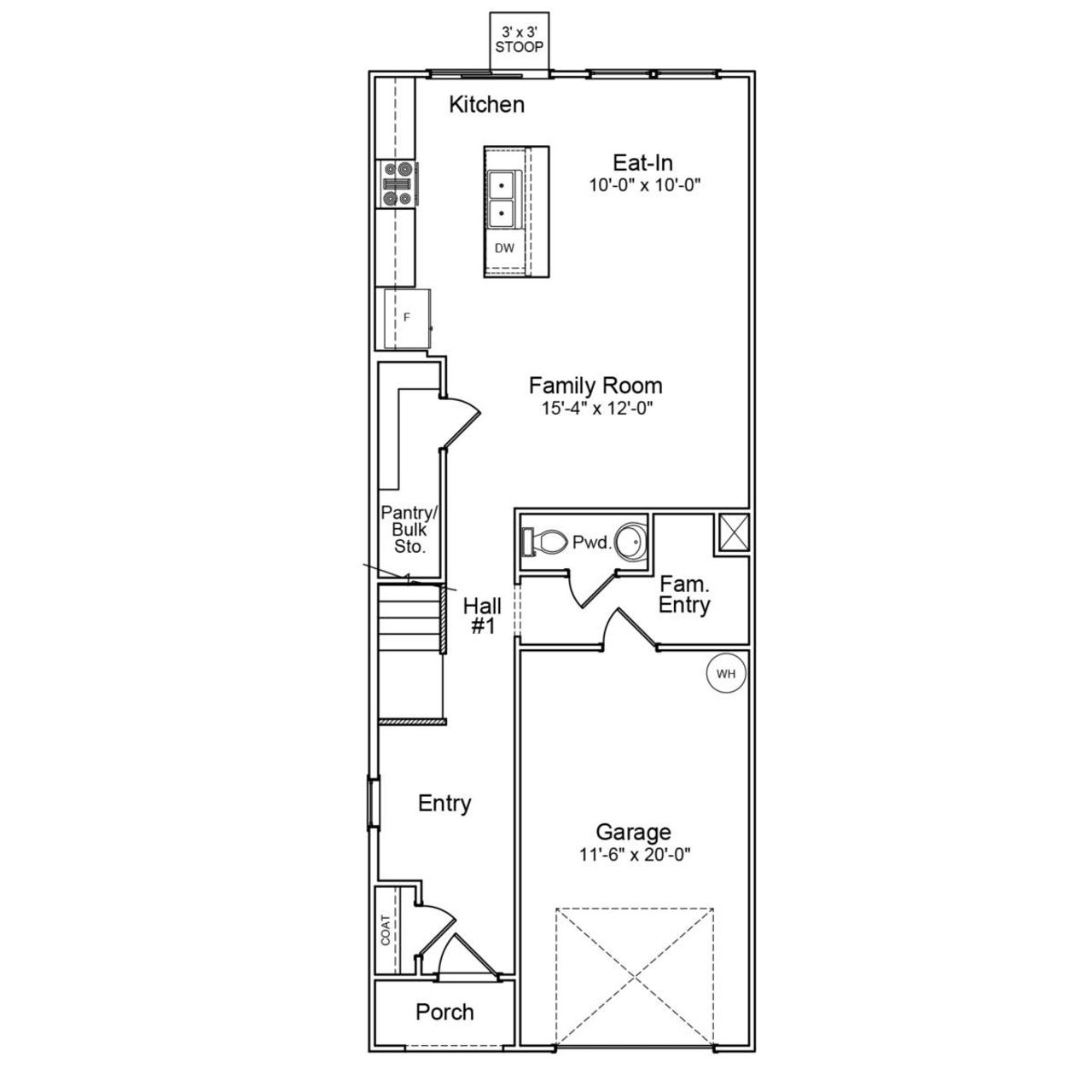
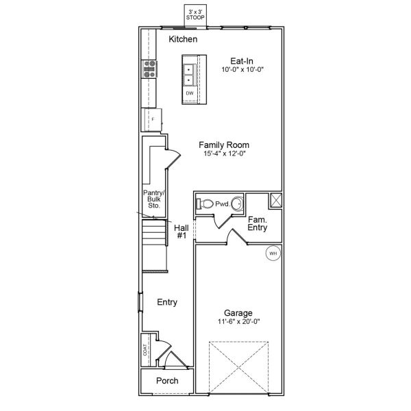
The Douglas floor plan is a two-story, three-bedroom, two-and-one-half-bathroom home that beautifully combines modern design with everyday comfort. Step through the front door into a bright, open-concept great room, eat-in area, and kitchen featuring stylish stone gray cabinets, elegant Dallas white countertops, and a sleek electric stove—perfect for both cooking and entertaining. A convenient powder room is tucked away just off the garage entry.
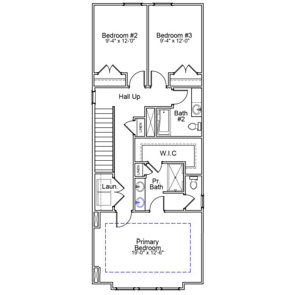
Upstairs, the primary suite offers a spacious walk-in closet and a private bathroom complete with a five-foot fiberglass shower, water closet, and linen closet. The laundry closet is conveniently located just outside the primary suite, with the secondary bedrooms down the hall. An alternate second-floor layout is available, offering a second primary suite in place of the secondary bedrooms. Come tour this home today in our beautiful Laurinton Farms community!
May also be listed on the Mungo Homes website
Information last verified by Jome: Today at 5:34 AM (March 20, 2026)
Book your tour. Save an average of $18,473. We'll handle the rest.
We collect exclusive builder offers, book your tours, and support you from start to housewarming.
- Confirmed tours
- Get matched & compare top deals
- Expert help, no pressure
- No added fees
Estimated value based on Jome data, T&C apply
Home details
- Property status:
- Under construction
- Size:
- 1,661 sqft
- Stories:
- 2
- Beds:
- 3
- Baths:
- 2
- Half baths:
- 1
- Garage spaces:
- 1
Construction details
- Builder Name:
- Mungo Homes
- Completion Date:
- May, 2026
Home features & finishes
- Garage/Parking:
- Garage
- Rooms:
- Primary Bedroom Upstairs

Get a consultation with our New Homes Expert
- See how your home builds wealth
- Plan your home-buying roadmap
- Discover hidden gems

Community details
Laurinton Farms
by Mungo Homes, Hopkins, SC
- 13 homes
- 8 plans
- 1,148 - 2,202 sqft
View Laurinton Farms details
More homes in Laurinton Farms
- Home at address 228 Laurinton Farms Dr, Hopkins, SC 29061

Baker
$220,018
- 3 bd
- 2 ba
- 1,148 sqft
228 Laurinton Farms Dr, Hopkins, SC 29061
- Home at address 326 Tartan Rd, Hopkins, SC 29061

Dillon
$224,000
- 3 bd
- 2.5 ba
- 1,661 sqft
326 Tartan Rd, Hopkins, SC 29061
- Home at address 320 Tartan Rd, Hopkins, SC 29061

Dillon
$224,000
- 3 bd
- 2.5 ba
- 1,661 sqft
320 Tartan Rd, Hopkins, SC 29061
- Home at address 318 Tartan Rd, Hopkins, SC 29061

Douglas
$224,990
- 3 bd
- 2.5 ba
- 1,661 sqft
318 Tartan Rd, Hopkins, SC 29061
- Home at address 312 Tartan Rd, Hopkins, SC 29061

Douglas
$225,000
- 3 bd
- 2.5 ba
- 1,661 sqft
312 Tartan Rd, Hopkins, SC 29061
- Home at address 225 Laurinton Farms Dr, Hopkins, SC 29061

Baker
$229,663
- 3 bd
- 2 ba
- 1,148 sqft
225 Laurinton Farms Dr, Hopkins, SC 29061
Floor plans in Laurinton Farms
- View details for Baker - Genesis Value Collection

Baker - Genesis Value Collection
$202,785+- 3 bd
- 2 ba
- 1,148 sqft
- View details for Bartow - Genesis Value Collection

Bartow - Genesis Value Collection
$220,144+- 3 bd
- 2.5 ba
- 1,476 sqft
About the builder - Mungo Homes
Neighborhood
Home address
Schools in Richland School District 1
GreatSchools’ Summary Rating calculation is based on 4 of the school’s themed ratings, including test scores, student/academic progress, college readiness, and equity. This information should only be used as a reference. Jome is not affiliated with GreatSchools and does not endorse or guarantee this information. Please reach out to schools directly to verify all information and enrollment eligibility. Data provided by GreatSchools.org © 2025
Places of interest
Getting around
Air quality
Noise level
A Soundscore™ rating is a number between 50 (very loud) and 100 (very quiet) that tells you how loud a location is due to environmental noise.

Considering this home?
Our expert will guide your tour, in-person or virtual
Need more information?
Text or call (888) 545-5198
Financials
Estimated monthly payment
Let us help you find your dream home
How many bedrooms are you looking for?
Similar homes nearby
Recently added communities in this area
Nearby communities in Hopkins
New homes in nearby cities
More New Homes in Hopkins, SC
- Jome
- New homes search
- South Carolina
- Richland County
- Hopkins
- Laurinton Farms
- 322 Tartan Rd, Hopkins, SC 29061






























