




Book your tour. Save an average of $18,473. We'll handle the rest.
We collect exclusive builder offers, book your tours, and support you from start to housewarming.
- Confirmed tours
- Get matched & compare top deals
- Expert help, no pressure
- No added fees
Estimated value based on Jome data, T&C apply
Why tour with Jome?
- No pressure toursTour at your own pace with no sales pressure
- Expert guidanceGet insights from our home buying experts
- Exclusive accessSee homes and deals not available elsewhere
Jome is featured in
- Single-Family
- Ready by April 2026
- $135.45/sqft
- 135 days on Jome
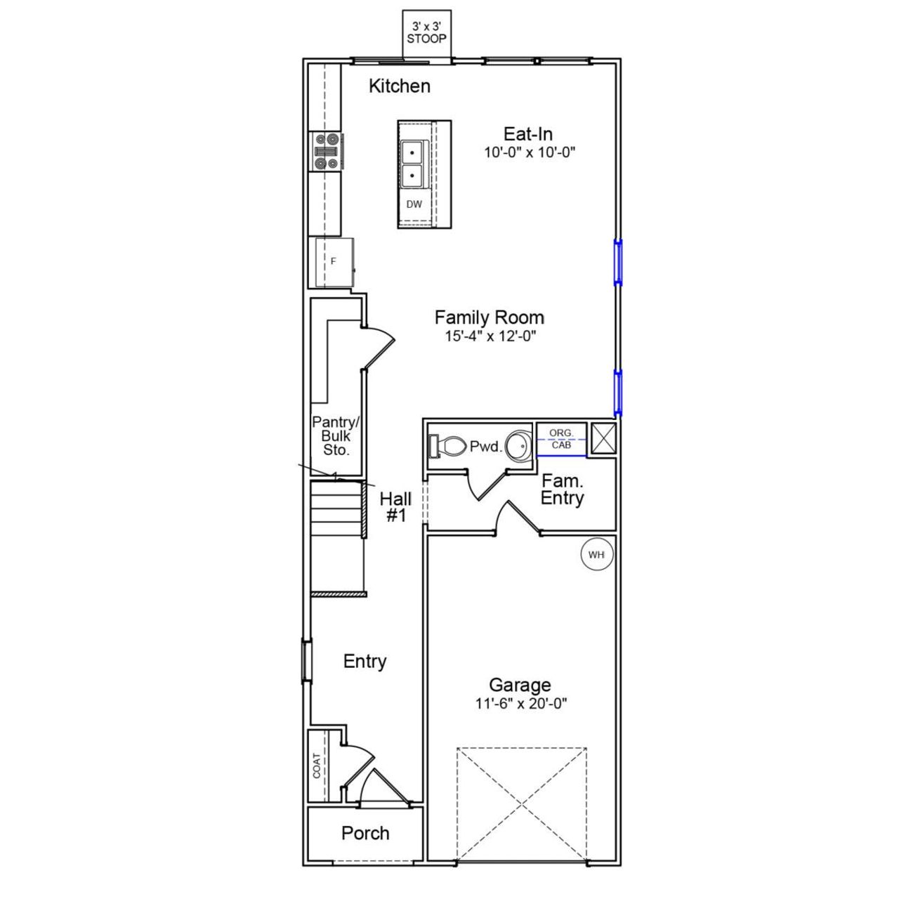
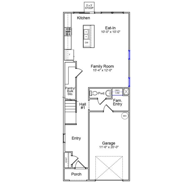
Home description
The Douglas plan is a two-story, three-bedroom, two-and-one-half-bathroom home that combines style and comfort. Enter through the front door into a spacious open-concept great room, eat-in area, and kitchen featuring elegant stone gray cabinets, stunning Dallas white countertops, and a sleek electric stove perfect for everyday living and entertaining. A convenient powder room is tucked away off the garage entry.
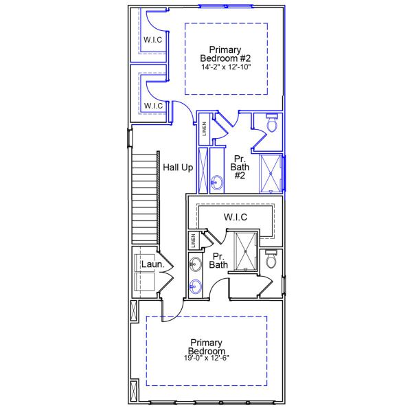
Upstairs, the primary suite offers a generous walk-in closet and a private bathroom complete with a five-foot fiberglass shower, water closet, and linen closet. The laundry closet is conveniently located just outside the primary suite, with the secondary bedrooms down the hall. Come tour this home today in our beautiful Laurinton Farms community!
May also be listed on the Mungo Homes website
Information last verified by Jome: Today at 6:08 AM (March 7, 2026)
Book your tour. Save an average of $18,473. We'll handle the rest.
We collect exclusive builder offers, book your tours, and support you from start to housewarming.
- Confirmed tours
- Get matched & compare top deals
- Expert help, no pressure
- No added fees
Estimated value based on Jome data, T&C apply
Home details
- Property status:
- Under construction
- Size:
- 1,661 sqft
- Stories:
- 2
- Beds:
- 3
- Baths:
- 2
- Half baths:
- 1
- Garage spaces:
- 1
Construction details
- Builder Name:
- Mungo Homes
- Completion Date:
- April, 2026
Home features & finishes
- Garage/Parking:
- Garage
- Rooms:
- Primary Bedroom Upstairs

Get a consultation with our New Homes Expert
- See how your home builds wealth
- Plan your home-buying roadmap
- Discover hidden gems

Community details
Laurinton Farms
by Mungo Homes, Hopkins, SC
- 9 homes
- 8 plans
- 1,148 - 1,951 sqft
View Laurinton Farms details
More homes in Laurinton Farms
- Home at address 322 Tartan Rd, Hopkins, SC 29061

Douglas
$219,000
- 3 bd
- 2.5 ba
- 1,661 sqft
322 Tartan Rd, Hopkins, SC 29061
- Home at address 213 Laurinton Farms Dr, Hopkins, SC 29061

Bartow
$221,000
- 3 bd
- 2.5 ba
- 1,476 sqft
213 Laurinton Farms Dr, Hopkins, SC 29061
- Home at address 326 Tartan Rd, Hopkins, SC 29061

Dillon
$224,000
- 3 bd
- 2.5 ba
- 1,661 sqft
326 Tartan Rd, Hopkins, SC 29061
- Home at address 310 Tartan Rd, Hopkins, SC 29061

Dillon
$224,000
- 3 bd
- 2.5 ba
- 1,661 sqft
310 Tartan Rd, Hopkins, SC 29061
- Home at address 320 Tartan Rd, Hopkins, SC 29061

Dillon
$224,990
- 3 bd
- 2.5 ba
- 1,661 sqft
320 Tartan Rd, Hopkins, SC 29061
- Home at address 312 Tartan Rd, Hopkins, SC 29061

Douglas
$225,000
- 3 bd
- 2.5 ba
- 1,661 sqft
312 Tartan Rd, Hopkins, SC 29061
Floor plans in Laurinton Farms
- View details for Baker - Genesis Value Collection

Baker - Genesis Value Collection
$202,785+- 3 bd
- 2 ba
- 1,148 sqft
- View details for Bartow - Genesis Value Collection

Bartow - Genesis Value Collection
$220,144+- 3 bd
- 2.5 ba
- 1,476 sqft
About the builder - Mungo Homes
Neighborhood
Home address
Schools in Richland School District 1
GreatSchools’ Summary Rating calculation is based on 4 of the school’s themed ratings, including test scores, student/academic progress, college readiness, and equity. This information should only be used as a reference. Jome is not affiliated with GreatSchools and does not endorse or guarantee this information. Please reach out to schools directly to verify all information and enrollment eligibility. Data provided by GreatSchools.org © 2025
Places of interest
Getting around
Air quality
Noise level
A Soundscore™ rating is a number between 50 (very loud) and 100 (very quiet) that tells you how loud a location is due to environmental noise.

Considering this home?
Our expert will guide your tour, in-person or virtual
Need more information?
Text or call (888) 488-9243
Financials
Estimated monthly payment
Let us help you find your dream home
How many bedrooms are you looking for?
Similar homes nearby
Recently added communities in this area
Nearby communities in Hopkins
New homes in nearby cities
More New Homes in Hopkins, SC
- Jome
- New homes search
- South Carolina
- Richland County
- Hopkins
- Laurinton Farms
- 318 Tartan Rd, Hopkins, SC 29061





























