








Book your tour. Save an average of $18,473. We'll handle the rest.
We collect exclusive builder offers, book your tours, and support you from start to housewarming.
- Confirmed tours
- Get matched & compare top deals
- Expert help, no pressure
- No added fees
Estimated value based on Jome data, T&C apply







































Why tour with Jome?
- No pressure toursTour at your own pace with no sales pressure
- Expert guidanceGet insights from our home buying experts
- Exclusive accessSee homes and deals not available elsewhere
Jome is featured in
- Single-Family
- Quick move-in
- $171.29/sqft
- 256 days on Jome
Home description
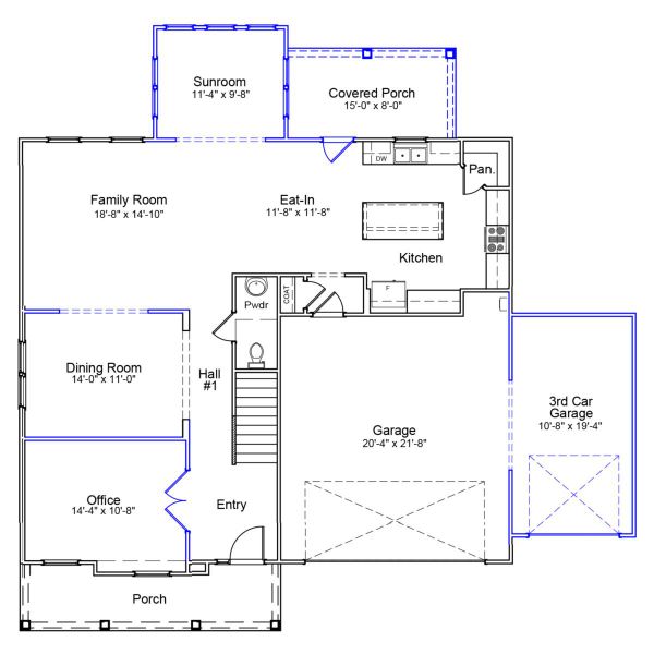
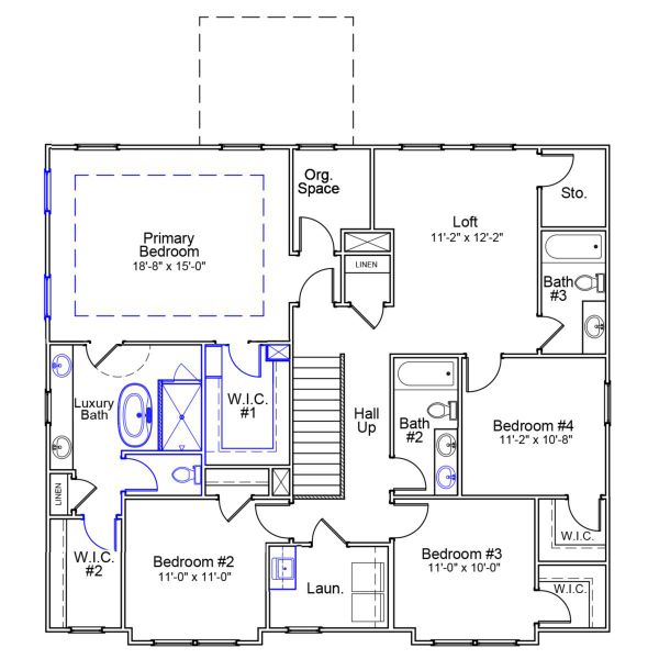
The Roland II is a two-story home with four bedrooms and three-and-one-half baths. Upon entering, you are greeted by an office space and formal dining room just beyond that on the elongated hallway. The office space contains double glass doors for privacy & class, and the dining room has two openings to the hallway & great room for extra convenience. The great room is open to the eat-in and kitchen. Off the back of the home, there is a sunroom for leisure activity and a covered porch that overlook a beautiful private wooded homesite. The kitchen contains upgraded solid surface countertops, a farmhouse sink, and stainless steel appliances. The upstairs primary bedroom includes a boxed ceiling, dual closets, and an organization space! The primary bathroom contains a luxury shower, free-standing soaker tub, and double vanities! Three secondary bedrooms are also located upstairs along with two secondary bathrooms, a spacious loft, and an enlarged laundry room with countertops and a sink.
May also be listed on the Mungo Homes website
Information last verified by Jome: Yesterday at 6:03 AM (May 3, 2026)
Book your tour. Save an average of $18,473. We'll handle the rest.
We collect exclusive builder offers, book your tours, and support you from start to housewarming.
- Confirmed tours
- Get matched & compare top deals
- Expert help, no pressure
- No added fees
Estimated value based on Jome data, T&C apply
Home details
- Property status:
- Move-in ready
- Size:
- 2,989 sqft
- Stories:
- 2
- Beds:
- 4
- Baths:
- 3
- Half baths:
- 1
- Garage spaces:
- 3
Construction details
- Builder Name:
- Mungo Homes
- Completion Date:
- December, 2025
Home features & finishes
- Garage/Parking:
- Garage
- Rooms:
- Primary Bedroom Upstairs

Get a consultation with our New Homes Expert
- See how your home builds wealth
- Plan your home-buying roadmap
- Discover hidden gems

Community details
Ridgecrest at Midway
by Mungo Homes, Anderson, SC
- 6 homes
- 9 plans
- 1,531 - 4,180 sqft
View Ridgecrest at Midway details
More homes in Ridgecrest at Midway
- Home at address TBD Oak Grove Ln, Unit 73, Anderson, SC 29621

Elliott
$466,000
- 4 bd
- 3 ba
- 2,367 sqft
TBD Oak Grove Ln, Unit 73, Anderson, SC 29621
- Home at address 3140 Midway Rd, Anderson, SC 29621

Roanoke
$502,000
- 4 bd
- 3.5 ba
- 2,718 sqft
3140 Midway Rd, Anderson, SC 29621
- Home at address TBD Oak Grove Ln, Unit 74, Anderson, SC 29621

Savannah
$518,000
- 5 bd
- 3.5 ba
- 3,084 sqft
TBD Oak Grove Ln, Unit 74, Anderson, SC 29621
- Home at address TBD Oak Grove Ln, Unit 75, Anderson, SC 29621

Yates II
$576,000
- 5 bd
- 4.5 ba
- 4,180 sqft
TBD Oak Grove Ln, Unit 75, Anderson, SC 29621
Floor plans in Ridgecrest at Midway
- View details for Roanoke - Vanguard Collection

Roanoke - Vanguard Collection
$399,000+- 4 bd
- 2.5 ba
- 2,708 sqft
- View details for Savannah - Vanguard Collection

Savannah - Vanguard Collection
$402,000+- 5 bd
- 2.5 ba
- 2,886 sqft
About the builder - Mungo Homes
Neighborhood
Home address
Schools in Anderson School District 5
GreatSchools’ Summary Rating calculation is based on 4 of the school’s themed ratings, including test scores, student/academic progress, college readiness, and equity. This information should only be used as a reference. Jome is not affiliated with GreatSchools and does not endorse or guarantee this information. Please reach out to schools directly to verify all information and enrollment eligibility. Data provided by GreatSchools.org © 2025
Places of interest
Getting around
Air quality
Noise level
A Soundscore™ rating is a number between 50 (very loud) and 100 (very quiet) that tells you how loud a location is due to environmental noise.

Considering this home?
Our expert will guide your tour, in-person or virtual
Need more information?
Text or call (888) 545-5198
Financials
Estimated monthly payment
Let us help you find your dream home
How many bedrooms are you looking for?
Similar homes nearby
Recently added communities in this area
Nearby communities in Anderson
New homes in nearby cities
More New Homes in Anderson, SC
- Jome
- New homes search
- South Carolina
- Anderson County
- Anderson
- Ridgecrest at Midway
- 3124 Midway Rd, Anderson, SC 29621































