














Book your tour. Save an average of $18,473. We'll handle the rest.
We collect exclusive builder offers, book your tours, and support you from start to housewarming.
- Confirmed tours
- Get matched & compare top deals
- Expert help, no pressure
- No added fees
Estimated value based on Jome data, T&C apply


















Why tour with Jome?
- No pressure toursTour at your own pace with no sales pressure
- Expert guidanceGet insights from our home buying experts
- Exclusive accessSee homes and deals not available elsewhere
Jome is featured in
- Single-Family
- Quick move-in
- $200.36/sqft
- 192 days on Jome
Home description
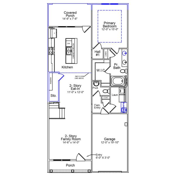
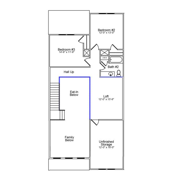
Welcome to the Hyacinth! This carefully crafted interior unit features three bedrooms, two-and-one-half baths, and a spacious loft. From the moment you enter, the great room—with its soaring two-story ceiling—makes an immediate and lasting impression. Expansive windows across both levels fill the home with natural light, while luxury vinyl plank flooring throughout the main living area, a wood staircase with decorative railing, and high-end finishes create a refined and pristine aesthetic. The kitchen is designed with both style and function, offering light gray soft-close cabinetry, quartz countertops, a tiled backsplash, and a GE stainless steel electric appliance package. Tucked beyond the kitchen, the primary bedroom includes a tray ceiling and a ceiling fan. The en-suite bath showcases dual sinks with quartz countertops, a tiled shower with a glass enclosure, and a walk-in closet. Step outside to a covered porch that overlooks a treeline with golf course views—the perfect backdrop for your morning coffee. Upstairs, you’ll find two additional bedrooms, a full bath, and a loft that overlooks the stunning two-story great room below. A generous unfinished storage room offers space for seasonal items, while a convenient laundry room and half bath at the garage entry complete this thoughtfully designed home. Live a laid-back lifestyle and enjoy all that Murrells Inlet has to offer, just minutes from this boutique new community, Bally Castle!
May also be listed on the Mungo Homes website
Information last verified by Jome: Today at 5:48 AM (February 26, 2026)
Book your tour. Save an average of $18,473. We'll handle the rest.
We collect exclusive builder offers, book your tours, and support you from start to housewarming.
- Confirmed tours
- Get matched & compare top deals
- Expert help, no pressure
- No added fees
Estimated value based on Jome data, T&C apply
Home details
- Property status:
- Move-in ready
- Size:
- 1,926 sqft
- Stories:
- 2
- Beds:
- 3
- Baths:
- 2
- Half baths:
- 1
- Garage spaces:
- 1
Construction details
- Builder Name:
- Mungo Homes
- Completion Date:
- February, 2026
Home features & finishes
- Garage/Parking:
- Garage
- Rooms:
- Primary Bedroom Downstairs

Get a consultation with our New Homes Expert
- See how your home builds wealth
- Plan your home-buying roadmap
- Discover hidden gems

Community details
Bally Castle
by Mungo Homes, Murrells Inlet, SC
- 5 homes
- 2 plans
- 1,856 - 2,053 sqft
View Bally Castle details
More homes in Bally Castle
- Home at address 471 Ireland Wy, Murrells Inlet, SC 29576

Hydrangea
$385,900
- 4 bd
- 3.5 ba
- 2,053 sqft
471 Ireland Wy, Murrells Inlet, SC 29576
- Home at address 232 Layla Wy, Murrells Inlet, SC 29576

Hyacinth
$386,900
- 3 bd
- 2.5 ba
- 1,856 sqft
232 Layla Wy, Murrells Inlet, SC 29576
- Home at address 236 Layla Wy, Murrells Inlet, SC 29576

Hydrangea
$401,900
- 4 bd
- 3.5 ba
- 2,053 sqft
236 Layla Wy, Murrells Inlet, SC 29576
- Home at address 228 Layla Wy, Murrells Inlet, SC 29576

Hydrangea
$420,900
- 3 bd
- 2.5 ba
- 1,883 sqft
228 Layla Wy, Murrells Inlet, SC 29576
Floor plans in Bally Castle
- View details for Hyacinth - Vanguard Collection

Hyacinth - Vanguard Collection
$349,900+- 3 bd
- 2.5 ba
- 1,856 sqft
- View details for Hydrangea - Vanguard Collection

Hydrangea - Vanguard Collection
$354,900+- 3 bd
- 2.5 ba
- 1,883 sqft
About the builder - Mungo Homes
Neighborhood
Home address
- City:
- Murrells Inlet
- County:
- Horry
- Zip Code:
- 29576
Schools in Horry County School District
GreatSchools’ Summary Rating calculation is based on 4 of the school’s themed ratings, including test scores, student/academic progress, college readiness, and equity. This information should only be used as a reference. Jome is not affiliated with GreatSchools and does not endorse or guarantee this information. Please reach out to schools directly to verify all information and enrollment eligibility. Data provided by GreatSchools.org © 2025
Places of interest
Getting around
Air quality
Noise level
A Soundscore™ rating is a number between 50 (very loud) and 100 (very quiet) that tells you how loud a location is due to environmental noise.

Considering this home?
Our expert will guide your tour, in-person or virtual
Need more information?
Text or call (888) 488-9243
Financials
Estimated monthly payment
Let us help you find your dream home
How many bedrooms are you looking for?
Similar homes nearby
Recently added communities in this area
Nearby communities in Murrells Inlet
New homes in nearby cities
More New Homes in Murrells Inlet, SC
- Jome
- New homes search
- South Carolina
- Horry County
- Murrells Inlet
- Bally Castle
- 404 Ireland Wy, Murrells Inlet, SC 29576


























