














Book your tour. Save an average of $18,473. We'll handle the rest.
We collect exclusive builder offers, book your tours, and support you from start to housewarming.
- Confirmed tours
- Get matched & compare top deals
- Expert help, no pressure
- No added fees
Estimated value based on Jome data, T&C apply


Why tour with Jome?
- No pressure toursTour at your own pace with no sales pressure
- Expert guidanceGet insights from our home buying experts
- Exclusive accessSee homes and deals not available elsewhere
Jome is featured in
- Single-Family
- Ready by August 2026
- $201.49/sqft
- 5 days on Jome
Home description
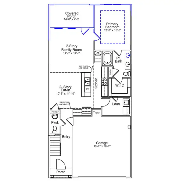
Welcome to the spacious Hydrangea plan in Bally Castle! This thoughtfully designed three-bedroom, two-and-one-half-bath home with a versatile loft and bonus room offers the perfect combination of functionality, comfort, and modern coastal style. The open-concept main level features a bright and airy living space that flows seamlessly into the kitchen and dining area, ideal for both everyday living and entertaining. The kitchen offers ample cabinetry, beautiful quartz countertops, and a large island perfect for gathering. The main-level primary suite offers comfort and privacy with a walk-in closet and an en-suite bath with a walk-in tiled shower, creating an easy, convenient living experience. Upstairs, two additional bedrooms and a full bathroom that provide plenty of space for loved ones or guests, while the spacious loft offers flexibility for a media room, home office, or second living area. In addition, a large bonus room on the second level, provides added space for a fourth bedroom, a home gym, or private home office. Live a laid-back lifestyle and enjoy all that Murrells Inlet has to offer, just minutes from this charming new community, Bally Castle!
May also be listed on the Mungo Homes website
Information last verified by Jome: Yesterday at 5:59 AM (March 4, 2026)
Book your tour. Save an average of $18,473. We'll handle the rest.
We collect exclusive builder offers, book your tours, and support you from start to housewarming.
- Confirmed tours
- Get matched & compare top deals
- Expert help, no pressure
- No added fees
Estimated value based on Jome data, T&C apply
Home details
- Property status:
- Under construction
- Size:
- 2,074 sqft
- Stories:
- 2
- Beds:
- 3
- Baths:
- 2
- Half baths:
- 1
- Garage spaces:
- 2
Construction details
- Builder Name:
- Mungo Homes
- Completion Date:
- August, 2026
Home features & finishes
- Garage/Parking:
- Garage
- Rooms:
- Primary Bedroom Downstairs

Get a consultation with our New Homes Expert
- See how your home builds wealth
- Plan your home-buying roadmap
- Discover hidden gems

Community details
Bally Castle
by Mungo Homes, Murrells Inlet, SC
- 10 homes
- 2 plans
- 1,856 - 2,166 sqft
View Bally Castle details
More homes in Bally Castle
- Home at address 404 Ireland Wy, Murrells Inlet, SC 29576

Hyacinth
$385,900
- 3 bd
- 2.5 ba
- 1,926 sqft
404 Ireland Wy, Murrells Inlet, SC 29576
- Home at address 232 Layla Wy, Murrells Inlet, SC 29576

Hyacinth
$386,900
- 3 bd
- 2.5 ba
- 1,856 sqft
232 Layla Wy, Murrells Inlet, SC 29576
- Home at address 448 Ireland Wy, Murrells Inlet, SC 29576

Hyacinth
$408,900
- 3 bd
- 2.5 ba
- 1,926 sqft
448 Ireland Wy, Murrells Inlet, SC 29576
- Home at address 440 Ireland Wy, Murrells Inlet, SC 29576

Hydrangea
$413,900
- 3 bd
- 2.5 ba
- 1,883 sqft
440 Ireland Wy, Murrells Inlet, SC 29576
- Home at address 436 Ireland Wy, Murrells Inlet, SC 29576

Hyacinth
$416,900
- 3 bd
- 2.5 ba
- 1,926 sqft
436 Ireland Wy, Murrells Inlet, SC 29576
- Home at address 228 Layla Wy, Murrells Inlet, SC 29576

Hydrangea
$420,900
- 3 bd
- 2.5 ba
- 1,883 sqft
228 Layla Wy, Murrells Inlet, SC 29576
Floor plans in Bally Castle
- View details for Hyacinth - Vanguard Collection

Hyacinth - Vanguard Collection
$349,900+- 3 bd
- 2.5 ba
- 1,856 sqft
- View details for Hydrangea - Vanguard Collection

Hydrangea - Vanguard Collection
$354,900+- 3 bd
- 2.5 ba
- 1,883 sqft
About the builder - Mungo Homes
Neighborhood
Home address
- City:
- Murrells Inlet
- County:
- Horry
- Zip Code:
- 29576
Schools in Horry County School District
GreatSchools’ Summary Rating calculation is based on 4 of the school’s themed ratings, including test scores, student/academic progress, college readiness, and equity. This information should only be used as a reference. Jome is not affiliated with GreatSchools and does not endorse or guarantee this information. Please reach out to schools directly to verify all information and enrollment eligibility. Data provided by GreatSchools.org © 2025
Places of interest
Getting around
Air quality
Noise level
A Soundscore™ rating is a number between 50 (very loud) and 100 (very quiet) that tells you how loud a location is due to environmental noise.

Considering this home?
Our expert will guide your tour, in-person or virtual
Need more information?
Text or call (888) 488-9243
Financials
Estimated monthly payment
Let us help you find your dream home
How many bedrooms are you looking for?
Similar homes nearby
Recently added communities in this area
Nearby communities in Murrells Inlet
New homes in nearby cities
More New Homes in Murrells Inlet, SC
- Jome
- New homes search
- South Carolina
- Horry County
- Murrells Inlet
- Bally Castle
- 444 Ireland Wy, Murrells Inlet, SC 29576



























