




































- 4 bd
- 2.5 ba
- 2,405 sqft
7227 New Harmony Wy, Inman, SC 29349
- Single-Family
- $113.93/sqft
- 210 days on Jome
New Homes for Sale Near 7227 New Harmony Wy, Inman, SC 29349
About this Home
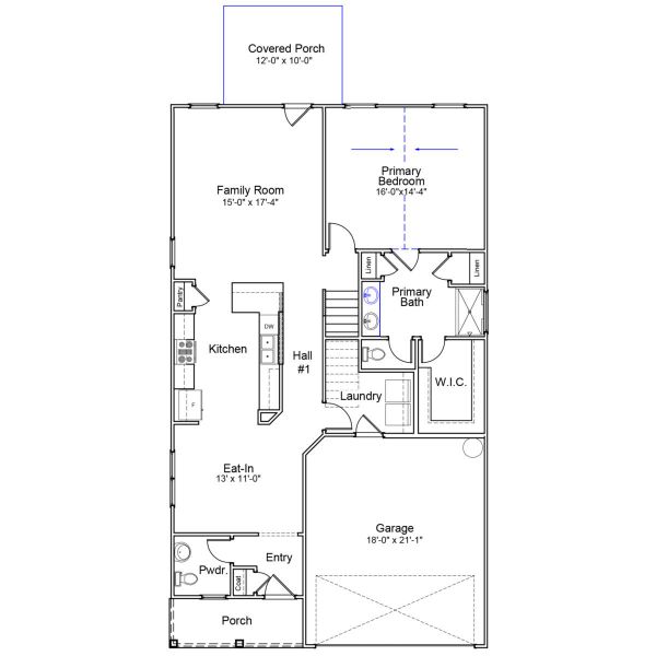
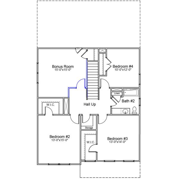
This two-story home includes four bedrooms and two-and-one-half bathrooms. A centrally located kitchen connects the eating area and great room, while the extended patio adds inviting outdoor space just off the great room. The vaulted ceiling in the primary bedroom, located on the main level, creates an open and airy atmosphere. The primary bathroom features two linen closets and a walk-in clothes closet. Upstairs, you’ll find three additional bedrooms that share a second full bathroom, along with a bonus room that provides a second entertaining area.
May also be listed on the Mungo Homes website
Information last verified by Jome: Saturday at 5:56 AM (October 25, 2025)
Home details
- Property status:
- Sold
- Size:
- 2,405 sqft
- Stories:
- 2
- Beds:
- 4
- Baths:
- 2
- Half baths:
- 1
- Garage spaces:
- 2
Construction details
- Builder Name:
- Mungo Homes
- Completion Date:
- September, 2025
Home features & finishes
- Garage/Parking:
- Garage
- Rooms:
- Primary Bedroom Downstairs

Community details
Wingate
by Mungo Homes, Inman, SC
- 1 home
- 2,237 - 2,237 sqft
View Wingate details
More homes in Wingate
- Home at address 7006 Wingate Dr, Inman, SC 29349

$299,000
Move-in ready- 3 bd
- 2.5 ba
- 2,237 sqft
7006 Wingate Dr, Inman, SC 29349
About the builder - Mungo Homes
Neighborhood
Home address
- City:
- Inman
- County:
- Spartanburg
- Zip Code:
- 29349
Schools in Spartanburg School District 2
GreatSchools’ Summary Rating calculation is based on 4 of the school’s themed ratings, including test scores, student/academic progress, college readiness, and equity. This information should only be used as a reference. Jome is not affiliated with GreatSchools and does not endorse or guarantee this information. Please reach out to schools directly to verify all information and enrollment eligibility. Data provided by GreatSchools.org © 2025
Places of interest
Getting around
Air quality
Noise level
A Soundscore™ rating is a number between 50 (very loud) and 100 (very quiet) that tells you how loud a location is due to environmental noise.
Financials
Nearby communities in Inman
Homes in Inman by Mungo Homes
Recently added communities in this area
Other Builders in Inman, SC
Nearby sold homes
New homes in nearby cities
More New Homes in Inman, SC
- Jome
- New homes search
- South Carolina
- Spartanburg County
- Inman
- Wingate
- 7227 New Harmony Wy, Inman, SC 29349




























































