




- 3 bd
- 2.5 ba
- 2,241 sqft
7003 Wingate Dr, Inman, SC 29349
- Single-Family
- $120.04/sqft
- 120 days on Jome
New Homes for Sale Near 7003 Wingate Dr, Inman, SC 29349
About this Home
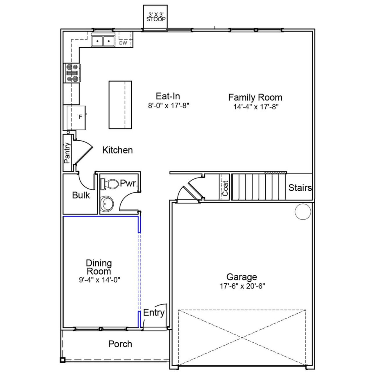
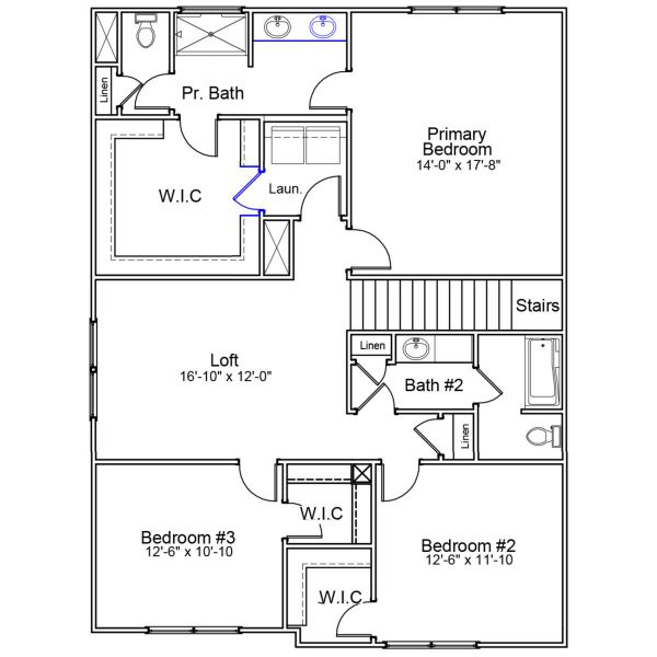
This beautiful two-story home has two and on-half bathrooms and three bedrooms. The first floor has nine-foot ceilings to provide an open and welcoming feeling. The dining room or flex space is immediately inside the front door. The kitchen features an island and eat-in area and leads into the great room. A patio is out back to provide some outdoor living space. A second open space / loft is upstairs, along with a laundry room and two spare bedrooms. The primary bedroom with spacious bathroom with a linen closet is connected to a generous walk-in closet along with a door into the laundry room.
May also be listed on the Mungo Homes website
Information last verified by Jome: Thursday at 5:53 AM (December 11, 2025)
Home details
- Property status:
- Sold
- Size:
- 2,241 sqft
- Stories:
- 2
- Beds:
- 3
- Baths:
- 2
- Half baths:
- 1
- Garage spaces:
- 2
Construction details
- Builder Name:
- Mungo Homes
- Completion Date:
- January, 2026
Home features & finishes
- Garage/Parking:
- Garage
- Rooms:
- Primary Bedroom Upstairs
About the builder - Mungo Homes
Neighborhood
Home address
- City:
- Inman
- County:
- Spartanburg
- Zip Code:
- 29349
Schools in Spartanburg School District 2
GreatSchools’ Summary Rating calculation is based on 4 of the school’s themed ratings, including test scores, student/academic progress, college readiness, and equity. This information should only be used as a reference. Jome is not affiliated with GreatSchools and does not endorse or guarantee this information. Please reach out to schools directly to verify all information and enrollment eligibility. Data provided by GreatSchools.org © 2025
Places of interest
Getting around
Air quality
Noise level
A Soundscore™ rating is a number between 50 (very loud) and 100 (very quiet) that tells you how loud a location is due to environmental noise.
Financials
Nearby communities in Inman
Homes in Inman by Mungo Homes
Recently added communities in this area
Other Builders in Inman, SC
Nearby sold homes
New homes in nearby cities
More New Homes in Inman, SC
- Jome
- New homes search
- South Carolina
- Spartanburg County
- Inman
- Wingate
- 7003 Wingate Dr, Inman, SC 29349





























































