









































- 4 bd
- 2.5 ba
- 2,174 sqft
1711 Watersail Ln, Inman, SC 29349
- Single-Family
- $149.03/sqft
- 191 days on Jome
New Homes for Sale Near 1711 Watersail Ln, Inman, SC 29349
About this Home
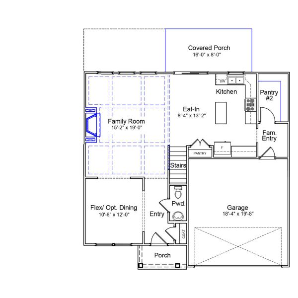
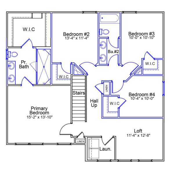
The Cooper is a beautiful four-bedroom, two-and-a-half-bathroom home with an open floor plan featuring luxury vinyl flooring throughout the main-level living areas. This space is perfect for entertaining friends and family or hosting special holidays and get-togethers! The kitchen includes a pantry, quartz countertops, and stainless-steel appliances. The great room features a beautiful fireplace and coffered ceilings. Upstairs, you’ll find all of the bedrooms as well as a loft. The primary suite offers a walk-in closet, a tiled walk-in shower, and framed mirrors.
May also be listed on the Mungo Homes website
Information last verified by Jome: Tuesday at 6:00 AM (November 4, 2025)
Home details
- Property status:
- Sold
- Size:
- 2,174 sqft
- Stories:
- 2
- Beds:
- 4
- Baths:
- 2
- Half baths:
- 1
- Garage spaces:
- 2
Construction details
- Builder Name:
- Mungo Homes
- Completion Date:
- September, 2025
Home features & finishes
- Garage/Parking:
- Garage
- Rooms:
- Primary Bedroom Upstairs

Community details
Cottages at Lake Emory
by Mungo Homes, Inman, SC
- 6 homes
- 9 plans
- 1,531 - 4,009 sqft
View Cottages at Lake Emory details
More homes in Cottages at Lake Emory
Floor plans in Cottages at Lake Emory
About the builder - Mungo Homes
Neighborhood
Home address
- City:
- Inman
- County:
- Spartanburg
- Zip Code:
- 29349
Schools in Spartanburg School District 2
GreatSchools’ Summary Rating calculation is based on 4 of the school’s themed ratings, including test scores, student/academic progress, college readiness, and equity. This information should only be used as a reference. Jome is not affiliated with GreatSchools and does not endorse or guarantee this information. Please reach out to schools directly to verify all information and enrollment eligibility. Data provided by GreatSchools.org © 2025
Places of interest
Getting around
Air quality
Noise level
A Soundscore™ rating is a number between 50 (very loud) and 100 (very quiet) that tells you how loud a location is due to environmental noise.
Natural hazards risk
Climate hazards can impact homes and communities, with risks varying by location. These scores reflect the potential impact of natural disasters and climate-related risks on Spartanburg County
Provided by FEMA
Financials
Nearby communities in Inman
Homes in Inman by Mungo Homes
Recently added communities in this area
Other Builders in Inman, SC
Nearby sold homes
New homes in nearby cities
More New Homes in Inman, SC
- Jome
- New homes search
- South Carolina
- Spartanburg County
- Inman
- Cottages at Lake Emory
- 1711 Watersail Ln, Inman, SC 29349




































































