





Book your tour. Save an average of $18,473. We'll handle the rest.
- Confirmed tours
- Get matched & compare top deals
- Expert help, no pressure
- No added fees
Estimated value based on Jome data, T&C apply
Why tour with Jome?
- No pressure toursTour at your own pace with no sales pressure
- Expert guidanceGet insights from our home buying experts
- Exclusive accessSee homes and deals not available elsewhere
Jome is featured in
- Single-Family
- $144.88/sqft
- 0.11-acre lot
- 271 days on Jome
Home description
Available Now! Nestled within a serene tree buffer, our community green space and garden with a charming gazebo offers a peaceful retreat for residents. Located near the highly rated York School District schools, this neighborhood offers provides an ideal environment for everyone. Enjoy easy access to outdoor recreation and local farms, perfect for weekend adventures and fresh produce. Benefit from the low taxes of South Carolina and York County while being conveniently close to the vibrant towns of Clover, York, and Rock Hill. Embrace a lifestyle of tranquility and convenience in your new community.
William Kiselick, MLS CAR4241792
May also be listed on the KB Home website
Information last verified by Jome: Today at 12:04 AM (December 28, 2025)
Home highlights
Lakeside preserve near Charlotte offering wooded trails, camping, and nature programs in a peaceful setting.
Book your tour. Save an average of $18,473. We'll handle the rest.
We collect exclusive builder offers, book your tours, and support you from start to housewarming.
- Confirmed tours
- Get matched & compare top deals
- Expert help, no pressure
- No added fees
Estimated value based on Jome data, T&C apply
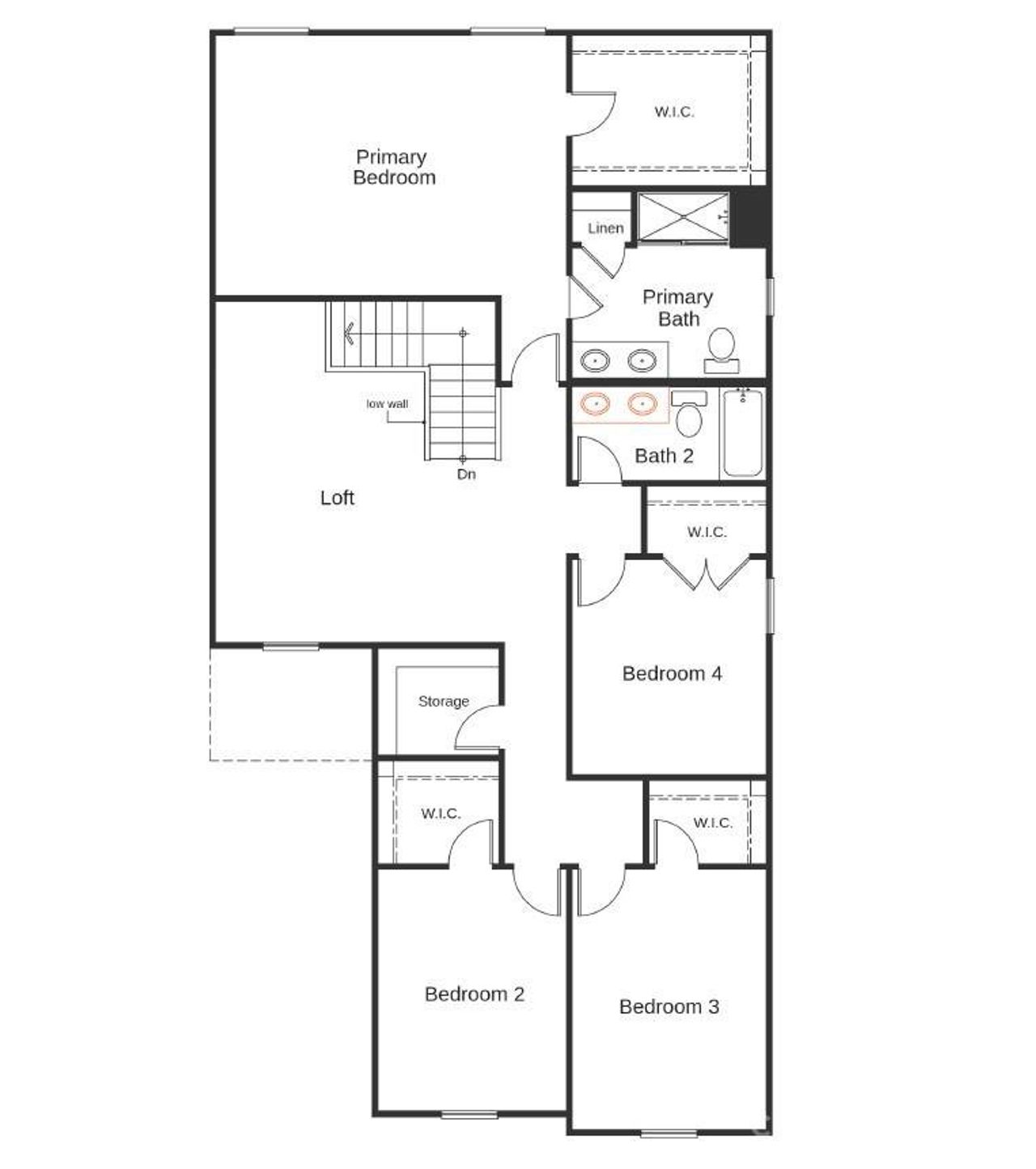
Home details
- Property status:
- Pending/Under contract
- Lot size (acres):
- 0.11
- Size:
- 2,572 sqft
- Stories:
- 2
- Beds:
- 5
- Baths:
- 3
- Garage spaces:
- 2
Construction details
- Builder Name:
- KB Home
- Year Built:
- 2025
- Roof:
- Shingle Roofing
Home features & finishes
- Construction Materials:
- CementStone
- Flooring:
- Vinyl FlooringCarpet Flooring
- Foundation Details:
- Slab
- Garage/Parking:
- GarageAttached Garage
- Kitchen:
- DishwasherMicrowave OvenDisposalGas CooktopGas OvenKitchen Range
- Laundry facilities:
- Laundry Facilities On Main LevelCommon Laundry FacilitiesUtility/Laundry Room

Community details
Bellina
by KB Home, York, SC
- 6 homes
- 5 plans
- 1,808 - 2,572 sqft
View Bellina details
More homes in Bellina
Floor plans in Bellina
About the builder - KB Home
Neighborhood
Home address
Schools in York School District 1
GreatSchools’ Summary Rating calculation is based on 4 of the school’s themed ratings, including test scores, student/academic progress, college readiness, and equity. This information should only be used as a reference. Jome is not affiliated with GreatSchools and does not endorse or guarantee this information. Please reach out to schools directly to verify all information and enrollment eligibility. Data provided by GreatSchools.org © 2025
Places of interest
Getting around
Air quality
Natural hazards risk
Climate hazards can impact homes and communities, with risks varying by location. These scores reflect the potential impact of natural disasters and climate-related risks on York County
Provided by FEMA

Considering this home?
Our expert will guide your tour, in-person or virtual
Need more information?
Text or call (888) 486-2818
Financials
Estimated monthly payment
Similar homes nearby
Recently added communities in this area
Nearby communities in York
New homes in nearby cities
More New Homes in York, SC
William Kiselick, MLS CAR4241792
Based on information submitted to the MLS GRID as of 10/21/2024 2:31 PM CDT. All data is obtained from various sources and may not have been verified by the broker or MLS GRID. Supplied Open House Information is subject to change without notice. All information should be independently reviewed and verified for accuracy. Properties may or may not be listed by the office/agent presenting the information. Properties displayed may be listed or sold by various participants in the MLS. The Digital Millennium Copyright Act of 1998, 17 U.S.C. § 512 (the “DMCA”) provides recourse for copyright owners who believe that material appearing on the Internet infringes their rights under U.S. copyright law. If you believe in good faith that any content or material made available in connection with our website or services infringes your copyright, you (or your agent) may send us a notice requesting that the content or material be removed, or access to it blocked. Notices must be sent in writing by email to DMCAnotice@MLSGrid.com. The DMCA requires that your notice of alleged copyright infringement include the following information: (1) description of the copyrighted work that is the subject of claimed infringement; (2) description of the alleged infringing content and information sufficient to permit us to locate the content; (3) contact information for you, including your address, telephone number and email address; (4) a statement by you that you have a good faith belief that the content in the manner complained of is not authorized by the copyright owner, or its agent, or by the operation of any law; (5) a statement by you, signed under penalty of perjury, that the information in the notification is accurate and that you have the authority to enforce the copyrights that are claimed to be infringed; and (6) a physical or electronic signature of the copyright owner or a person authorized to act on the copyright owner’s behalf. Failure to include all of the above information may result in the delay of the processing of your complaint.
Read moreLast checked Dec 28, 12:00 am
- Jome
- New homes search
- South Carolina
- Charlotte Metropolitan Area
- York County
- York
- Bellina
- 142 Bellina Dr, Unit 58, York, SC 29745






































