



Book your tour. Save an average of $18,473. We'll handle the rest.
We collect exclusive builder offers, book your tours, and support you from start to housewarming.
- Confirmed tours
- Get matched & compare top deals
- Expert help, no pressure
- No added fees
Estimated value based on Jome data, T&C apply

Why tour with Jome?
- No pressure toursTour at your own pace with no sales pressure
- Expert guidanceGet insights from our home buying experts
- Exclusive accessSee homes and deals not available elsewhere
Jome is featured in
- Single-Family
- Ready by October 2026
- $236.71/sqft
- $125/monthly HOA
Home description
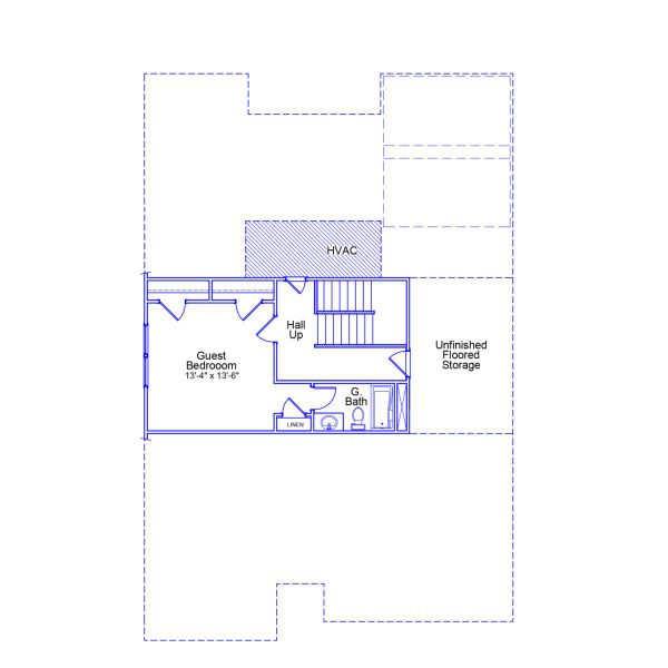
Discover comfortable, low-maintenance living at Ovation at Sweetbrier in this thoughtfully designed home featuring four bedrooms, three full baths, and spacious open-concept living areas ideal for today’s lifestyle. The heart of the home is the bright, open kitchen, eat-in area, and great room—perfectly connected for both everyday living and entertaining. The kitchen offers a large center island, stainless steel appliances, and two walk-in pantries that provide exceptional storage and organization. The main-level primary suite offers a private retreat with a beautifully tiled walk-in shower, dual vanities, and a generous walk-in closet. Two additional bedrooms and a full bath on the main floor provide flexible space for guests, a home office, or hobbies. Upstairs, a private guest suite with a full bath creates the perfect space for visiting family or friends, while a walk-in storage room helps keep everything neatly organized. Exterior maintenance is included, giving you more time to enjoy Ovation’s resort-style amenities including a clubhouse, fitness center, pool, spa, pickleball courts, dog park, community garden, and scenic walking trails. For a limited time, you can visit the design center and personalize the interior finishes to reflect your style.
May also be listed on the Mungo Homes website
Information last verified by Jome: Today at 5:56 AM (April 30, 2026)
Home highlights
Expansive Raleigh-area park with forested trails, fishing lakes, and quiet escapes near Triangle suburbs.
Book your tour. Save an average of $18,473. We'll handle the rest.
We collect exclusive builder offers, book your tours, and support you from start to housewarming.
- Confirmed tours
- Get matched & compare top deals
- Expert help, no pressure
- No added fees
Estimated value based on Jome data, T&C apply
Home details
- Property status:
- Under construction
- Size:
- 2,155 sqft
- Stories:
- 1
- Beds:
- 4
- Baths:
- 3
- Garage spaces:
- 2
Construction details
- Builder Name:
- Mungo Homes
- Completion Date:
- October, 2026
Home features & finishes
- Garage/Parking:
- Garage
- Rooms:
- Primary Bedroom On MainPrimary Bedroom Downstairs

Get a consultation with our New Homes Expert
- See how your home builds wealth
- Plan your home-buying roadmap
- Discover hidden gems

Community details
Ovation at Sweetbrier
by Mungo Homes, Durham, NC
- 23 homes
- 6 plans
- 1,303 - 2,216 sqft
View Ovation at Sweetbrier details
More homes in Ovation at Sweetbrier
- Home at address 2009 Bull City Bnd, Durham, NC 27703

Ford
$440,550
- 4 bd
- 3 ba
- 1,707 sqft
2009 Bull City Bnd, Durham, NC 27703
- Home at address 2037 Bull City Bnd, Durham, NC 27703

Howard
$470,369
- 4 bd
- 3 ba
- 1,959 sqft
2037 Bull City Bnd, Durham, NC 27703
- Home at address 2060 Bull City Bnd, Durham, NC 27703

Elliott
$492,320
- 4 bd
- 3 ba
- 2,183 sqft
2060 Bull City Bnd, Durham, NC 27703
- Home at address 2064 Bull City Bnd, Durham, NC 27703

Goodwin - Vanguard Collection
$519,000
- 4 bd
- 3 ba
- 2,216 sqft
2064 Bull City Bnd, Durham, NC 27703
Floor plans in Ovation at Sweetbrier
- View details for Hyacinth - Vanguard Collection

Hyacinth - Vanguard Collection
$370,000+- 3 bd
- 2.5 ba
- 1,856 sqft
- View details for Hydrangea - Vanguard Collection

Hydrangea - Vanguard Collection
$380,000+- 3 bd
- 2.5 ba
- 1,883 sqft
About the builder - Mungo Homes
Neighborhood
Home address
Schools in Durham Public Schools
GreatSchools’ Summary Rating calculation is based on 4 of the school’s themed ratings, including test scores, student/academic progress, college readiness, and equity. This information should only be used as a reference. Jome is not affiliated with GreatSchools and does not endorse or guarantee this information. Please reach out to schools directly to verify all information and enrollment eligibility. Data provided by GreatSchools.org © 2025
Places of interest
Getting around
Air quality

Considering this home?
Our expert will guide your tour, in-person or virtual
Need more information?
Text or call (888) 545-5198
Financials
Estimated monthly payment
Let us help you find your dream home
How many bedrooms are you looking for?
Similar homes nearby
Recently added communities in this area
Nearby communities in Durham
New homes in nearby cities
More New Homes in Durham, NC
- Jome
- New homes search
- North Carolina
- Raleigh-Durham Area
- Durham County
- Durham
- Ovation at Sweetbrier
- 2048 Bull City Bnd, Durham, NC 27703

































