














Book your tour. Save an average of $18,473. We'll handle the rest.
We collect exclusive builder offers, book your tours, and support you from start to housewarming.
- Confirmed tours
- Get matched & compare top deals
- Expert help, no pressure
- No added fees
Estimated value based on Jome data, T&C apply






- 3 bd
- 2 ba
- 1,883 sqft
4409 E Coast Ln, Shallotte, NC 28470
Why tour with Jome?
- No pressure toursTour at your own pace with no sales pressure
- Expert guidanceGet insights from our home buying experts
- Exclusive accessSee homes and deals not available elsewhere
Jome is featured in
- Single-Family
- Quick move-in
- $187.9/sqft
- 4 days on Jome
Home description
About this home
Come tour 4409 East Coast Lane! One of our new homes at the Meadows at Wildwood Village, located in Shallotte, North Carolina.
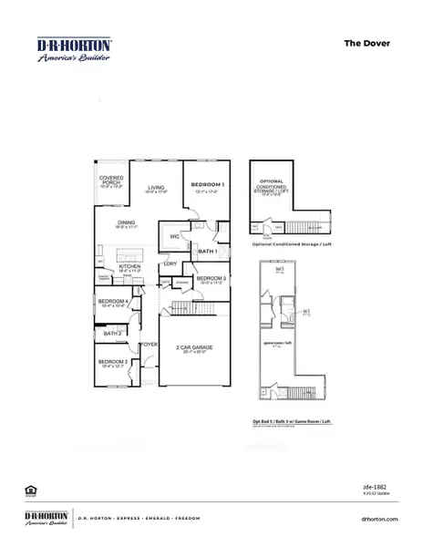
The Dover plan offers the convenience of single-level living with three bedrooms and a versatile flex room. For those who need more space, there’s the option to add a second floor to suit your needs. The heart of the Dover is its kitchen, which overlooks the dining and living areas. It features a large island with a breakfast bar, ample cabinet space, and a walk-in pantry, making it perfect for both everyday meals and entertaining. The split bedroom floor plan ensures privacy for the primary bedroom, which includes a spacious layout, a large walk-in closet, and a private bathroom.
All of our homes include D.R. Horton's Home is Connected® package, an industry leading suite of smart home products that keeps homeowners connected with the people and places they value the most. The technology allows homeowners to monitor and control their home from the couch or across the globe. *The photos you see here are for illustration purposes only, interior and exterior features, options, colors and selections will differ. Please see the sales agent for options.
May also be listed on the D.R. Horton website
Information last verified by Jome: Today at 2:22 AM (March 16, 2026)
Book your tour. Save an average of $18,473. We'll handle the rest.
We collect exclusive builder offers, book your tours, and support you from start to housewarming.
- Confirmed tours
- Get matched & compare top deals
- Expert help, no pressure
- No added fees
Estimated value based on Jome data, T&C apply
Home details
- Property status:
- Move-in ready
- Size:
- 1,883 sqft
- Stories:
- 1
- Beds:
- 3
- Baths:
- 2
- Garage spaces:
- 2
Construction details
- Builder Name:
- D.R. Horton
Home features & finishes
- Garage/Parking:
- Garage
- Rooms:
- Primary Bedroom On MainPrimary Bedroom Downstairs

Get a consultation with our New Homes Expert
- See how your home builds wealth
- Plan your home-buying roadmap
- Discover hidden gems

Community details
The Meadows at Wildwood Village
by D.R. Horton, Shallotte, NC
- 14 homes
- 8 plans
- 1,151 - 2,340 sqft
View The Meadows at Wildwood Village details
More homes in The Meadows at Wildwood Village
- Home at address 4433 E Coast Ln, Shallotte, NC 28470

Kerry
$270,490
- 3 bd
- 2 ba
- 1,475 sqft
4433 E Coast Ln, Shallotte, NC 28470
- Home at address 4457 E Coast Ln, Shallotte, NC 28470

Kerry
$271,045
- 3 bd
- 2 ba
- 1,475 sqft
4457 E Coast Ln, Shallotte, NC 28470
- Home at address 4292 Frogie Ln, Shallotte, NC 28470

Aria
$272,990
- 3 bd
- 2 ba
- 1,618 sqft
4292 Frogie Ln, Shallotte, NC 28470
- Home at address 4401 E Coast Ln, Shallotte, NC 28470

Aria
$279,990
- 3 bd
- 2 ba
- 1,618 sqft
4401 E Coast Ln, Shallotte, NC 28470
- Home at address 2087 Locust Ridge Dr, Shallotte, NC 28470

Kerry
$287,990
- 3 bd
- 2 ba
- 1,475 sqft
2087 Locust Ridge Dr, Shallotte, NC 28470
- Home at address 4464 E Coast Ln, Shallotte, NC 28470

Cali
$290,990
- 4 bd
- 2 ba
- 1,774 sqft
4464 E Coast Ln, Shallotte, NC 28470
Floor plans in The Meadows at Wildwood Village
About the builder - D.R. Horton

- 1,171communities on Jome
- 10,155homes on Jome
Neighborhood
Home address
Schools in Brunswick County Schools
GreatSchools’ Summary Rating calculation is based on 4 of the school’s themed ratings, including test scores, student/academic progress, college readiness, and equity. This information should only be used as a reference. Jome is not affiliated with GreatSchools and does not endorse or guarantee this information. Please reach out to schools directly to verify all information and enrollment eligibility. Data provided by GreatSchools.org © 2025
Getting around
Noise level
A Soundscore™ rating is a number between 50 (very loud) and 100 (very quiet) that tells you how loud a location is due to environmental noise.

Considering this home?
Our expert will guide your tour, in-person or virtual
Need more information?
Text or call (888) 545-5198
Financials
Estimated monthly payment
Let us help you find your dream home
How many bedrooms are you looking for?
Similar homes nearby
Recently added communities in this area
Nearby communities in Shallotte
New homes in nearby cities
More New Homes in Shallotte, NC
- Jome
- New homes search
- North Carolina
- Brunswick County
- Shallotte
- The Meadows at Wildwood Village
- 4409 E Coast Ln, Shallotte, NC 28470






























