














Book your tour. Save an average of $18,473. We'll handle the rest.
- Confirmed tours
- Get matched & compare top deals
- Expert help, no pressure
- No added fees
Estimated value based on Jome data, T&C apply
















Why tour with Jome?
- No pressure toursTour at your own pace with no sales pressure
- Expert guidanceGet insights from our home buying experts
- Exclusive accessSee homes and deals not available elsewhere
Jome is featured in
- Single-Family
- Quick move-in
- $127.98/sqft
- 0.22-acre lot
Home description
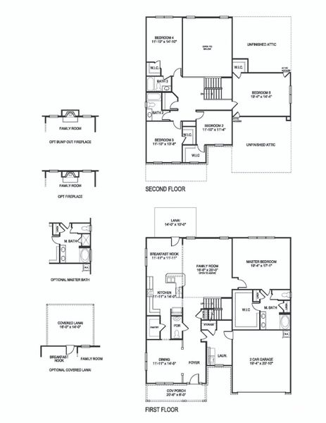
Imagine celebrating the holidays in this beautiful home. The 3320 floorplan invites you to experience a lifestyle of style and functionality. This two-story home is designed to maximize your space and create an inviting atmosphere. Upon entering, you will find a direct flow from the foyer to the main living area. The spacious family room with an open ceiling to the second level allows a perfect place to enjoy gatherings with friends and relatives. The open-concept design of the first floor allows easy access to the well-appointed kitchen with formal dining room and a casual breakfast nook. The kitchen includes features such as ample cabinet space and a walk-in pantry for storage, as well as a large countertop and top-of-the-line appliances. The primary suite is also located on the main level for added privacy and convenience. The ensuite bathroom offers a luxurious feel with double vanity, 5' shower with tile walls, and a generous walk-in closet. The upstairs holds the remaining four bedrooms and two baths. The versatility of these rooms allows for customization, whether you desire a home office, a playroom, or a media room to cater to your specific needs. In the backyard, there is a large covered lanai that can serve as a place to host outdoor gatherings or simply enjoy the weather. With thoughtful architecture, impeccable craftsmanship, and high-end finishes, the 3320 floorplan has everything you could want to elevate your living experience.
Adams Homes Realty-NC, Inc., MLS CAR4330745
May also be listed on the Adams Homes website
Information last verified by Jome: Today at 5:00 AM (December 21, 2025)
Home highlights
Major public research university in Charlotte offering strong STEM programs and fueling regional innovation and growth.
Book your tour. Save an average of $18,473. We'll handle the rest.
We collect exclusive builder offers, book your tours, and support you from start to housewarming.
- Confirmed tours
- Get matched & compare top deals
- Expert help, no pressure
- No added fees
Estimated value based on Jome data, T&C apply
Home details
- Property status:
- Move-in ready
- Lot size (acres):
- 0.22
- Size:
- 3,320 sqft
- Stories:
- 2
- Beds:
- 5
- Baths:
- 3
- Half baths:
- 1
- Garage spaces:
- 2
Construction details
- Builder Name:
- Adams Homes
- Year Built:
- 2025
- Roof:
- Composition Roofing
Home features & finishes
- Construction Materials:
- Stone
- Foundation Details:
- Slab
- Garage/Parking:
- GarageFront Entry Garage/ParkingAttached Garage
- Kitchen:
- DishwasherMicrowave OvenDisposalKitchen Range
- Laundry facilities:
- Laundry Facilities On Main LevelUtility/Laundry Room
- Property amenities:
- Patio

Get a consultation with our New Homes Expert
- See how your home builds wealth
- Plan your home-buying roadmap
- Discover hidden gems
Utility information
- Heating:
- Electric Heating

Community details
Kerns Ridge
by Adams Homes, Salisbury, NC
- 12 homes
- 10 plans
- 1,902 - 3,629 sqft
View Kerns Ridge details
Community amenities
- Community Pool
- Cabana
More homes in Kerns Ridge
Floor plans in Kerns Ridge
About the builder - Adams Homes
Neighborhood
Home address
Schools in Rowan-Salisbury Schools
GreatSchools’ Summary Rating calculation is based on 4 of the school’s themed ratings, including test scores, student/academic progress, college readiness, and equity. This information should only be used as a reference. Jome is not affiliated with GreatSchools and does not endorse or guarantee this information. Please reach out to schools directly to verify all information and enrollment eligibility. Data provided by GreatSchools.org © 2025
Places of interest
Getting around
Air quality
Noise level
A Soundscore™ rating is a number between 50 (very loud) and 100 (very quiet) that tells you how loud a location is due to environmental noise.
Natural hazards risk
Climate hazards can impact homes and communities, with risks varying by location. These scores reflect the potential impact of natural disasters and climate-related risks on Rowan County
Provided by FEMA

Considering this home?
Our expert will guide your tour, in-person or virtual
Need more information?
Text or call (888) 486-2818
Financials
Estimated monthly payment
Let us help you find your dream home
How many bedrooms are you looking for?
Similar homes nearby
Recently added communities in this area
Nearby communities in Salisbury
New homes in nearby cities
More New Homes in Salisbury, NC
Adams Homes Realty-NC, Inc., MLS CAR4330745
Based on information submitted to the MLS GRID as of 10/21/2024 2:31 PM CDT. All data is obtained from various sources and may not have been verified by the broker or MLS GRID. Supplied Open House Information is subject to change without notice. All information should be independently reviewed and verified for accuracy. Properties may or may not be listed by the office/agent presenting the information. Properties displayed may be listed or sold by various participants in the MLS. The Digital Millennium Copyright Act of 1998, 17 U.S.C. § 512 (the “DMCA”) provides recourse for copyright owners who believe that material appearing on the Internet infringes their rights under U.S. copyright law. If you believe in good faith that any content or material made available in connection with our website or services infringes your copyright, you (or your agent) may send us a notice requesting that the content or material be removed, or access to it blocked. Notices must be sent in writing by email to DMCAnotice@MLSGrid.com. The DMCA requires that your notice of alleged copyright infringement include the following information: (1) description of the copyrighted work that is the subject of claimed infringement; (2) description of the alleged infringing content and information sufficient to permit us to locate the content; (3) contact information for you, including your address, telephone number and email address; (4) a statement by you that you have a good faith belief that the content in the manner complained of is not authorized by the copyright owner, or its agent, or by the operation of any law; (5) a statement by you, signed under penalty of perjury, that the information in the notification is accurate and that you have the authority to enforce the copyrights that are claimed to be infringed; and (6) a physical or electronic signature of the copyright owner or a person authorized to act on the copyright owner’s behalf. Failure to include all of the above information may result in the delay of the processing of your complaint.
Read moreLast checked Dec 21, 5:00 am
- Jome
- New homes search
- North Carolina
- Charlotte Metropolitan Area
- Rowan County
- Salisbury
- Kerns Ridge
- 1255 Kildare Dr, Unit 10, Salisbury, NC 28146




































