








Book your tour. Save an average of $18,473. We'll handle the rest.
We collect exclusive builder offers, book your tours, and support you from start to housewarming.
- Confirmed tours
- Get matched & compare top deals
- Expert help, no pressure
- No added fees
Estimated value based on Jome data, T&C apply
























Why tour with Jome?
- No pressure toursTour at your own pace with no sales pressure
- Expert guidanceGet insights from our home buying experts
- Exclusive accessSee homes and deals not available elsewhere
Jome is featured in
- Single-Family
- Under construction
- $142.98/sqft
- 0.27-acre lot
Home description
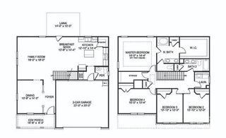
The highly sought-after 2721 Plan offers the perfect blend of space, style, and functionality in this beautiful 4-bedroom, 3.5-bath new construction home located in desirable Kerns Ridge.
Step onto the welcoming covered front porch and into a bright foyer flanked by a formal dining room and versatile formal living room—perfect for a home office, sitting room, or flex space. The thoughtfully designed floor plan offers multiple living areas, including a spacious family room ideal for relaxing or entertaining.
The galley-style kitchen is a standout feature, showcasing stainless steel appliances, granite countertops, soft-close cabinetry, a ceramic tile backsplash, and a granite peninsula that opens seamlessly to the breakfast area, complete with a convenient drop zone trim package.
Upstairs, you’ll find the primary suite along with three additional guest bedrooms, a generous loft area, and a dedicated laundry room. One guest bedroom even features its own private full bath, perfect for visitors or multi-generational living.
Whether you’re enjoying a cozy evening by the fireplace, entertaining guests on the covered lanai, or sipping your morning coffee on the front porch, this home offers comfort and flexibility for every lifestyle.
With 2,721 square feet of well-designed living space, this home truly has it all—don’t miss your opportunity to make it yours!
Adams Homes Realty-NC, Inc., MLS CAR4356684
May also be listed on the Adams Homes website
Information last verified by Jome: Today at 12:11 AM (April 27, 2026)
Home highlights
Major public research university in Charlotte offering strong STEM programs and fueling regional innovation and growth.
Book your tour. Save an average of $18,473. We'll handle the rest.
We collect exclusive builder offers, book your tours, and support you from start to housewarming.
- Confirmed tours
- Get matched & compare top deals
- Expert help, no pressure
- No added fees
Estimated value based on Jome data, T&C apply
Home details
- Property status:
- Under construction
- Lot size (acres):
- 0.27
- Size:
- 2,721 sqft
- Stories:
- 2
- Beds:
- 4
- Baths:
- 3
- Half baths:
- 1
- Garage spaces:
- 2
Construction details
- Builder Name:
- Adams Homes
- Year Built:
- 2026
Home features & finishes
- Appliances:
- Exhaust Fan
- Flooring:
- Laminate FlooringCarpet FlooringTile Flooring
- Foundation Details:
- Slab
- Garage/Parking:
- GarageAttached Garage
- Kitchen:
- DishwasherMicrowave OvenDisposalSelf Cleaning OvenKitchen Range
- Laundry facilities:
- DryerWasherUtility/Laundry Room
- Property amenities:
- PatioPorch
Room details
Master Bedroom
Kitchen
Dining Room

Get a consultation with our New Homes Expert
- See how your home builds wealth
- Plan your home-buying roadmap
- Discover hidden gems
Utility information
- Heating:
- Electric Heating, Water Heater
- Sewer:
- Public Sewer
- Utilities:
- Electricity Available, Cable Available
- Water source:
- Public

Community details
Kerns Ridge
by Adams Homes, Salisbury, NC
- 10 homes
- 10 plans
- 1,709 - 3,629 sqft
View Kerns Ridge details
Community amenities
- Community Pool
- Cabana
More homes in Kerns Ridge
- Home at address 165 Swinford Dr, Unit 82, Salisbury, NC 28146

2100
$341,400
- 4 bd
- 2 ba
- 2,100 sqft
165 Swinford Dr, Unit 82, Salisbury, NC 28146
- Home at address 1075 Kildare Dr, Unit 66, Salisbury, NC 28146

Home
$342,900
- 4 bd
- 2 ba
- 2,100 sqft
1075 Kildare Dr, Unit 66, Salisbury, NC 28146
- Home at address 120 Nolen Dr, Unit 72, Salisbury, NC 28146

2030
$346,400
- 4 bd
- 2 ba
- 2,030 sqft
120 Nolen Dr, Unit 72, Salisbury, NC 28146
- Home at address 1095 Kildare Dr, Unit 68, Salisbury, NC 28146

Home
$364,900
- 4 bd
- 2.5 ba
- 2,307 sqft
1095 Kildare Dr, Unit 68, Salisbury, NC 28146
- Home at address 1165 Kildare Dr, Unit 2, Salisbury, NC 28146

Plan 2307
$372,900
- 4 bd
- 2.5 ba
- 2,307 sqft
1165 Kildare Dr, Unit 2, Salisbury, NC 28146
- Home at address 1230 Kildare Dr, Unit 81, Salisbury, NC 28146

Home
$404,575
- 5 bd
- 3.5 ba
- 2,628 sqft
1230 Kildare Dr, Unit 81, Salisbury, NC 28146
Floor plans in Kerns Ridge
About the builder - Adams Homes

- 158communities on Jome
- 1,148homes on Jome
Neighborhood
Home address
Schools in Rowan-Salisbury Schools
GreatSchools’ Summary Rating calculation is based on 4 of the school’s themed ratings, including test scores, student/academic progress, college readiness, and equity. This information should only be used as a reference. Jome is not affiliated with GreatSchools and does not endorse or guarantee this information. Please reach out to schools directly to verify all information and enrollment eligibility. Data provided by GreatSchools.org © 2025
Places of interest
Getting around
Air quality
Noise level
A Soundscore™ rating is a number between 50 (very loud) and 100 (very quiet) that tells you how loud a location is due to environmental noise.

Considering this home?
Our expert will guide your tour, in-person or virtual
Need more information?
Text or call (888) 545-5198
Financials
Estimated monthly payment
Let us help you find your dream home
How many bedrooms are you looking for?
Similar homes nearby
Recently added communities in this area
Nearby communities in Salisbury
New homes in nearby cities
More New Homes in Salisbury, NC
Adams Homes Realty-NC, Inc., MLS CAR4356684
Based on information submitted to the MLS GRID as of 10/21/2024 2:31 PM CDT. All data is obtained from various sources and may not have been verified by the broker or MLS GRID. Supplied Open House Information is subject to change without notice. All information should be independently reviewed and verified for accuracy. Properties may or may not be listed by the office/agent presenting the information. Properties displayed may be listed or sold by various participants in the MLS. The Digital Millennium Copyright Act of 1998, 17 U.S.C. § 512 (the “DMCA”) provides recourse for copyright owners who believe that material appearing on the Internet infringes their rights under U.S. copyright law. If you believe in good faith that any content or material made available in connection with our website or services infringes your copyright, you (or your agent) may send us a notice requesting that the content or material be removed, or access to it blocked. Notices must be sent in writing by email to DMCAnotice@MLSGrid.com. The DMCA requires that your notice of alleged copyright infringement include the following information: (1) description of the copyrighted work that is the subject of claimed infringement; (2) description of the alleged infringing content and information sufficient to permit us to locate the content; (3) contact information for you, including your address, telephone number and email address; (4) a statement by you that you have a good faith belief that the content in the manner complained of is not authorized by the copyright owner, or its agent, or by the operation of any law; (5) a statement by you, signed under penalty of perjury, that the information in the notification is accurate and that you have the authority to enforce the copyrights that are claimed to be infringed; and (6) a physical or electronic signature of the copyright owner or a person authorized to act on the copyright owner’s behalf. Failure to include all of the above information may result in the delay of the processing of your complaint.
Read moreLast checked Apr 27, 5:00 pm
- Jome
- New homes search
- North Carolina
- Charlotte Metropolitan Area
- Rowan County
- Salisbury
- Kerns Ridge
- 1065 Kildare Dr, Unit 65, Salisbury, NC 28146
































