














Book your tour. Save an average of $18,473. We'll handle the rest.
- Confirmed tours
- Get matched & compare top deals
- Expert help, no pressure
- No added fees
Estimated value based on Jome data, T&C apply











- 3 bd
- 2.5 ba
- 1,899 sqft
416 White Oak Garden Wy, Unit 316, Garner, NC 27529
Why tour with Jome?
- No pressure toursTour at your own pace with no sales pressure
- Expert guidanceGet insights from our home buying experts
- Exclusive accessSee homes and deals not available elsewhere
Jome is featured in
- Single-Family
- Quick move-in
- $210.11/sqft
- $75/monthly HOA
Home description
Renaissance at White Oak, Wake Country's Southern Gateway to the Triangle!!!
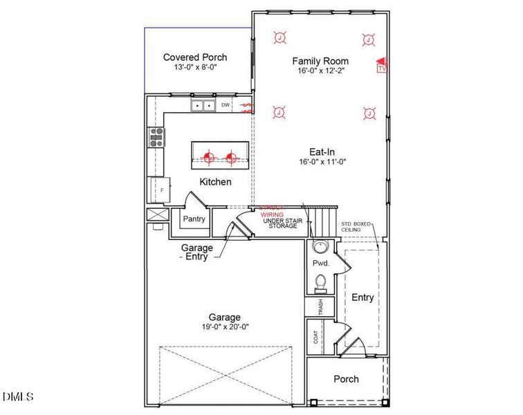
Don't miss out on this beautiful home, offering a comfortable and functional layout. The eat-in kitchen includes a central island and a spacious pantry, with an open flow into the large great room—ideal for both everyday living and entertaining. Just off the kitchen are the garage entry and additional under-stair storage.
Upstairs, the layout includes a private primary suite, two additional bedrooms, and a convenient laundry room. All bedrooms feature walk-in closets, providing plenty of storage space throughout the home.
Thoughtfully designed with practicality in mind, this home is ready to fit your lifestyle.
Clayton Properties Group INC, MLS 10132144
May also be listed on the Mungo Homes website
Information last verified by Jome: Today at 4:19 AM (January 20, 2026)
Home highlights
Book your tour. Save an average of $18,473. We'll handle the rest.
We collect exclusive builder offers, book your tours, and support you from start to housewarming.
- Confirmed tours
- Get matched & compare top deals
- Expert help, no pressure
- No added fees
Estimated value based on Jome data, T&C apply
Home details
- Property status:
- Move-in ready
- Lot size (acres):
- 0.13
- Size:
- 1,899 sqft
- Stories:
- 2
- Beds:
- 3
- Baths:
- 2
- Half baths:
- 1
- Garage spaces:
- 2
Construction details
- Builder Name:
- Mungo Homes
- Year Built:
- 2026
- Roof:
- Shingle Roofing
Home features & finishes
- Construction Materials:
- Vinyl Siding
- Flooring:
- Vinyl FlooringCarpet FlooringTile Flooring
- Foundation Details:
- Slab
- Garage/Parking:
- GarageFront Entry Garage/ParkingAttached Garage
- Kitchen:
- DishwasherMicrowave OvenDisposal
- Property amenities:
- Basement
Room details
Master Bedroom

Get a consultation with our New Homes Expert
- See how your home builds wealth
- Plan your home-buying roadmap
- Discover hidden gems
Utility information
- Heating:
- Electric Heating, Heat Pump, Water Heater

Community details
Renaissance at White Oak
by Mungo Homes, Garner, NC
- 38 homes
- 4 plans
- 1,462 - 2,535 sqft
View Renaissance at White Oak details
Community amenities
- Playground
- Community Pool
- Park Nearby
- Sidewalks Available
More homes in Renaissance at White Oak
- Home at address 136 Silver Fir Ln, Unit 245, Garner, NC 27529

Home
$270,479
- 3 bd
- 2.5 ba
- 1,462 sqft
136 Silver Fir Ln, Unit 245, Garner, NC 27529
- Home at address 136 Silver Fir Ln, Garner, NC 27529

Cannalily
$270,479
- 3 bd
- 2.5 ba
- 1,462 sqft
136 Silver Fir Ln, Garner, NC 27529
- Home at address 132 Silver Fir Ln, Garner, NC 27529

Cannalily
$270,736
- 3 bd
- 2.5 ba
- 1,462 sqft
132 Silver Fir Ln, Garner, NC 27529
- Home at address 132 Silver Fir Ln, Unit 244, Garner, NC 27529

Home
$270,736
- 3 bd
- 2.5 ba
- 1,462 sqft
132 Silver Fir Ln, Unit 244, Garner, NC 27529
- Home at address 128 Silver Fir Ln, Unit 243, Garner, NC 27529

Home
$274,644
- 3 bd
- 2.5 ba
- 1,510 sqft
128 Silver Fir Ln, Unit 243, Garner, NC 27529
- Home at address 128 Silver Fir Ln, Garner, NC 27529

Clover
$274,644
- 3 bd
- 2.5 ba
- 1,510 sqft
128 Silver Fir Ln, Garner, NC 27529
Floor plans in Renaissance at White Oak

Cannalily - Genesis Value Collection
- 3 bd
- 2.5 ba
- 1,466 sqft

Clover - Genesis Value Collection
- 3 bd
- 2.5 ba
- 1,514 sqft

Waterlily - Vanguard Collection
- 3 bd
- 2.5 ba
- 2,293 sqft

Watsonia - Vanguard Collection
- 3 bd
- 2.5 ba
- 2,342 sqft
About the builder - Mungo Homes
Neighborhood
Home address
Schools in Wake County Schools
GreatSchools’ Summary Rating calculation is based on 4 of the school’s themed ratings, including test scores, student/academic progress, college readiness, and equity. This information should only be used as a reference. Jome is not affiliated with GreatSchools and does not endorse or guarantee this information. Please reach out to schools directly to verify all information and enrollment eligibility. Data provided by GreatSchools.org © 2025
Places of interest
Getting around
Air quality
Noise level
A Soundscore™ rating is a number between 50 (very loud) and 100 (very quiet) that tells you how loud a location is due to environmental noise.

Considering this home?
Our expert will guide your tour, in-person or virtual
Need more information?
Text or call (888) 486-2818
Financials
Estimated monthly payment
Let us help you find your dream home
How many bedrooms are you looking for?
Similar homes nearby
Recently added communities in this area
Nearby communities in Garner
New homes in nearby cities
More New Homes in Garner, NC
Clayton Properties Group INC, MLS 10132144
© 2025 Doorify MLS, Inc. of North Carolina. All rights reserved. Brokers make an effort to deliver accurate information, but buyers should independently verify any information on which they will rely in a transaction. The listing broker shall not be responsible for any typographical errors, misinformation, or misprints, and they shall be held totally harmless from any damages arising from reliance upon this data. This data is provided exclusively for consumers’ personal, non-commercial use. Some IDX listings have been excluded from this IDX display. Closed (sold) listings may have been listed and/or sold by a real estate firm other than the firm(s) featured on this website. Closed data is not available until the sale of the property is recorded in the MLS. Home sale data is not an appraisal, CMA, competitive or comparative market analysis, or home valuation of any property. Listings marked with an icon are provided courtesy of the Doorify MLS, Inc. of North Carolina, Internet Data Exchange Database.
Read moreLast checked Jan 20, 4:10 am
- Jome
- New homes search
- North Carolina
- Raleigh-Durham Area
- Wake County
- Garner
- Renaissance at White Oak
- 416 White Oak Garden Wy, Unit 316, Garner, NC 27529



























