



































- 3 bd
- 3 ba
- 2,340 sqft
1068 Arundle Rd, Sherrills Ford, NC 28673
- Single-Family
- $181.62/sqft
- 0.15-acre lot
- 147 days on Jome
New Homes for Sale Near 1068 Arundle Rd, Sherrills Ford, NC 28673
About this Home
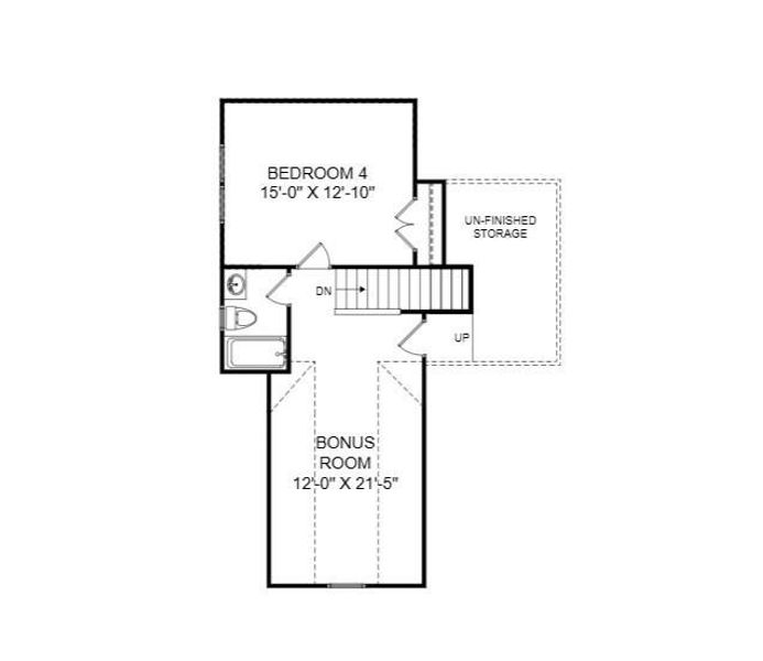
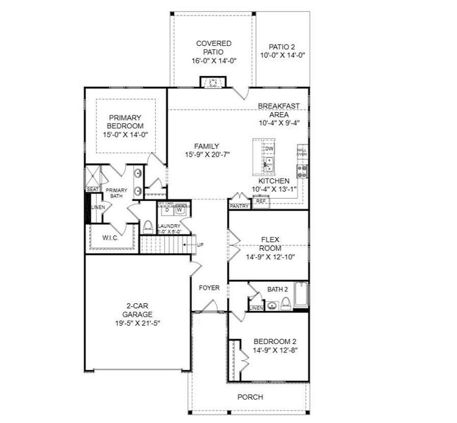
Carefully crafted two-level home in a lively 55+ community, designed for comfort and modern convenience. The main level features a spacious primary bedroom with a well-appointed full bath and ample closet space, alongside two additional bedrooms for guests or family. A versatile flex room with glass doors provides an ideal space for work or relaxation. The kitchen, perfect for cooking and entertaining, boasts a large island, sleek quartz countertops, and high-quality appliances, creating a fluid space for gatherings. Enjoy the welcoming front porch, perfect for morning coffee or evening chats. Upstairs, a generous bonus room offers flexible space for hobbies, entertainment, or guest accommodations. This home blends contemporary style with enduring comfort in a vibrant community setting! Schedule your tour today!
SM North Carolina Brokerage LLC, MLS CAR4311158
May also be listed on the Stanley Martin Homes website
Information last verified by Jome: Saturday at 5:00 PM (February 21, 2026)
Home details
- Property status:
- Sold
- Lot size (acres):
- 0.15
- Size:
- 2,340 sqft
- Stories:
- 1.5
- Beds:
- 3
- Baths:
- 3
- Garage spaces:
- 2
Construction details
- Builder Name:
- Stanley Martin Homes
- Completion Date:
- December, 2025
- Year Built:
- 2025
- Roof:
- Shingle Roofing
Home features & finishes
- Construction Materials:
- CementStone
- Cooling:
- Ceiling Fan(s)Central Air
- Flooring:
- Vinyl FlooringCarpet FlooringTile Flooring
- Foundation Details:
- Slab
- Garage/Parking:
- Door OpenerGarageFront Entry Garage/ParkingAttached Garage
- Interior Features:
- Walk-In ClosetFoyerPantryFrench Doors
- Kitchen:
- DishwasherMicrowave OvenOvenRefrigeratorDisposalGas CooktopKitchen Island
- Laundry facilities:
- DryerWasherLaundry Facilities On Main LevelUtility/Laundry Room
- Property amenities:
- Gas Log FireplacePatioFireplacePorch
- Rooms:
- Flex RoomPrimary Bedroom On MainKitchenFamily RoomBreakfast AreaOpen Concept FloorplanPrimary Bedroom Downstairs
- Security system:
- Smoke DetectorCarbon Monoxide Detector
Utility information
- Heating:
- Water Heater, Gas Heating, Forced Air Heating, Tankless water heater

Community details
The Retreat at Laurelbrook at Laurelbrook
by Stanley Martin Homes, Sherrills Ford, NC
- 18 homes
- 4 plans
- 1,346 - 2,690 sqft
View The Retreat at Laurelbrook details
Community amenities
- Club House
- Sport Court
- Community Pool
- Sidewalks Available
More homes in The Retreat at Laurelbrook
- Home at address 1512 Ardmore Dr, Sherrills Ford, NC 28673

$299,500
Under construction- 3 bd
- 2 ba
- 1,347 sqft
1512 Ardmore Dr, Sherrills Ford, NC 28673
- Home at address 1489 Ardmore Dr, Sherrills Ford, NC 28673

$318,615
Under construction- 3 bd
- 2 ba
- 1,346 sqft
1489 Ardmore Dr, Sherrills Ford, NC 28673
- Home at address 1485 Ardmore Dr, Sherrills Ford, NC 28673

$330,115
Under construction- 3 bd
- 2 ba
- 1,554 sqft
1485 Ardmore Dr, Sherrills Ford, NC 28673
- Home at address 1484 Ardmore Dr, Sherrills Ford, NC 28673

$336,665
Under construction- 3 bd
- 2 ba
- 1,725 sqft
1484 Ardmore Dr, Sherrills Ford, NC 28673
- Home at address 1469 Ardmore Dr, Sherrills Ford, NC 28673

$337,665
Under construction- 3 bd
- 2 ba
- 1,725 sqft
1469 Ardmore Dr, Sherrills Ford, NC 28673
- Home at address 1481 Ardmore Dr, Sherrills Ford, NC 28673

$340,415
Under construction- 3 bd
- 2 ba
- 1,725 sqft
1481 Ardmore Dr, Sherrills Ford, NC 28673
Floor plans in The Retreat at Laurelbrook
About the builder - Stanley Martin Homes
Neighborhood
Home address
- City:
- Sherrills Ford
- County:
- Catawba
- Zip Code:
- 28673
Schools in Catawba County Schools
GreatSchools’ Summary Rating calculation is based on 4 of the school’s themed ratings, including test scores, student/academic progress, college readiness, and equity. This information should only be used as a reference. Jome is not affiliated with GreatSchools and does not endorse or guarantee this information. Please reach out to schools directly to verify all information and enrollment eligibility. Data provided by GreatSchools.org © 2025
Places of interest
Getting around
Air quality
Financials
Nearby communities in Sherrills Ford
Homes in Sherrills Ford by Stanley Martin Homes
Recently added communities in this area
Other Builders in Sherrills Ford, NC
Nearby sold homes
New homes in nearby cities
More New Homes in Sherrills Ford, NC
SM North Carolina Brokerage LLC, MLS CAR4311158
Based on information submitted to the MLS GRID as of 10/21/2024 2:31 PM CDT. All data is obtained from various sources and may not have been verified by the broker or MLS GRID. Supplied Open House Information is subject to change without notice. All information should be independently reviewed and verified for accuracy. Properties may or may not be listed by the office/agent presenting the information. Properties displayed may be listed or sold by various participants in the MLS. The Digital Millennium Copyright Act of 1998, 17 U.S.C. § 512 (the “DMCA”) provides recourse for copyright owners who believe that material appearing on the Internet infringes their rights under U.S. copyright law. If you believe in good faith that any content or material made available in connection with our website or services infringes your copyright, you (or your agent) may send us a notice requesting that the content or material be removed, or access to it blocked. Notices must be sent in writing by email to DMCAnotice@MLSGrid.com. The DMCA requires that your notice of alleged copyright infringement include the following information: (1) description of the copyrighted work that is the subject of claimed infringement; (2) description of the alleged infringing content and information sufficient to permit us to locate the content; (3) contact information for you, including your address, telephone number and email address; (4) a statement by you that you have a good faith belief that the content in the manner complained of is not authorized by the copyright owner, or its agent, or by the operation of any law; (5) a statement by you, signed under penalty of perjury, that the information in the notification is accurate and that you have the authority to enforce the copyrights that are claimed to be infringed; and (6) a physical or electronic signature of the copyright owner or a person authorized to act on the copyright owner’s behalf. Failure to include all of the above information may result in the delay of the processing of your complaint.
Read moreLast checked Mar 5, 12:00 am
- Jome
- New homes search
- North Carolina
- Charlotte Metropolitan Area
- Catawba County
- Sherrills Ford
- The Retreat at Laurelbrook
- 1068 Arundle Rd, Sherrills Ford, NC 28673

































































