



























- 5 bd
- 3 ba
- 2,821 sqft
248 Yellow River Wy, Garner, NC 27529
- Single-Family
- $177.21/sqft
- $49.5/monthly HOA
- 0.16-acre lot
New Homes for Sale Near 248 Yellow River Wy, Garner, NC 27529
About this Home
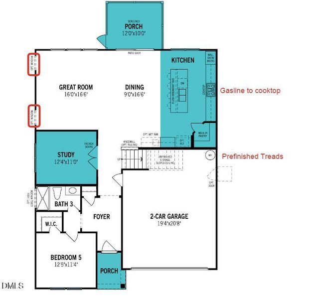
The Sequoia floorplan offers vast living space that's perfect for your grandest gatherings as well as your day-to-day routines. The large, combined Great Room, dining room and gourmet kitchen with breakfast bar offer lots of space, while a study room and a 5th bedroom off the foyer add even more options. This home has a beautiful screen porch in the back. Upstairs, an owner's suite with a tiled shower with seat in the owner's bathroom and walk-in closet provides comfort and privacy along with bedrooms 2, 3 and 4. Meanwhile, a large loft extends usable living space.
Mattamy Homes LLC, MLS 10121794
May also be listed on the Mattamy Homes website
Information last verified by Jome: Today at 4:29 AM (May 30, 2026)
Home details
- Property status:
- Sold
- Lot size (acres):
- 0.16
- Size:
- 2,821 sqft
- Stories:
- 2
- Beds:
- 5
- Baths:
- 3
- Garage spaces:
- 2
Construction details
- Builder Name:
- Mattamy Homes
- Completion Date:
- March, 2026
- Year Built:
- 2025
- Roof:
- Shingle Roofing
Home features & finishes
- Construction Materials:
- Vinyl Siding
- Flooring:
- Laminate FlooringCarpet FlooringTile Flooring
- Foundation Details:
- Slab
- Garage/Parking:
- GarageAttached Garage
- Interior Features:
- Ceiling-HighWalk-In ClosetPantryLoft
- Kitchen:
- DishwasherMicrowave OvenOvenCooktop
- Laundry facilities:
- Laundry Facilities On Upper LevelUtility/Laundry Room
- Property amenities:
- BasementWalk-in ShowerFireplacePorch
- Rooms:
- Flex RoomOffice/StudyDining RoomFamily RoomOpen Concept FloorplanPrimary Bedroom Upstairs
Utility information
- Heating:
- Electric Heating, Heat Pump
- Sewer:
- Public Sewer
- Water source:
- Public

Community details
Magnolia Park
by Mattamy Homes, Garner, NC
- 14 homes
- 15 plans
- 1,866 - 4,211 sqft
View Magnolia Park details
Community amenities
- Woods View
- Playground
- Fitness Center/Exercise Area
- Club House
- Community Pool
- Sidewalks Available
More homes in Magnolia Park
- Home at address 147 Cucumber Ct, Garner, NC 27529
Savings$472,320
Move-in ready- 5 bd
- 3.5 ba
- 2,818 sqft
147 Cucumber Ct, Garner, NC 27529
- Home at address 151 Cucumber Ct, Garner, NC 27529
Savings$494,137
Move-in ready- 5 bd
- 4 ba
- 2,914 sqft
151 Cucumber Ct, Garner, NC 27529
- Home at address 148 Wood Orchid Ln, Garner, NC 27529
Savings$494,590
Move-in ready- 5 bd
- 3 ba
- 2,912 sqft
148 Wood Orchid Ln, Garner, NC 27529
- Home at address 268 Yellow River Wy, Garner, NC 27529
Savings$511,193
Move-in ready- 5 bd
- 3 ba
- 2,567 sqft
268 Yellow River Wy, Garner, NC 27529
- Home at address 264 Yellow River Wy, Garner, NC 27529
Savings$520,903
Move-in ready- 5 bd
- 3 ba
- 2,567 sqft
264 Yellow River Wy, Garner, NC 27529
- Home at address 256 Yellow River Wy, Garner, NC 27529
Savings$533,461
Move-in ready- 5 bd
- 3 ba
- 2,809 sqft
256 Yellow River Wy, Garner, NC 27529
Floor plans in Magnolia Park
About the builder - Mattamy Homes

- 125communities on Jome
- 1,065homes on Jome
Neighborhood
Home address
Schools in Wake County Schools
GreatSchools’ Summary Rating calculation is based on 4 of the school’s themed ratings, including test scores, student/academic progress, college readiness, and equity. This information should only be used as a reference. Jome is not affiliated with GreatSchools and does not endorse or guarantee this information. Please reach out to schools directly to verify all information and enrollment eligibility. Data provided by GreatSchools.org © 2025
Places of interest
Getting around
Noise level
A Soundscore™ rating is a number between 50 (very loud) and 100 (very quiet) that tells you how loud a location is due to environmental noise.
Financials
Nearby communities in Garner
Homes in Garner Neighborhoods
Homes in Garner by Mattamy Homes
Recently added communities in this area
Other Builders in Garner, NC
Nearby sold homes
New homes in nearby cities
More New Homes in Garner, NC
Mattamy Homes LLC, MLS 10121794
© 2025 Doorify MLS, Inc. of North Carolina. All rights reserved. Brokers make an effort to deliver accurate information, but buyers should independently verify any information on which they will rely in a transaction. The listing broker shall not be responsible for any typographical errors, misinformation, or misprints, and they shall be held totally harmless from any damages arising from reliance upon this data. This data is provided exclusively for consumers’ personal, non-commercial use. Some IDX listings have been excluded from this IDX display. Closed (sold) listings may have been listed and/or sold by a real estate firm other than the firm(s) featured on this website. Closed data is not available until the sale of the property is recorded in the MLS. Home sale data is not an appraisal, CMA, competitive or comparative market analysis, or home valuation of any property. Listings marked with an icon are provided courtesy of the Doorify MLS, Inc. of North Carolina, Internet Data Exchange Database.
Read moreLast checked May 30, 4:10 am
- Jome
- New homes search
- North Carolina
- Raleigh-Durham Area
- Wake County
- Garner
- Magnolia Park
- 248 Yellow River Wy, Garner, NC 27529








































































