







Book your tour. Save an average of $18,473. We'll handle the rest.
We collect exclusive builder offers, book your tours, and support you from start to housewarming.
- Confirmed tours
- Get matched & compare top deals
- Expert help, no pressure
- No added fees
Estimated value based on Jome data, T&C apply














- 5 bd
- 3 ba
- 2,567 sqft
268 Yellow River Wy, Garner, NC 27529
Why tour with Jome?
- No pressure toursTour at your own pace with no sales pressure
- Expert guidanceGet insights from our home buying experts
- Exclusive accessSee homes and deals not available elsewhere
Jome is featured in
- Single-Family
- Quick move-in
- $203.04/sqft
- $49.5/monthly HOA
Home description
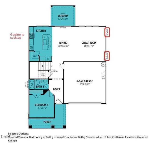
Parade of Homes award-winning floorplan!
The Shenandoah offers an exceptional living experience, thoughtfully designed to complement an active lifestyle. The heart of the home, a combined Great Room, dining room, and gourmet kitchen with a breakfast island, provides a seamless space for creating culinary delights, entertaining guests, and sharing memorable moments.
This versatile home also features a convenient fifth bedroom or guest suite on the first floor, ideal for guests or overnight visitors. The upstairs boasts an additional spacious loft, providing even more room for relaxation, hobbies, or gatherings. The expansive primary suite serves as a tranquil retreat, offering a luxurious ensuite bath and a generously sized walk-in closet. Bedrooms 2 through 4 provide comfortable and private accommodations for family members or guests. Anticipating May completion.
Mattamy Homes LLC, MLS 10132224
May also be listed on the Mattamy Homes website
Information last verified by Jome: Today at 4:10 PM (April 21, 2026)
Home highlights
Book your tour. Save an average of $18,473. We'll handle the rest.
We collect exclusive builder offers, book your tours, and support you from start to housewarming.
- Confirmed tours
- Get matched & compare top deals
- Expert help, no pressure
- No added fees
Estimated value based on Jome data, T&C apply
Home details
- Property status:
- Move-in ready
- Lot size (acres):
- 0.16
- Size:
- 2,567 sqft
- Stories:
- 2
- Beds:
- 5
- Baths:
- 3
- Garage spaces:
- 2
- Facing direction:
- Southeast
Construction details
- Builder Name:
- Mattamy Homes
- Completion Date:
- May, 2026
- Year Built:
- 2026
- Roof:
- Shingle Roofing
Home features & finishes
- Construction Materials:
- Vinyl Siding
- Cooling:
- Central Air
- Flooring:
- Vinyl FlooringCarpet Flooring
- Foundation Details:
- Slab
- Garage/Parking:
- GarageAttached Garage
- Interior Features:
- Ceiling-HighWalk-In ClosetLoft
- Kitchen:
- DishwasherMicrowave OvenOvenCooktop
- Laundry facilities:
- Utility/Laundry Room
- Property amenities:
- BasementFireplacePorch
- Rooms:
- Flex RoomOffice/StudyDining RoomFamily RoomPrimary Bedroom Upstairs
Room details
Master Bedroom

Get a consultation with our New Homes Expert
- See how your home builds wealth
- Plan your home-buying roadmap
- Discover hidden gems
Utility information
- Heating:
- Heat Pump
- Sewer:
- Public Sewer
- Water source:
- Public

Community details
Magnolia Park
by Mattamy Homes, Garner, NC
- 14 homes
- 15 plans
- 1,866 - 4,211 sqft
View Magnolia Park details
Community amenities
- Playground
- Fitness Center/Exercise Area
- Club House
- Community Pool
- Sidewalks Available
More homes in Magnolia Park
- Home at address 111 Sprenger St, Garner, NC 27529

Palmer
$471,331
- 5 bd
- 3.5 ba
- 2,818 sqft
111 Sprenger St, Garner, NC 27529
- Home at address 147 Cucumber Ct, Garner, NC 27529

Palmer
$482,320
- 5 bd
- 3.5 ba
- 2,818 sqft
147 Cucumber Ct, Garner, NC 27529
- Home at address 148 Wood Orchid Ln, Garner, NC 27529

Home
$494,590
- 5 bd
- 3 ba
- 2,912 sqft
148 Wood Orchid Ln, Garner, NC 27529
- Home at address 151 Cucumber Ct, Garner, NC 27529

Tate
$504,137
- 5 bd
- 4 ba
- 2,914 sqft
151 Cucumber Ct, Garner, NC 27529
- Home at address 264 Yellow River Wy, Garner, NC 27529

Shenandoah
$520,903
- 5 bd
- 3 ba
- 2,567 sqft
264 Yellow River Wy, Garner, NC 27529
- Home at address 256 Yellow River Wy, Garner, NC 27529

Sequoia
$533,461
- 5 bd
- 3 ba
- 2,809 sqft
256 Yellow River Wy, Garner, NC 27529
Floor plans in Magnolia Park
About the builder - Mattamy Homes

- 122communities on Jome
- 1,133homes on Jome
Neighborhood
Home address
Schools in Wake County Schools
GreatSchools’ Summary Rating calculation is based on 4 of the school’s themed ratings, including test scores, student/academic progress, college readiness, and equity. This information should only be used as a reference. Jome is not affiliated with GreatSchools and does not endorse or guarantee this information. Please reach out to schools directly to verify all information and enrollment eligibility. Data provided by GreatSchools.org © 2025
Places of interest
Getting around
Noise level
A Soundscore™ rating is a number between 50 (very loud) and 100 (very quiet) that tells you how loud a location is due to environmental noise.

Considering this home?
Our expert will guide your tour, in-person or virtual
Need more information?
Text or call (888) 545-5198
Financials
Estimated monthly payment
Let us help you find your dream home
How many bedrooms are you looking for?
Similar homes nearby
Recently added communities in this area
Nearby communities in Garner
New homes in nearby cities
More New Homes in Garner, NC
Mattamy Homes LLC, MLS 10132224
© 2025 Doorify MLS, Inc. of North Carolina. All rights reserved. Brokers make an effort to deliver accurate information, but buyers should independently verify any information on which they will rely in a transaction. The listing broker shall not be responsible for any typographical errors, misinformation, or misprints, and they shall be held totally harmless from any damages arising from reliance upon this data. This data is provided exclusively for consumers’ personal, non-commercial use. Some IDX listings have been excluded from this IDX display. Closed (sold) listings may have been listed and/or sold by a real estate firm other than the firm(s) featured on this website. Closed data is not available until the sale of the property is recorded in the MLS. Home sale data is not an appraisal, CMA, competitive or comparative market analysis, or home valuation of any property. Listings marked with an icon are provided courtesy of the Doorify MLS, Inc. of North Carolina, Internet Data Exchange Database.
Read moreLast checked Apr 21, 4:10 pm
- Jome
- New homes search
- North Carolina
- Raleigh-Durham Area
- Wake County
- Garner
- Magnolia Park
- 268 Yellow River Wy, Garner, NC 27529
































