
















- 4 bd
- 2.5 ba
- 2,152 sqft
253 Mayflower Dr Nw, Calabash, NC 28467
- Single-Family
- $162.59/sqft
- 268 days on Jome
New Homes for Sale Near 253 Mayflower Dr Nw, Calabash, NC 28467
About this Home
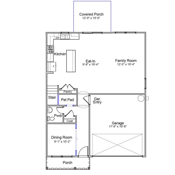
Welcome to Allston Park, our newest community in the Calabash area! This thoughtfully planned neighborhood is conveniently located near major roadways, beautiful beaches, shopping, and an abundance of dining options. Residents can also enjoy a community pool, the perfect spot to cool off during the summer months. This two-story Lancaster floor plan offers four bedrooms, two-and-one-half bathrooms, a two-car garage, and a pet pad on an interior homesite. Both the front and rear covered porches provide inviting spaces to relax outdoors throughout the year. The kitchen is designed with upgraded gray cabinetry, a spacious island with lagoon quartz countertops, pendant lighting, and a separate formal dining room, making it ideal for gatherings and everyday meals. Luxury vinyl plank flooring flows throughout the main living areas, while the primary suite includes a box tray ceiling and a luxurious en-suite bathroom with a five-foot shower, dual quartz vanities, and a walk-in closet. Discover the perfect blend of modern comfort and timeless charm at Allston Park!
May also be listed on the Mungo Homes website
Information last verified by Jome: Sunday at 6:06 AM (March 8, 2026)
Home details
- Property status:
- Sold
- Size:
- 2,152 sqft
- Stories:
- 2
- Beds:
- 4
- Baths:
- 2
- Half baths:
- 1
- Garage spaces:
- 2
Construction details
- Builder Name:
- Mungo Homes
- Completion Date:
- February, 2026
Home features & finishes
- Garage/Parking:
- Garage
- Rooms:
- Primary Bedroom Upstairs

Community details
Allston Park
by Mungo Homes, Calabash, NC
- 10 homes
- 1,531 - 3,049 sqft
View Allston Park details
More homes in Allston Park
- Home at address 292 Mayflower Dr Nw, Calabash, NC 28467
Savings$359,900
Under construction- 4 bd
- 2 ba
- 1,889 sqft
292 Mayflower Dr Nw, Calabash, NC 28467
- Home at address 262 Mayflower Dr Nw, Calabash, NC 28467
Savings$371,900
Under construction- 4 bd
- 2.5 ba
- 2,431 sqft
262 Mayflower Dr Nw, Calabash, NC 28467
- Home at address 715 Night Lotus Dr Nw, Calabash, NC 28467
Savings$381,900
Under construction- 4 bd
- 2 ba
- 1,889 sqft
715 Night Lotus Dr Nw, Calabash, NC 28467
- Home at address 189 Mayflower Dr, Calabash, NC 28467
Savings$386,900
Under construction- 5 bd
- 3 ba
- 2,380 sqft
189 Mayflower Dr, Calabash, NC 28467
- Home at address 777 Night Lotus Dr, Calabash, NC 28467
Savings$404,900
Under construction- 6 bd
- 4 ba
- 3,049 sqft
777 Night Lotus Dr, Calabash, NC 28467
- Home at address 197 Mayflower Dr, Calabash, NC 28467
Savings$408,900
Move-in ready- 5 bd
- 3.5 ba
- 3,049 sqft
197 Mayflower Dr, Calabash, NC 28467
About the builder - Mungo Homes
Neighborhood
Home address
Schools in Brunswick County Schools
- Grades PK-12Privatenorth myrtle beach christian school9.5 mi9535 hwy 90na
GreatSchools’ Summary Rating calculation is based on 4 of the school’s themed ratings, including test scores, student/academic progress, college readiness, and equity. This information should only be used as a reference. Jome is not affiliated with GreatSchools and does not endorse or guarantee this information. Please reach out to schools directly to verify all information and enrollment eligibility. Data provided by GreatSchools.org © 2025
Places of interest
Getting around
Noise level
A Soundscore™ rating is a number between 50 (very loud) and 100 (very quiet) that tells you how loud a location is due to environmental noise.
Financials
Nearby communities in Calabash
Homes in Calabash by Mungo Homes
Recently added communities in this area
Other Builders in Calabash, NC
Nearby sold homes
New homes in nearby cities
More New Homes in Calabash, NC
- Jome
- New homes search
- North Carolina
- Brunswick County
- Calabash
- Allston Park
- 253 Mayflower Dr Nw, Calabash, NC 28467














































