














Book your tour. Save an average of $18,473. We'll handle the rest.
- Confirmed tours
- Get matched & compare top deals
- Expert help, no pressure
- No added fees
Estimated value based on Jome data, T&C apply




Why tour with Jome?
- No pressure toursTour at your own pace with no sales pressure
- Expert guidanceGet insights from our home buying experts
- Exclusive accessSee homes and deals not available elsewhere
Jome is featured in
- Single-Family
- Ready by May 2026
- $134.11/sqft
- 1 days on Jome
Home description
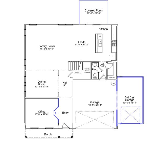
The Turner is a two-story, open-concept home offering five bedrooms and three-and-one-half baths. Just off the entry, a spacious office with French doors provides a quiet place to work or study. The great room anchors the main living area and flows seamlessly into the formal dining room, kitchen, and eat-in area—perfect for everyday living and entertaining. The kitchen features a large island, a walk-in pantry conveniently located near the garage entrance, and generous storage, including ample under-stair space. Upstairs, the primary suite includes a large walk-in closet and dual linen closets. Four additional bedrooms are also located on the second floor, along with a loft and a centrally located laundry room for added convenience.
May also be listed on the Mungo Homes website
Information last verified by Jome: Today at 6:01 AM (January 13, 2026)
Book your tour. Save an average of $18,473. We'll handle the rest.
We collect exclusive builder offers, book your tours, and support you from start to housewarming.
- Confirmed tours
- Get matched & compare top deals
- Expert help, no pressure
- No added fees
Estimated value based on Jome data, T&C apply
Home details
- Property status:
- Under construction
- Size:
- 3,049 sqft
- Stories:
- 2
- Beds:
- 5
- Baths:
- 3
- Half baths:
- 1
- Garage spaces:
- 3
Construction details
- Builder Name:
- Mungo Homes
- Completion Date:
- May, 2026
Home features & finishes
- Garage/Parking:
- Garage
- Rooms:
- Primary Bedroom Upstairs

Community details
Allston Park
by Mungo Homes, Calabash, NC
- 10 homes
- 9 plans
- 1,518 - 3,049 sqft
View Allston Park details
More homes in Allston Park
- Home at address 270 Mayflower Dr Nw, Calabash, NC 28467

Bleckley
$344,900
- 3 bd
- 3 ba
- 1,531 sqft
270 Mayflower Dr Nw, Calabash, NC 28467
- Home at address 249 Mayflower Dr Nw, Calabash, NC 28467

Bleckley
$344,900
- 3 bd
- 2 ba
- 1,518 sqft
249 Mayflower Dr Nw, Calabash, NC 28467
- Home at address 242 Mayflower Dr Nw, Calabash, NC 28467

Decatur
$359,900
- 3 bd
- 2 ba
- 1,643 sqft
242 Mayflower Dr Nw, Calabash, NC 28467
- Home at address 245 Mayflower Dr Nw, Calabash, NC 28467

Gwinnett
$359,900
- 3 bd
- 2 ba
- 2,217 sqft
245 Mayflower Dr Nw, Calabash, NC 28467
- Home at address 253 Mayflower Dr Nw, Calabash, NC 28467

Lancaster
$359,900
- 4 bd
- 2.5 ba
- 2,152 sqft
253 Mayflower Dr Nw, Calabash, NC 28467
- Home at address 781 Night Lotus Dr, Calabash, NC 28467

Lanier
$379,900
- 3 bd
- 2 ba
- 1,989 sqft
781 Night Lotus Dr, Calabash, NC 28467
Floor plans in Allston Park

Turner - Genesis Value Collection
- 5 bd
- 2.5 ba
- 2,985 sqft
About the builder - Mungo Homes
Neighborhood
Home address
Schools in Brunswick County Schools
- Grades PK-12Privatenorth myrtle beach christian school9.5 mi9535 hwy 90na
GreatSchools’ Summary Rating calculation is based on 4 of the school’s themed ratings, including test scores, student/academic progress, college readiness, and equity. This information should only be used as a reference. Jome is not affiliated with GreatSchools and does not endorse or guarantee this information. Please reach out to schools directly to verify all information and enrollment eligibility. Data provided by GreatSchools.org © 2025
Places of interest
Getting around
Noise level
A Soundscore™ rating is a number between 50 (very loud) and 100 (very quiet) that tells you how loud a location is due to environmental noise.

Considering this home?
Our expert will guide your tour, in-person or virtual
Need more information?
Text or call (888) 486-2818
Financials
Estimated monthly payment
Similar homes nearby
Recently added communities in this area
Nearby communities in Calabash
New homes in nearby cities
More New Homes in Calabash, NC
- Jome
- New homes search
- North Carolina
- Brunswick County
- Calabash
- Allston Park
- 197 Mayflower Dr, Calabash, NC 28467

























