















- 4 bd
- 3 ba
- 2,223 sqft
828 Shoveler Ct, Kernersville, NC 27284
- Single-Family
- $162.39/sqft
- 143 days on Jome
New Homes for Sale Near 828 Shoveler Ct, Kernersville, NC 27284
About this Home
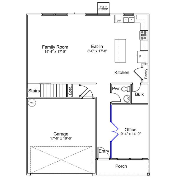
Our Meriwether floor plan is a four-bedroom home that features a large primary bedroom with double sinks, a five-foot shower, and an enormous walk-in closet with direct access to the upper-level laundry room. Also on the upper level are three additional bedrooms. On the main level, you’ll find a large family room that opens to the eat-in kitchen with granite countertops, white cabinets, and stainless steel appliances, including a gas range. A flex room with glass double French doors can serve as a dining room, office, or whatever you desire. The home has luxury vinyl flooring throughout the main level. There is also a ten-by-ten patio at the rear of the home, as well as sod, irrigation, and a tankless gas water heater, all included. Additionally, the home comes with a ten-year warranty and a Blower Door Test to ensure energy efficiency.
May also be listed on the Mungo Homes website
Information last verified by Jome: Thursday at 5:46 AM (November 6, 2025)
Home details
- Property status:
- Sold
- Size:
- 2,223 sqft
- Stories:
- 2
- Beds:
- 4
- Baths:
- 3
- Garage spaces:
- 2
Construction details
- Builder Name:
- Mungo Homes
- Completion Date:
- December, 2025
Home features & finishes
- Garage/Parking:
- Garage
- Rooms:
- Primary Bedroom Upstairs

Community details
Bell West
by Mungo Homes, Kernersville, NC
- 13 homes
- 1,786 - 2,402 sqft
View Bell West details
More homes in Bell West
- Home at address 811 Shoveler Ct, Kernersville, NC 27284

$310,000
Under construction- 4 bd
- 2.5 ba
- 1,786 sqft
811 Shoveler Ct, Kernersville, NC 27284
- Home at address 865 Shoveler Ct, Kernersville, NC 27284

$323,559
Under construction- 4 bd
- 2.5 ba
- 1,786 sqft
865 Shoveler Ct, Kernersville, NC 27284
- Home at address 829 Shoveler Ct, Kernersville, NC 27284

$325,000
Move-in ready- 4 bd
- 2 ba
- 1,951 sqft
829 Shoveler Ct, Kernersville, NC 27284
- Home at address 847 Shoveler Ct, Kernersville, NC 27284

$327,308
Under construction- 4 bd
- 2.5 ba
- 1,786 sqft
847 Shoveler Ct, Kernersville, NC 27284
- Home at address 5115 Fallmeade Rd, Kernersville, NC 27284

$335,000
Move-in ready- 4 bd
- 2 ba
- 1,962 sqft
5115 Fallmeade Rd, Kernersville, NC 27284
- Home at address 823 Shoveler Ct, Kernersville, NC 27284

$340,000
Move-in ready- 4 bd
- 2 ba
- 1,951 sqft
823 Shoveler Ct, Kernersville, NC 27284
About the builder - Mungo Homes
Neighborhood
Home address
- City:
- Kernersville
- County:
- Forsyth
- Zip Code:
- 27284
Schools in Forsyth County Schools
- Grades PK-12Privatetriad baptist christian academy2.4 mi1175 s main stna
GreatSchools’ Summary Rating calculation is based on 4 of the school’s themed ratings, including test scores, student/academic progress, college readiness, and equity. This information should only be used as a reference. Jome is not affiliated with GreatSchools and does not endorse or guarantee this information. Please reach out to schools directly to verify all information and enrollment eligibility. Data provided by GreatSchools.org © 2025
Places of interest
Getting around
Air quality
Noise level
A Soundscore™ rating is a number between 50 (very loud) and 100 (very quiet) that tells you how loud a location is due to environmental noise.
Financials
Nearby communities in Kernersville
Homes in Kernersville by Mungo Homes
Recently added communities in this area
Other Builders in Kernersville, NC
Nearby sold homes
New homes in nearby cities
More New Homes in Kernersville, NC
- Jome
- New homes search
- North Carolina
- Forsyth County
- Kernersville
- Bell West
- 828 Shoveler Ct, Kernersville, NC 27284






















































