














Book your tour. Save an average of $18,473. We'll handle the rest.
- Confirmed tours
- Get matched & compare top deals
- Expert help, no pressure
- No added fees
Estimated value based on Jome data, T&C apply






























Why tour with Jome?
- No pressure toursTour at your own pace with no sales pressure
- Expert guidanceGet insights from our home buying experts
- Exclusive accessSee homes and deals not available elsewhere
Jome is featured in
- Single-Family
- Quick move-in
- $165.14/sqft
- 179 days on Jome
Home description
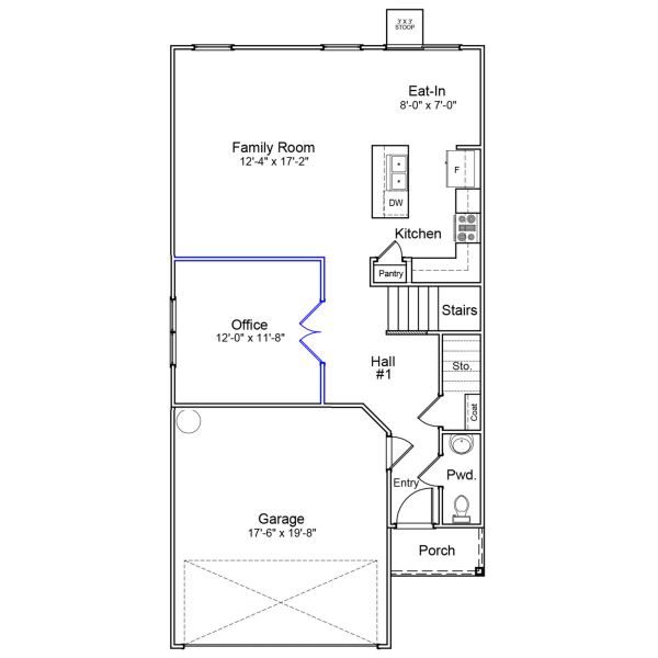
Charming Three-Bedroom Home Near Salem Lake & Bike Trail.
Located just minutes from scenic Salem Lake and the bike trail, this beautiful three-bedroom home offers a perfect blend of comfort and functionality. The main level features a spacious great room and a dedicated office—ideal for working from home or studying. The open-concept kitchen boasts granite countertops and flows seamlessly into the main living area, making it perfect for entertaining. Upstairs, enjoy the versatility of a loft and a cozy nook, along with the convenience of an upper-level laundry room. The primary suite includes a large walk-in closet, double sinks, and a spacious five-foot shower. Additional highlights include a 10x10 patio for outdoor enjoyment, a tankless gas water heater for energy efficiency, and sod and irrigation for easy lawn maintenance.
May also be listed on the Mungo Homes website
Information last verified by Jome: Today at 6:06 AM (December 19, 2025)
Home highlights
Book your tour. Save an average of $18,473. We'll handle the rest.
We collect exclusive builder offers, book your tours, and support you from start to housewarming.
- Confirmed tours
- Get matched & compare top deals
- Expert help, no pressure
- No added fees
Estimated value based on Jome data, T&C apply
Home details
- Property status:
- Move-in ready
- Size:
- 1,962 sqft
- Stories:
- 2
- Beds:
- 3
- Baths:
- 2
- Garage spaces:
- 2
Construction details
- Builder Name:
- Mungo Homes
- Completion Date:
- September, 2025
Home features & finishes
- Garage/Parking:
- Garage
- Rooms:
- Primary Bedroom Upstairs

Get a consultation with our New Homes Expert
- See how your home builds wealth
- Plan your home-buying roadmap
- Discover hidden gems

Community details
Bell West
by Mungo Homes, Kernersville, NC
- 11 homes
- 7 plans
- 1,548 - 2,621 sqft
View Bell West details
More homes in Bell West
Floor plans in Bell West
About the builder - Mungo Homes
Neighborhood
Home address
- City:
- Kernersville
- County:
- Forsyth
- Zip Code:
- 27284
Schools in Forsyth County Schools
- Grades PK-12Privatetriad baptist christian academy2.4 mi1175 s main stna
GreatSchools’ Summary Rating calculation is based on 4 of the school’s themed ratings, including test scores, student/academic progress, college readiness, and equity. This information should only be used as a reference. Jome is not affiliated with GreatSchools and does not endorse or guarantee this information. Please reach out to schools directly to verify all information and enrollment eligibility. Data provided by GreatSchools.org © 2025
Places of interest
Getting around
Air quality
Noise level
A Soundscore™ rating is a number between 50 (very loud) and 100 (very quiet) that tells you how loud a location is due to environmental noise.
Natural hazards risk
Climate hazards can impact homes and communities, with risks varying by location. These scores reflect the potential impact of natural disasters and climate-related risks on Forsyth County
Provided by FEMA

Considering this home?
Our expert will guide your tour, in-person or virtual
Need more information?
Text or call (888) 486-2818
Financials
Estimated monthly payment
Let us help you find your dream home
How many bedrooms are you looking for?
Similar homes nearby
Recently added communities in this area
Nearby communities in Kernersville
New homes in nearby cities
More New Homes in Kernersville, NC
- Jome
- New homes search
- North Carolina
- Forsyth County
- Kernersville
- Bell West
- 5079 Fallmeade Rd, Kernersville, NC 27284








































