







































- 4 bd
- 3 ba
- 2,223 sqft
5127 Fallmeade Rd, Kernersville, NC 27284
- Single-Family
- $155.2/sqft
- 171 days on Jome
New Homes for Sale Near 5127 Fallmeade Rd, Kernersville, NC 27284
About this Home
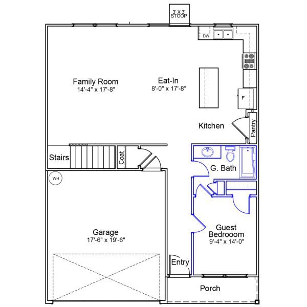
This lovely Meriwether floorplan is a four-bedroom home that features a large primary bedroom with double sinks, a garden tub and tile separate shower with a glass door, an enormous walk-in closet with direct access to the upper-level laundry room. Also on the upper level, two additional bedrooms and a loft area. On the main level a large great room opens to the eat in kitchen with quartz countertops, quill-stained cabinets, a gas range and stainless appliances. The fourth bedroom is located on the main level with direct access to a full bath with a tub and shower. The home has luxury vinyl flooring throughout the main level. There is also a 10x10 patio on the rear of the home as well as sod, irrigation and a tankless gas water heater that is included!
May also be listed on the Mungo Homes website
Information last verified by Jome: Tuesday at 5:32 AM (December 23, 2025)
Home details
- Property status:
- Sold
- Size:
- 2,223 sqft
- Stories:
- 2
- Beds:
- 4
- Baths:
- 3
- Garage spaces:
- 2
Construction details
- Builder Name:
- Mungo Homes
- Completion Date:
- October, 2025
Home features & finishes
- Garage/Parking:
- Garage
- Rooms:
- Primary Bedroom Upstairs

Community details
Bell West
by Mungo Homes, Kernersville, NC
- 13 homes
- 1,786 - 2,402 sqft
View Bell West details
More homes in Bell West
- Home at address 811 Shoveler Ct, Kernersville, NC 27284

$310,000
Move-in ready- 4 bd
- 2.5 ba
- 1,786 sqft
811 Shoveler Ct, Kernersville, NC 27284
- Home at address 847 Shoveler Ct, Kernersville, NC 27284

$320,000
Under construction- 4 bd
- 2.5 ba
- 1,786 sqft
847 Shoveler Ct, Kernersville, NC 27284
- Home at address 865 Shoveler Ct, Kernersville, NC 27284

$323,559
Under construction- 4 bd
- 2.5 ba
- 1,786 sqft
865 Shoveler Ct, Kernersville, NC 27284
- Home at address 829 Shoveler Ct, Kernersville, NC 27284

$325,000
Move-in ready- 4 bd
- 2 ba
- 1,951 sqft
829 Shoveler Ct, Kernersville, NC 27284
- Home at address 5115 Fallmeade Rd, Kernersville, NC 27284

$335,000
Move-in ready- 4 bd
- 2 ba
- 1,962 sqft
5115 Fallmeade Rd, Kernersville, NC 27284
- Home at address 835 Shoveler Ct, Kernersville, NC 27284

$340,000
Move-in ready- 4 bd
- 2 ba
- 2,152 sqft
835 Shoveler Ct, Kernersville, NC 27284
About the builder - Mungo Homes
Neighborhood
Home address
- City:
- Kernersville
- County:
- Forsyth
- Zip Code:
- 27284
Schools in Forsyth County Schools
- Grades PK-12Privatetriad baptist christian academy2.5 mi1175 s main stna
GreatSchools’ Summary Rating calculation is based on 4 of the school’s themed ratings, including test scores, student/academic progress, college readiness, and equity. This information should only be used as a reference. Jome is not affiliated with GreatSchools and does not endorse or guarantee this information. Please reach out to schools directly to verify all information and enrollment eligibility. Data provided by GreatSchools.org © 2025
Places of interest
Getting around
Air quality
Noise level
A Soundscore™ rating is a number between 50 (very loud) and 100 (very quiet) that tells you how loud a location is due to environmental noise.
Financials
Nearby communities in Kernersville
Homes in Kernersville by Mungo Homes
Recently added communities in this area
Other Builders in Kernersville, NC
Nearby sold homes
New homes in nearby cities
More New Homes in Kernersville, NC
- Jome
- New homes search
- North Carolina
- Forsyth County
- Kernersville
- Bell West
- 5127 Fallmeade Rd, Kernersville, NC 27284






















































