













































- 6 bd
- 4 ba
- 2,771 sqft
208 Rock Cress Dr, Lexington, NC 27295
- Single-Family
- $131.72/sqft
- 174 days on Jome
New Homes for Sale Near 208 Rock Cress Dr, Lexington, NC 27295
About this Home
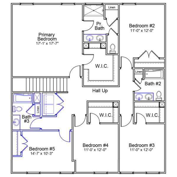
Welcome to the Telfair floor plan, a spacious and well-designed home offering six bedrooms and four full bathrooms. This layout includes a main floor guest suite, perfect for visitors or multi-generational living. As you enter through the covered front porch, you're welcomed by a wide entry hall that opens into a large great room connected to the eat-in area and formal dining room. The kitchen sits at the heart of the home and features a large island, walk-in pantry, and plenty of countertop and cabinet space—ideal for cooking, gathering, and everyday living. Upstairs, the generous primary suite includes a large walk-in closet and a private retreat feel. Four additional bedrooms, two full bathrooms, and conveniently located laundry room complete the second floor.
May also be listed on the Mungo Homes website
Information last verified by Jome: Tuesday at 6:18 AM (December 16, 2025)
Home details
- Property status:
- Sold
- Size:
- 2,771 sqft
- Stories:
- 2
- Beds:
- 6
- Baths:
- 4
- Garage spaces:
- 2
Construction details
- Builder Name:
- Mungo Homes
- Completion Date:
- November, 2025
Home features & finishes
- Garage/Parking:
- Garage
- Rooms:
- Primary Bedroom Upstairs

Community details
Fieldstone
by Mungo Homes, Lexington, NC
- 23 homes
- 12 plans
- 1,383 - 3,578 sqft
View Fieldstone details
More homes in Fieldstone
- Home at address 151 Candytuft Ct, Lexington, NC 27295

$295,000
Move-in ready- 3 bd
- 2 ba
- 1,383 sqft
151 Candytuft Ct, Lexington, NC 27295
- Home at address 164 Candytuft Ct, Lexington, NC 27295

$319,000
Move-in ready- 4 bd
- 3 ba
- 1,707 sqft
164 Candytuft Ct, Lexington, NC 27295
- Home at address 156 Candytuft Ct, Lexington, NC 27295

$320,000
Move-in ready- 4 bd
- 3 ba
- 1,950 sqft
156 Candytuft Ct, Lexington, NC 27295
- Home at address 159 Candytuft Ct, Lexington, NC 27295

$320,000
Move-in ready- 3 bd
- 3 ba
- 1,819 sqft
159 Candytuft Ct, Lexington, NC 27295
- Home at address 173 Candytuft Ct, Lexington, NC 27295

$332,460
Under construction- 4 bd
- 3 ba
- 1,721 sqft
173 Candytuft Ct, Lexington, NC 27295
- Home at address 167 Candytuft Ct, Lexington, NC 27295

$333,000
Move-in ready- 5 bd
- 3 ba
- 1,902 sqft
167 Candytuft Ct, Lexington, NC 27295
Floor plans in Fieldstone

Abigail - Vanguard Collection
- 2 bd
- 2 ba
- 1,398 sqft

Lander - Vanguard Collection
- 3 bd
- 2 ba
- 1,818 sqft

Cumberland - Vanguard Collection
- 3 bd
- 2 ba
- 2,020 sqft

Mulberry - Vanguard Collection
- 3 bd
- 2.5 ba
- 2,476 sqft

Nantahala II - Vanguard Collection
- 4 bd
- 2.5 ba
- 2,450 sqft

Roanoke - Vanguard Collection
- 4 bd
- 2.5 ba
- 2,708 sqft

Keowee - Vanguard Collection
- 3 bd
- 2.5 ba
- 2,491 sqft

Savannah - Vanguard Collection
- 5 bd
- 2.5 ba
- 2,886 sqft
About the builder - Mungo Homes
Neighborhood
Home address
Schools in Davidson County Schools
GreatSchools’ Summary Rating calculation is based on 4 of the school’s themed ratings, including test scores, student/academic progress, college readiness, and equity. This information should only be used as a reference. Jome is not affiliated with GreatSchools and does not endorse or guarantee this information. Please reach out to schools directly to verify all information and enrollment eligibility. Data provided by GreatSchools.org © 2025
Places of interest
Getting around
Air quality
Noise level
A Soundscore™ rating is a number between 50 (very loud) and 100 (very quiet) that tells you how loud a location is due to environmental noise.
Financials
Nearby communities in Lexington
Homes in Lexington by Mungo Homes
Recently added communities in this area
Other Builders in Lexington, NC
Nearby sold homes
New homes in nearby cities
More New Homes in Lexington, NC
- Jome
- New homes search
- North Carolina
- Davidson County
- Lexington
- Fieldstone
- 208 Rock Cress Dr, Lexington, NC 27295



































































