




- 3 bd
- 3 ba
- 2,400 sqft
214 Mayflower Dr Nw, Calabash, NC 28467
- Single-Family
- $168.71/sqft
- 177 days on Jome
New Homes for Sale Near 214 Mayflower Dr Nw, Calabash, NC 28467
About this Home
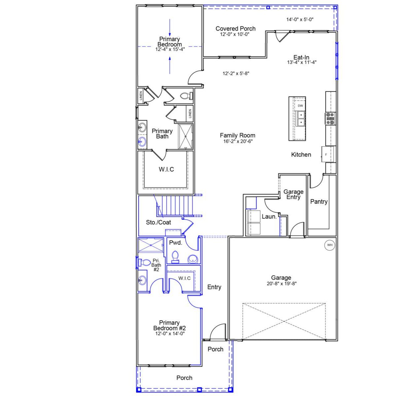
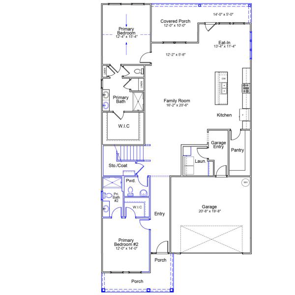
Welcome to Allston Park in Calabash, NC! Golf lovers are in for a treat, as Allston Park is located behind the beautiful Meadowlands Golf Resort! Allston Park boasts large lots and many floorplans to fit your needs! Centrally located to entertainment, shopping, famous Calabash restaurants, and gorgeous Carolina beaches, this community is a gem. The amenity area features a pool, restrooms, a mail kiosk, and parking. This 2,400-square-foot Lanier floor plan features front and rear covered porches, TWO primary suites on the first floor, a fabulous loft, a bonus room, and a bedroom with a full bath on the second level. Easy entertaining is made possible with the help of a versatile, open-concept living space. The kitchen comes complete with an island, a breakfast bar, upgraded cabinets, a pantry closet, a dining area, and quartz countertops. Luxury vinyl plank flooring runs throughout the living space, and a two-car garage completes the home. The Lanier floor plan is new to the community! Its layout is FABULOUS & VERSATILE, perfect for addressing the many different needs/wants of today's buyers.
May also be listed on the Mungo Homes website
Information last verified by Jome: Saturday at 5:58 AM (November 1, 2025)
Home details
- Property status:
- Sold
- Size:
- 2,400 sqft
- Stories:
- 1
- Beds:
- 3
- Baths:
- 3
- Garage spaces:
- 2
Construction details
- Builder Name:
- Mungo Homes
- Completion Date:
- December, 2025
Home features & finishes
- Garage/Parking:
- Garage
- Rooms:
- Primary Bedroom On MainPrimary Bedroom Downstairs

Community details
Allston Park
by Mungo Homes, Calabash, NC
- 10 homes
- 9 plans
- 1,518 - 3,049 sqft
View Allston Park details
More homes in Allston Park
- Home at address 270 Mayflower Dr Nw, Calabash, NC 28467

$344,900
Under construction- 3 bd
- 3 ba
- 1,531 sqft
270 Mayflower Dr Nw, Calabash, NC 28467
- Home at address 249 Mayflower Dr Nw, Calabash, NC 28467

$344,900
Under construction- 3 bd
- 2 ba
- 1,518 sqft
249 Mayflower Dr Nw, Calabash, NC 28467
- Home at address 242 Mayflower Dr Nw, Calabash, NC 28467

$359,900
Under construction- 3 bd
- 2 ba
- 1,643 sqft
242 Mayflower Dr Nw, Calabash, NC 28467
- Home at address 253 Mayflower Dr Nw, Calabash, NC 28467

$359,900
Under construction- 4 bd
- 2.5 ba
- 2,152 sqft
253 Mayflower Dr Nw, Calabash, NC 28467
- Home at address 245 Mayflower Dr Nw, Calabash, NC 28467

$359,900
Move-in ready- 3 bd
- 2 ba
- 2,217 sqft
245 Mayflower Dr Nw, Calabash, NC 28467
- Home at address 781 Night Lotus Dr, Calabash, NC 28467

$379,900
Under construction- 3 bd
- 2 ba
- 1,989 sqft
781 Night Lotus Dr, Calabash, NC 28467
Floor plans in Allston Park

Bleckley - Genesis Value Collection
- 3 bd
- 2 ba
- 1,518 sqft

Decatur - Genesis Value Collection
- 3 bd
- 2 ba
- 1,643 sqft

Durham II - Genesis Value Collection
- 3 bd
- 2 ba
- 1,761 sqft

Lancaster - Genesis Value Collection
- 4 bd
- 2.5 ba
- 2,152 sqft

Gwinnett II - Genesis Value Collection
- 3 bd
- 2 ba
- 1,889 sqft

Lanier - Genesis Value Collection
- 3 bd
- 2 ba
- 1,989 sqft

Pickens - Genesis Value Collection
- 4 bd
- 2.5 ba
- 2,431 sqft

Telfair - Genesis Value Collection
- 4 bd
- 2.5 ba
- 2,771 sqft

Turner - Genesis Value Collection
- 5 bd
- 2.5 ba
- 2,985 sqft
About the builder - Mungo Homes
Neighborhood
Home address
Schools in Brunswick County Schools
- Grades PK-12Privatenorth myrtle beach christian school9.5 mi9535 hwy 90na
GreatSchools’ Summary Rating calculation is based on 4 of the school’s themed ratings, including test scores, student/academic progress, college readiness, and equity. This information should only be used as a reference. Jome is not affiliated with GreatSchools and does not endorse or guarantee this information. Please reach out to schools directly to verify all information and enrollment eligibility. Data provided by GreatSchools.org © 2025
Places of interest
Getting around
Noise level
A Soundscore™ rating is a number between 50 (very loud) and 100 (very quiet) that tells you how loud a location is due to environmental noise.
Financials
Nearby communities in Calabash
Homes in Calabash by Mungo Homes
Recently added communities in this area
Other Builders in Calabash, NC
Nearby sold homes
New homes in nearby cities
More New Homes in Calabash, NC
- Jome
- New homes search
- North Carolina
- Brunswick County
- Calabash
- Allston Park
- 214 Mayflower Dr Nw, Calabash, NC 28467




























































