
























































- 5 bd
- 3.5 ba
- 2,630 sqft
2533 Raspberry Hill Dr, Winston-Salem, NC 27106
- Single-Family
- $155.89/sqft
- 249 days on Jome
New Homes for Sale Near 2533 Raspberry Hill Dr, Winston-Salem, NC 27106
About this Home
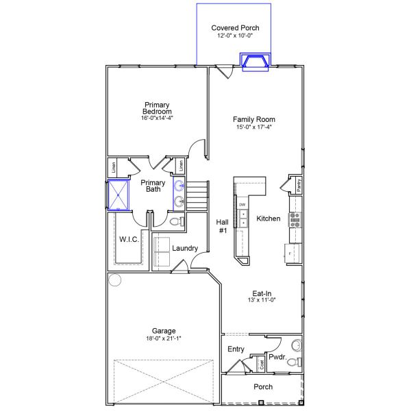
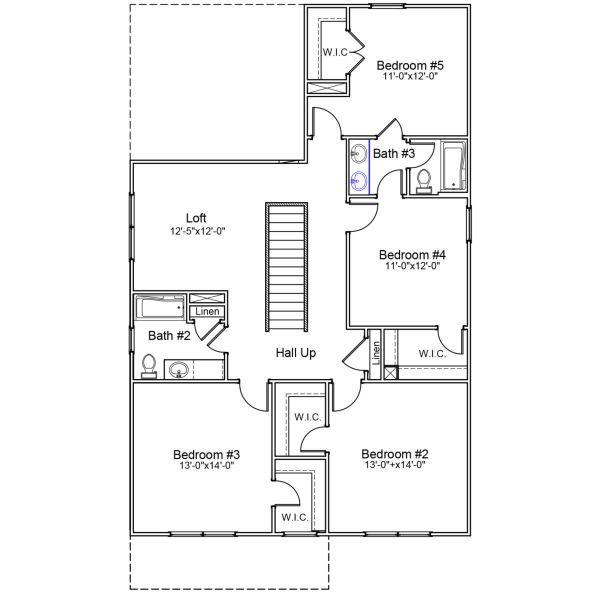
This stunning Rutherford plan features five bedrooms and three-and-one-half bathrooms. Enter from your front porch to your foyer, which leads to an eat-in area and kitchen. Pendant lighting, gorgeous cabinetry, a gas stainless steel appliance package, and quartz countertops can all be found in the kitchen, which overlooks the great room and leads to the outside covered porch. The primary suite is found on the main level of this home, featuring a vaulted ceiling, a glass shower, dual sinks, and a sizeable walk-in closet. Upstairs, you will find a spacious loft space, as well as four secondary bedrooms. Bedrooms two and three are at the front of the house and share the first full bath with double sink bowls, and bedrooms three and four are located near the back of house and share the connected second full bath with double sinks. Don't miss out on this beautiful home in Hanes Lake, a one-of-a-kind community that features a community pool and lake access where you can fish, kayak, and more!
May also be listed on the Mungo Homes website
Information last verified by Jome: Sunday at 6:13 AM (January 4, 2026)
Home details
- Property status:
- Sold
- Size:
- 2,630 sqft
- Stories:
- 2
- Beds:
- 5
- Baths:
- 3
- Half baths:
- 1
- Garage spaces:
- 2
Construction details
- Builder Name:
- Mungo Homes
- Completion Date:
- October, 2025
Home features & finishes
- Garage/Parking:
- Garage
- Rooms:
- Primary Bedroom Downstairs

Community details
Hanes Lake
by Mungo Homes, Winston-Salem, NC
- 13 homes
- 9 plans
- 1,476 - 3,578 sqft
View Hanes Lake details
More homes in Hanes Lake
- Home at address 5362 Spicewood Lake Ln, Winston-Salem, NC 27106

$385,000
Move-in ready- 5 bd
- 3 ba
- 2,177 sqft
5362 Spicewood Lake Ln, Winston-Salem, NC 27106
- Home at address 3234 Spicewood Lake Dr, Winston-Salem, NC 27106

$485,000
Move-in ready- 5 bd
- 3.5 ba
- 2,942 sqft
3234 Spicewood Lake Dr, Winston-Salem, NC 27106
Floor plans in Hanes Lake
- View details for Savannah - Vanguard Collection

Savannah - Vanguard Collection
$439,000+- 5 bd
- 2.5 ba
- 2,886 sqft
About the builder - Mungo Homes
Neighborhood
Home address
- City:
- Winston-Salem
- County:
- Forsyth
- Zip Code:
- 27106
Schools in Forsyth County Schools
GreatSchools’ Summary Rating calculation is based on 4 of the school’s themed ratings, including test scores, student/academic progress, college readiness, and equity. This information should only be used as a reference. Jome is not affiliated with GreatSchools and does not endorse or guarantee this information. Please reach out to schools directly to verify all information and enrollment eligibility. Data provided by GreatSchools.org © 2025
Places of interest
Getting around
Air quality
Noise level
A Soundscore™ rating is a number between 50 (very loud) and 100 (very quiet) that tells you how loud a location is due to environmental noise.
Financials
Nearby communities in Winston-Salem
Homes in Winston-Salem Neighborhoods
Homes in Winston-Salem by Mungo Homes
Recently added communities in this area
Other Builders in Winston-Salem, NC
Nearby sold homes
New homes in nearby cities
More New Homes in Winston-Salem, NC
- Jome
- New homes search
- North Carolina
- Forsyth County
- Winston-Salem
- Hanes Lake
- 2533 Raspberry Hill Dr, Winston-Salem, NC 27106































































