








Book your tour. Save an average of $18,473. We'll handle the rest.
We collect exclusive builder offers, book your tours, and support you from start to housewarming.
- Confirmed tours
- Get matched & compare top deals
- Expert help, no pressure
- No added fees
Estimated value based on Jome data, T&C apply



































Why tour with Jome?
- No pressure toursTour at your own pace with no sales pressure
- Expert guidanceGet insights from our home buying experts
- Exclusive accessSee homes and deals not available elsewhere
Jome is featured in
- Single-Family
- Quick move-in
- $181.11/sqft
- 154 days on Jome
Home description
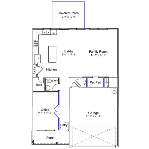
Welcome to the Meriwether floor plan, a spacious and versatile home! The open-concept kitchen boasts stylish finishes and flows seamlessly into the great room and dining area, making it ideal for entertaining, with an additional guest suite on the main floor! The main floor is enhanced with durable luxury vinyl plank flooring, while the upstairs features a spacious loft, creating a perfect second living space. The primary suite offers a luxurious retreat with huge walk-in closets and dual sinks. Step outside to the covered porch, perfect for relaxing or enjoying outdoor gatherings. Hanes Lake community is one of a kind, with a community pool, walking trails, and fishing in the lake. Come check out Hanes Lake today!
May also be listed on the Mungo Homes website
Information last verified by Jome: Yesterday at 5:35 AM (March 19, 2026)
Book your tour. Save an average of $18,473. We'll handle the rest.
We collect exclusive builder offers, book your tours, and support you from start to housewarming.
- Confirmed tours
- Get matched & compare top deals
- Expert help, no pressure
- No added fees
Estimated value based on Jome data, T&C apply
Home details
- Property status:
- Move-in ready
- Size:
- 2,260 sqft
- Stories:
- 2
- Beds:
- 3
- Baths:
- 3
- Garage spaces:
- 2
Construction details
- Builder Name:
- Mungo Homes
- Completion Date:
- February, 2026
Home features & finishes
- Garage/Parking:
- Garage
- Rooms:
- Primary Bedroom Upstairs

Get a consultation with our New Homes Expert
- See how your home builds wealth
- Plan your home-buying roadmap
- Discover hidden gems

Community details
Hanes Lake
by Mungo Homes, Winston-Salem, NC
- 13 homes
- 1,476 - 3,215 sqft
View Hanes Lake details
More homes in Hanes Lake
- Home at address 523 Raspberry Hill Rd, Winston-Salem, NC 27106

Bartow
$305,000
- 3 bd
- 2 ba
- 1,476 sqft
523 Raspberry Hill Rd, Winston-Salem, NC 27106
- Home at address 5369 Spicewood Lake Ln, Winston-Salem, NC 27106

Meriwether
$390,000
- 3 bd
- 2.5 ba
- 2,241 sqft
5369 Spicewood Lake Ln, Winston-Salem, NC 27106
- Home at address 546 Raspberry Hill Rd, Winston-Salem, NC 27106

Lancaster
Savings$395,000
- 4 bd
- 2.5 ba
- 2,175 sqft
546 Raspberry Hill Rd, Winston-Salem, NC 27106
- Home at address 2503 Raspberry Hill Dr, Winston-Salem, NC 27106

Meriwether
$405,000
- 3 bd
- 2.5 ba
- 2,260 sqft
2503 Raspberry Hill Dr, Winston-Salem, NC 27106
- Home at address 2587 Raspberry Hill Dr, Winston-Salem, NC 27106

Pickens
$425,000
- 4 bd
- 2.5 ba
- 2,436 sqft
2587 Raspberry Hill Dr, Winston-Salem, NC 27106
- Home at address 719 Cinnamon Hill Dr, Winston-Salem, NC 27106

Nantahala II
$470,000
- 4 bd
- 3.5 ba
- 2,458 sqft
719 Cinnamon Hill Dr, Winston-Salem, NC 27106
About the builder - Mungo Homes
Neighborhood
Home address
- City:
- Winston-Salem
- County:
- Forsyth
- Zip Code:
- 27106
Schools in Forsyth County Schools
GreatSchools’ Summary Rating calculation is based on 4 of the school’s themed ratings, including test scores, student/academic progress, college readiness, and equity. This information should only be used as a reference. Jome is not affiliated with GreatSchools and does not endorse or guarantee this information. Please reach out to schools directly to verify all information and enrollment eligibility. Data provided by GreatSchools.org © 2025
Places of interest
Getting around
Air quality
Noise level
A Soundscore™ rating is a number between 50 (very loud) and 100 (very quiet) that tells you how loud a location is due to environmental noise.

Considering this home?
Our expert will guide your tour, in-person or virtual
Need more information?
Text or call (888) 545-5198
Financials
Estimated monthly payment
Let us help you find your dream home
How many bedrooms are you looking for?
Similar homes nearby
Recently added communities in this area
Nearby communities in Winston-Salem
New homes in nearby cities
More New Homes in Winston-Salem, NC
- Jome
- New homes search
- North Carolina
- Forsyth County
- Winston-Salem
- Hanes Lake
- 5375 Spicewood Lake Ln, Winston-Salem, NC 27106




























