













































- 3 bd
- 2.5 ba
- 1,735 sqft
516 Raspberry Hill Rd, Winston-Salem, NC 27106
- Single-Family
- $187.32/sqft
- 249 days on Jome
New Homes for Sale Near 516 Raspberry Hill Rd, Winston-Salem, NC 27106
About this Home
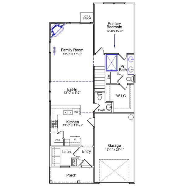
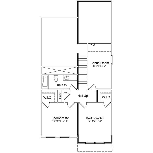
Welcome to the Evans floorplan by Mungo Homes. This plan features three bedrooms, two-and-one-half bathrooms, and a main level primary bedroom! The kitchen and laundry room sit immediately off the entryway, and an eating area and great room lead off the kitchen. Upstairs you'll find a bonus room, another full bathroom, and two more bedrooms, each with a walk-in closet. You'll not only love the home but you'll love the Hanes Lake community. Featuring a pool and private community lake, this community is the perfect place to call home. Make an appointment today!
May also be listed on the Mungo Homes website
Information last verified by Jome: Wednesday at 6:12 AM (December 17, 2025)
Home details
- Property status:
- Sold
- Size:
- 1,735 sqft
- Stories:
- 2
- Beds:
- 3
- Baths:
- 2
- Half baths:
- 1
- Garage spaces:
- 1
Construction details
- Builder Name:
- Mungo Homes
- Completion Date:
- September, 2025
Home features & finishes
- Garage/Parking:
- Garage
- Rooms:
- Primary Bedroom Downstairs

Community details
Hanes Lake
by Mungo Homes, Winston-Salem, NC
- 13 homes
- 9 plans
- 1,476 - 3,578 sqft
View Hanes Lake details
More homes in Hanes Lake
- Home at address 523 Raspberry Hill Rd, Winston-Salem, NC 27106

$305,000
Move-in ready- 3 bd
- 2 ba
- 1,476 sqft
523 Raspberry Hill Rd, Winston-Salem, NC 27106
- Home at address 5362 Spicewood Lake Ln, Winston-Salem, NC 27106

$385,000
Move-in ready- 5 bd
- 3 ba
- 2,177 sqft
5362 Spicewood Lake Ln, Winston-Salem, NC 27106
- Home at address 5356 Spicewood Lake Ln, Winston-Salem, NC 27106

$390,000
Move-in ready- 4 bd
- 3 ba
- 2,237 sqft
5356 Spicewood Lake Ln, Winston-Salem, NC 27106
- Home at address 5369 Spicewood Lake Ln, Winston-Salem, NC 27106

$390,000
Under construction- 3 bd
- 2.5 ba
- 2,241 sqft
5369 Spicewood Lake Ln, Winston-Salem, NC 27106
- Home at address 713 Cinnamon Hill Dr, Winston-Salem, NC 27106

$399,000
Move-in ready- 3 bd
- 2 ba
- 1,700 sqft
713 Cinnamon Hill Dr, Winston-Salem, NC 27106
- Home at address 546 Raspberry Hill Rd, Winston-Salem, NC 27106

$401,000
Move-in ready- 4 bd
- 2.5 ba
- 2,175 sqft
546 Raspberry Hill Rd, Winston-Salem, NC 27106
Floor plans in Hanes Lake
- View details for Edisto - Vanguard Collection

Edisto - Vanguard Collection
$406,000+- 4 bd
- 2.5 ba
- 2,285 sqft
- View details for Keowee - Vanguard Collection

Keowee - Vanguard Collection
$415,000+- 3 bd
- 2.5 ba
- 2,491 sqft
About the builder - Mungo Homes
Neighborhood
Home address
- City:
- Winston-Salem
- County:
- Forsyth
- Zip Code:
- 27106
Schools in Forsyth County Schools
GreatSchools’ Summary Rating calculation is based on 4 of the school’s themed ratings, including test scores, student/academic progress, college readiness, and equity. This information should only be used as a reference. Jome is not affiliated with GreatSchools and does not endorse or guarantee this information. Please reach out to schools directly to verify all information and enrollment eligibility. Data provided by GreatSchools.org © 2025
Places of interest
Getting around
Air quality
Noise level
A Soundscore™ rating is a number between 50 (very loud) and 100 (very quiet) that tells you how loud a location is due to environmental noise.
Financials
Nearby communities in Winston-Salem
Homes in Winston-Salem Neighborhoods
Homes in Winston-Salem by Mungo Homes
Recently added communities in this area
Other Builders in Winston-Salem, NC
Nearby sold homes
New homes in nearby cities
More New Homes in Winston-Salem, NC
- Jome
- New homes search
- North Carolina
- Forsyth County
- Winston-Salem
- Hanes Lake
- 516 Raspberry Hill Rd, Winston-Salem, NC 27106



































































