





- 3 bd
- 3.5 ba
- 1,989 sqft
384 Chesapeake Commons St, Garner, NC 27529
- Single-Family
- $140.27/sqft
- $195/monthly HOA
- 183 days on Jome
New Homes for Sale Near 384 Chesapeake Commons St, Garner, NC 27529
About this Home
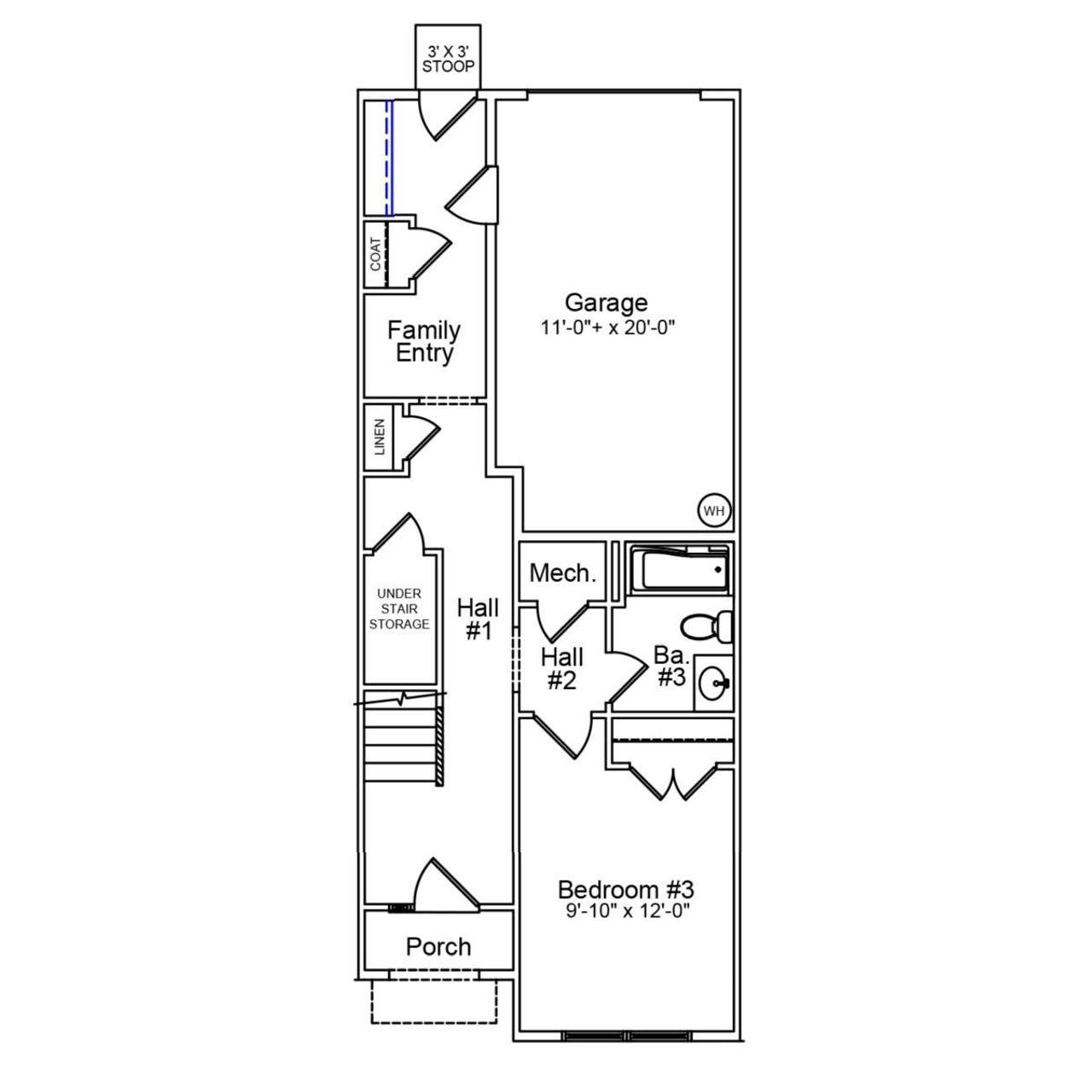
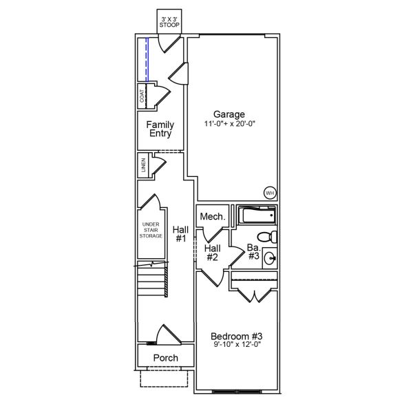
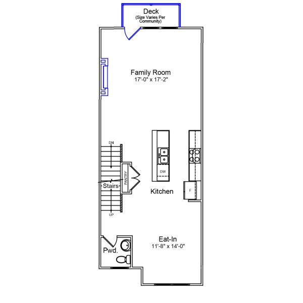
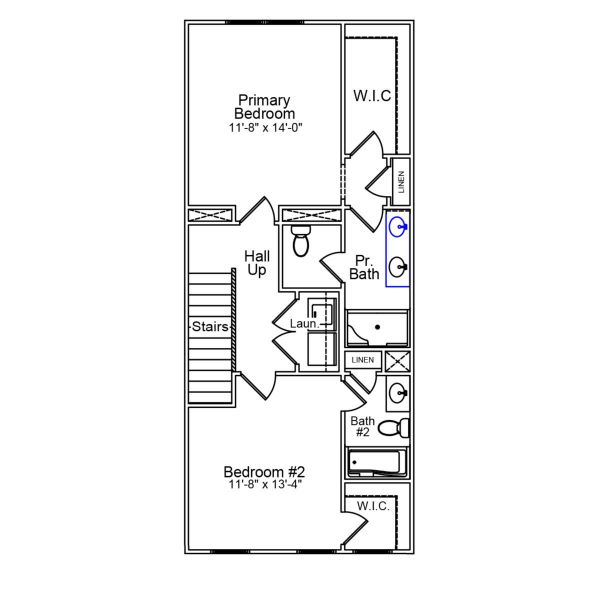
This home has everything you've been looking for! The front shows off a high brick design that gives it a bold and welcoming feel. In the back, there's a one-car garage that opens into a drop zone with bench and cubbies—perfect for everything tidy in one spot! You'll also find a coat closet, a linen closet, and extra storage under the stairs. Also on the first floor- a guest bedroom with its own full bathroom and a walk-in shower. On the second floor, there is a large great room with an electric fireplace and a deck where you can relax outside. The kitchen has a big island, a pantry, and a separate dining space. On the third floor, the primary bedroom feels like a private retreat with its own bathroom and a big closet. The second bedroom has its own bathroom too, giving everyone space and privacy. This home is comfy, stylish, and ready for you to move in and make memories!
May also be listed on the Mungo Homes website
Information last verified by Jome: Friday at 6:27 AM (November 7, 2025)
Home details
- Property status:
- Sold
- Size:
- 1,989 sqft
- Stories:
- 3+
- Beds:
- 3
- Baths:
- 3
- Half baths:
- 1
- Garage spaces:
- 1
Construction details
- Builder Name:
- Mungo Homes
- Completion Date:
- November, 2025
Home features & finishes
- Garage/Parking:
- Garage
- Rooms:
- Primary Bedroom Upstairs

Community details
Renaissance at White Oak
by Mungo Homes, Garner, NC
- 39 homes
- 4 plans
- 1,462 - 2,535 sqft
View Renaissance at White Oak details
More homes in Renaissance at White Oak
Floor plans in Renaissance at White Oak
About the builder - Mungo Homes
Neighborhood
Home address
Schools in Wake County Schools
GreatSchools’ Summary Rating calculation is based on 4 of the school’s themed ratings, including test scores, student/academic progress, college readiness, and equity. This information should only be used as a reference. Jome is not affiliated with GreatSchools and does not endorse or guarantee this information. Please reach out to schools directly to verify all information and enrollment eligibility. Data provided by GreatSchools.org © 2025
Places of interest
Getting around
Noise level
A Soundscore™ rating is a number between 50 (very loud) and 100 (very quiet) that tells you how loud a location is due to environmental noise.
Natural hazards risk
Climate hazards can impact homes and communities, with risks varying by location. These scores reflect the potential impact of natural disasters and climate-related risks on Wake County
Provided by FEMA
Financials
Nearby communities in Garner
Homes in Garner Neighborhoods
Homes in Garner by Mungo Homes
Recently added communities in this area
Other Builders in Garner, NC
Nearby sold homes
New homes in nearby cities
More New Homes in Garner, NC
- Jome
- New homes search
- North Carolina
- Raleigh-Durham Area
- Wake County
- Garner
- Renaissance at White Oak
- 384 Chesapeake Commons St, Garner, NC 27529



































































