




Book your tour. Save an average of $18,473. We'll handle the rest.
- Confirmed tours
- Get matched & compare top deals
- Expert help, no pressure
- No added fees
Estimated value based on Jome data, T&C apply
- 3 bd
- 2.5 ba
- 1,899 sqft
380 White Oak Garden Wy, Garner, NC 27529
Why tour with Jome?
- No pressure toursTour at your own pace with no sales pressure
- Expert guidanceGet insights from our home buying experts
- Exclusive accessSee homes and deals not available elsewhere
Jome is featured in
- Single-Family
- Ready by April 2026
- $199.58/sqft
- $195/monthly HOA
Home description
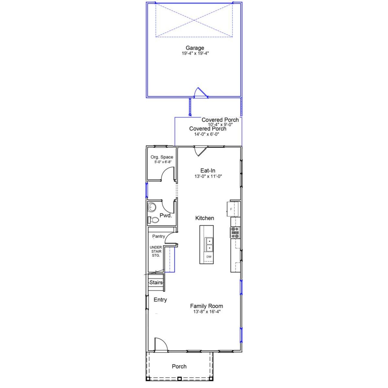
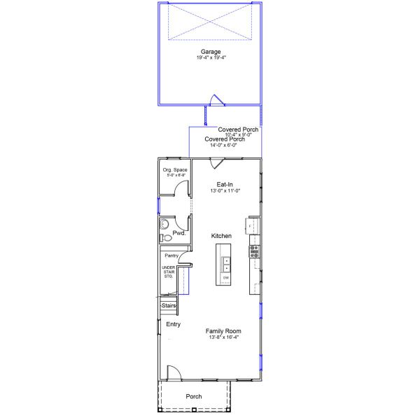
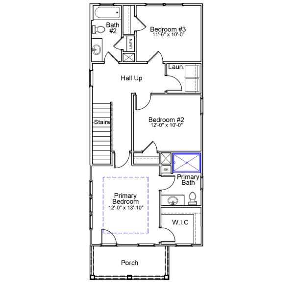
Come see this beautiful home in Renaissance at White Oak, Wake Country's Southern Gateway to the Triangle! This home offers a comfortable and functional layout. The eat-in kitchen includes a central island and a spacious pantry, with an open flow into the large great room—ideal for both everyday living and entertaining. Just off the kitchen are the garage entry and additional under-stair storage. Upstairs, the layout includes a private primary suite, two additional bedrooms, and a convenient laundry room. All bedrooms feature walk-in closets, providing plenty of storage space throughout the home. Thoughtfully designed with practicality in mind, this home is ready to fit your lifestyle.
May also be listed on the Mungo Homes website
Information last verified by Jome: Yesterday at 5:55 AM (December 9, 2025)
Home highlights
Book your tour. Save an average of $18,473. We'll handle the rest.
We collect exclusive builder offers, book your tours, and support you from start to housewarming.
- Confirmed tours
- Get matched & compare top deals
- Expert help, no pressure
- No added fees
Estimated value based on Jome data, T&C apply
Home details
- Property status:
- Under construction
- Size:
- 1,899 sqft
- Stories:
- 2
- Beds:
- 3
- Baths:
- 2
- Half baths:
- 1
- Garage spaces:
- 2
Construction details
- Builder Name:
- Mungo Homes
- Completion Date:
- April, 2026
Home features & finishes
- Garage/Parking:
- Garage
- Rooms:
- Primary Bedroom Upstairs

Community details
Renaissance at White Oak
by Mungo Homes, Garner, NC
- 39 homes
- 4 plans
- 1,462 - 2,535 sqft
View Renaissance at White Oak details
More homes in Renaissance at White Oak
Floor plans in Renaissance at White Oak
About the builder - Mungo Homes
Neighborhood
Home address
Schools in Wake County Schools
GreatSchools’ Summary Rating calculation is based on 4 of the school’s themed ratings, including test scores, student/academic progress, college readiness, and equity. This information should only be used as a reference. Jome is not affiliated with GreatSchools and does not endorse or guarantee this information. Please reach out to schools directly to verify all information and enrollment eligibility. Data provided by GreatSchools.org © 2025
Places of interest
Getting around
Noise level
A Soundscore™ rating is a number between 50 (very loud) and 100 (very quiet) that tells you how loud a location is due to environmental noise.
Natural hazards risk
Climate hazards can impact homes and communities, with risks varying by location. These scores reflect the potential impact of natural disasters and climate-related risks on Wake County
Provided by FEMA

Considering this home?
Our expert will guide your tour, in-person or virtual
Need more information?
Text or call (888) 486-2818
Financials
Estimated monthly payment
Similar homes nearby
Recently added communities in this area
Nearby communities in Garner
New homes in nearby cities
More New Homes in Garner, NC
- Jome
- New homes search
- North Carolina
- Raleigh-Durham Area
- Wake County
- Garner
- Renaissance at White Oak
- 380 White Oak Garden Wy, Garner, NC 27529




































