




Book your tour. Save an average of $18,473. We'll handle the rest.
We collect exclusive builder offers, book your tours, and support you from start to housewarming.
- Confirmed tours
- Get matched & compare top deals
- Expert help, no pressure
- No added fees
Estimated value based on Jome data, T&C apply
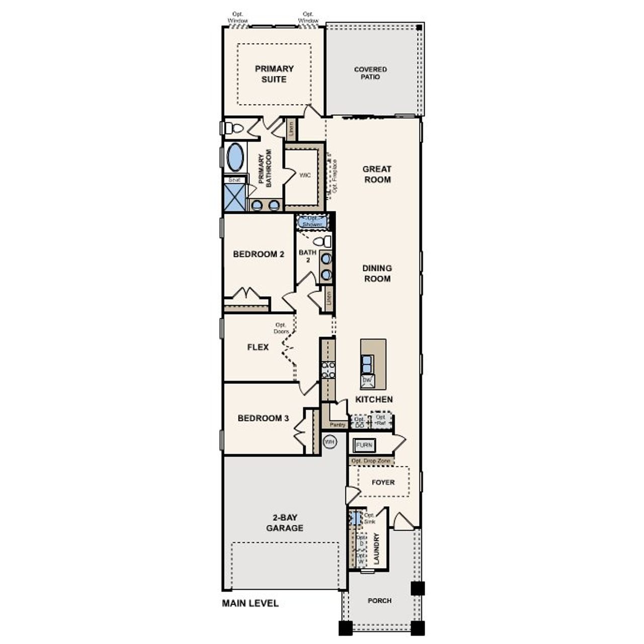
- 3 bd
- 2 ba
- 1,895 sqft
Collin Nicholas Dr, Kingsland, GA 31548
Why tour with Jome?
- No pressure toursTour at your own pace with no sales pressure
- Expert guidanceGet insights from our home buying experts
- Exclusive accessSee homes and deals not available elsewhere
Jome is featured in
- Single-Family
- Ready by May 2026
- $192.61/sqft
- 1 days on Jome
Home description
Designed to fit your lifestyle, this single-story Captiva plan welcomes you with a large front porch, ushering you into a spacious foyer and laundry room. Anchoring the home, an open-concept living area includes a kitchen with a center island, quartz counters, and corner pantry, overlooking a dining area and a great room—boasting access to a relaxing covered patio. You’ll also appreciate the option to add a great room fireplace. The primary suite dazzles with a roomy walk-in closet and a 5-piece bath—offering the options of a freestanding tub, expanded shower or walk-in shower. Additional highlights include a flex room.
May also be listed on the Century Communities website
Information last verified by Jome: Today at 6:23 AM (March 4, 2026)
Book your tour. Save an average of $18,473. We'll handle the rest.
We collect exclusive builder offers, book your tours, and support you from start to housewarming.
- Confirmed tours
- Get matched & compare top deals
- Expert help, no pressure
- No added fees
Estimated value based on Jome data, T&C apply
Home details
- Property status:
- Under construction
- Size:
- 1,895 sqft
- Stories:
- 1
- Beds:
- 3
- Baths:
- 2
- Garage spaces:
- 2
Construction details
- Builder Name:
- Century Communities
- Completion Date:
- May, 2026
Home features & finishes
- Garage/Parking:
- Garage
- Rooms:
- Primary Bedroom On MainPrimary Bedroom Downstairs

Get a consultation with our New Homes Expert
- See how your home builds wealth
- Plan your home-buying roadmap
- Discover hidden gems

Community details
The Preserve at Camden Woods
by Century Communities, Kingsland, GA
- 5 homes
- 5 plans
- 1,538 - 2,260 sqft
View The Preserve at Camden Woods details
More homes in The Preserve at Camden Woods
- Home at address 214 Collin Nicholas Dr, Kingsland, GA 31548

Captiva
$329,990
- 3 bd
- 2 ba
- 1,895 sqft
214 Collin Nicholas Dr, Kingsland, GA 31548
- Home at address 220 Collin Nicholas Dr, Kingsland, GA 31548

Laurel II
$329,990
- 3 bd
- 2 ba
- 1,698 sqft
220 Collin Nicholas Dr, Kingsland, GA 31548
- Home at address 225 Collin Nicholas Dr, Kingsland, GA 31548

Laurel II
$349,990
- 3 bd
- 2 ba
- 1,698 sqft
225 Collin Nicholas Dr, Kingsland, GA 31548
- Home at address 222 Collin Nicholas Dr, Kingsland, GA 31548

Silverbell II
$389,990
- 4 bd
- 2.5 ba
- 2,260 sqft
222 Collin Nicholas Dr, Kingsland, GA 31548
Floor plans in The Preserve at Camden Woods
About the builder - Century Communities

- 233communities on Jome
- 1,535homes on Jome
Neighborhood
Home address
Schools in Camden County School District
- Grades PK-04Privatesoutheast christian academy2.5 mi790 may creek drna
GreatSchools’ Summary Rating calculation is based on 4 of the school’s themed ratings, including test scores, student/academic progress, college readiness, and equity. This information should only be used as a reference. Jome is not affiliated with GreatSchools and does not endorse or guarantee this information. Please reach out to schools directly to verify all information and enrollment eligibility. Data provided by GreatSchools.org © 2025
Places of interest
Getting around
Noise level
A Soundscore™ rating is a number between 50 (very loud) and 100 (very quiet) that tells you how loud a location is due to environmental noise.

Considering this home?
Our expert will guide your tour, in-person or virtual
Need more information?
Text or call (888) 488-9243
Financials
Estimated monthly payment
Let us help you find your dream home
How many bedrooms are you looking for?
Similar homes nearby
Recently added communities in this area
Nearby communities in Kingsland
New homes in nearby cities
More New Homes in Kingsland, GA
- Jome
- New homes search
- Georgia
- Camden County
- Kingsland
- The Preserve at Camden Woods
- Collin Nicholas Dr, Kingsland, GA 31548


























